
Predaj bytu 4+kk • 115 m² bez realitkyGrohova, Brno - Veveří, Jihomoravský kraj
Nadstandardní byt 4+kk po kompletní rekonstrukci v jedné z nejlukrativnějších lokalit v Brně na ulici Grohova.
Rekonstrukce byla vedena ve spolupráci se studiem HEARTWORK s důrazem na kvalitu materiálů. Na podlahách je lepená dřevěná dubová podlaha, dveře jsou lakované o výšce 2,5 metru, ve všech pokojích je příprava na klimatizační jednotky, kuchyně je velkorysých rozměrů, se zapuštěnou 80 cm indukční varnou deskou, spíží, a spotřebiči MIELE. Pracovní deska z materiálu Technistone, který je použit i na parapetech. Za kuchyní je na zdi dekorační nasvícená cementová stěrka. V koupelně je sprchový kout i nádherná vana. Sanita Hansgrohe. Obývací pokoj vybaven OLED TV Sony (208cm, 4k dolby atmos) v ceně 100.000 Kč. Příprava na pračku a sušičku v koupelně ve výklenku.
Vytápění a ohřev vody novým plynovým kotlem, okna jsou plastová.
Nad prostorem koupelnou je prakticky vyřešený úložný prostor se vstupem z chodby.
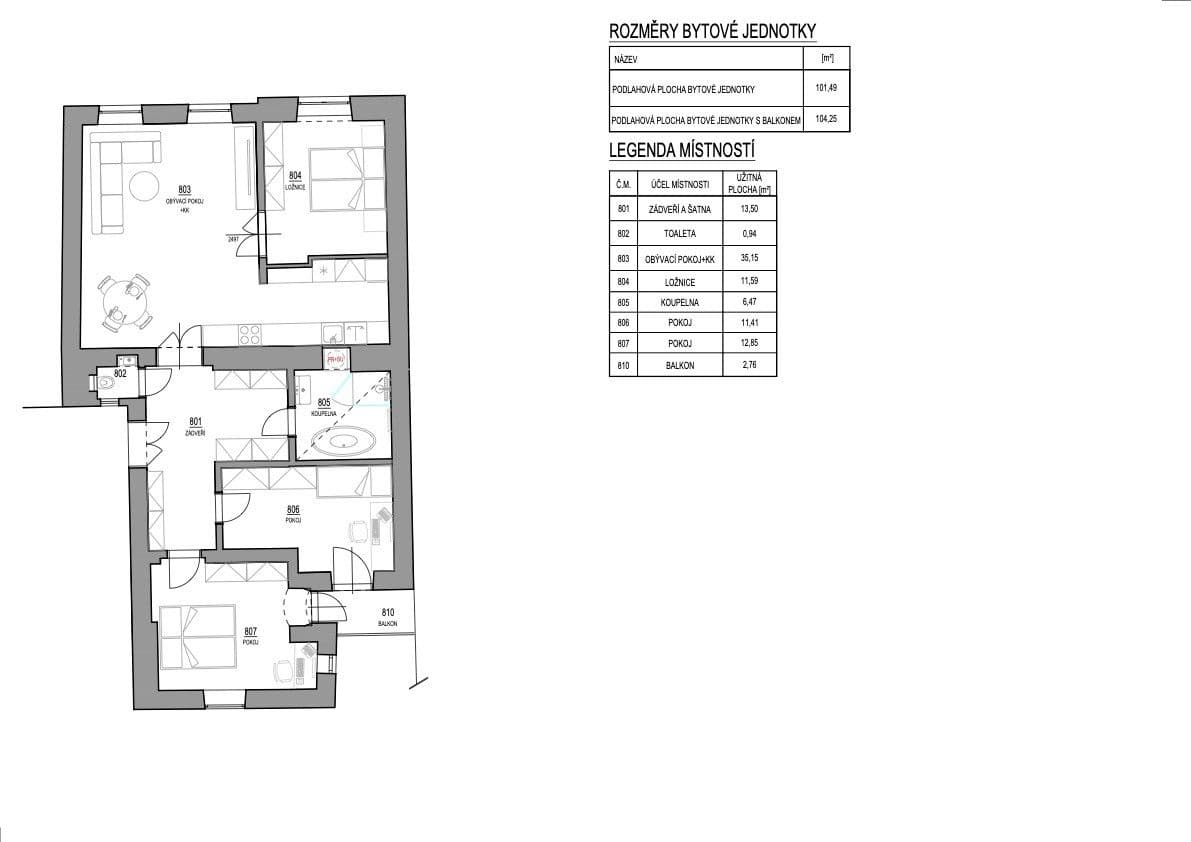
Celková užitná plocha 115 m2 (z toho podlahová plocha bytu 101,49 m2, balkon do vnitrobloku 2,76 m2, sklep 10,81m2). Velký obývací pokoj 35 m2 vedle kterého je ložnice 11,6 m2. Další 2 pokoje jsou prakticky umístěné na druhé straně bytu, což zajištuje soukromí (i akustické), z těchto pokojů je výstup na balkon. PŮDORYS je přiložený ve fotografiích.
Byt je krásně slunečný a světlý. Jižní orientace - obývací pokoj + ložnice. Severní orientace pokoje do vnitrobloku sever, zde se však odráží světlo ze zdi domu ve vnitrobloku a slunce zde tím pádem svítí také.
Měsíční náklady jsou celkem 3.465 Kč (Fond oprav 2 308 Kč, vodné stočné 400 Kč, úklid 180 Kč, komíny 80 Kč, společná elektřina 26 Kč, ostatní služby 117 Kč, pojištění 119 Kč, správní poplatek 235 Kč).
Samotná ulice Grohova má jednosměrný provoz s krásnými vzrostlými stromy, které jí dodávají příjemnou atmosféru. Veveří zároveň nabízí rychlou dostupnost centra, blízkost služeb, parků i dětských hřišť, které této části Brna dává dlouhodobě pevné místo mezi vyhledávanými adresami.
Parametre nehnuteľnosti
| Dostupné od | 21. 4. 2026 |
|---|---|
| Konštrukcia budovy | Tehla |
| Vybavené | Čiastočne |
| Číslo inzerátu | 1015091 |
| PENB | G - Mimoriadne nehospodárne |
| Úžitková plocha | 115 m² |
| Stav | Po rekonštrukcii |
|---|---|
| Dispozícia | 4+kk |
| Poschodie | 3. poschodie z 4 |
| Vlastníctvo | Obecné |
| Umiestnenie | Centrum mesta |
| Cena za jednotku | 140 000 CZK / m2 |
Čo táto nehnuteľnosť ponúka?
| Balkón 2,4 m² |
| Pivnica 10,8 m² |
V okolí nehnuteľnosti nájdete

Predaj bytuSkřivanova, Brno - Ponava, Jihomoravský kraj- 4+1
- 110 m²
14 000 000 CZK15 000 000 CZK
Ušetríte 1 000 000 CZK
Predaj bytuNerudova, Brno - Veveří, Jihomoravský kraj- 4+kk
- 85 m²
13 699 900 CZK13 999 900 CZK
Ušetríte 300 000 CZK
Stále hľadáte to pravé?
Nastavte si strážneho psa. Ponuky vybrané na mieru dostanete súhrnne 1× denne e-mailom. S Premium profilom máte po ruke rovno 5 strážcov a keď sa niečo objaví, informujú vás obratom.

















