
Predaj bytu 4+1 • 81 m² bez realitkyBlumenstr. 37 Heidelberg Weststadt Baden-Württemberg 69115
Blumenstr. 37 Heidelberg Weststadt Baden-Württemberg 69115MHD 1 minúta pešoV pôvabnom, pamiatkovom viacrodinnom dome z roku 1898 sa predstavuje táto atraktívna 4-izbová bytosť s klasickým charakterom starej budovy a vysokým komfortom bývania. Nehnuteľnosť sa nachádza v jednej z najžiadanejších obytných lokalít Heidelbergu – pokojne umiestnená a zároveň centrálná, s vynikajúcou dostupnosťou do historického centra, univerzity a kliník.
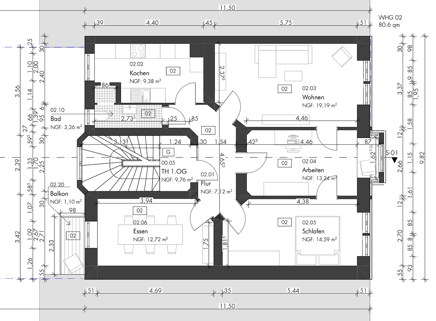
Byt sa nachádza v 1. nadzemnom podlaží a vyniká priestrannými výškami izieb, množstvom denného svetla a veľmi dobre navrhnutým rozložením priestorov, ktoré ponúka bohaté možnosti využitia pre rodiny aj páry.
Byt je momentálne vykurovaný pomocou plynových pecí. V prípade potreby je možné ich nahradiť moderným plynovým kotlom pre bytový dom; príslušná ponuka od odbornej firmy je už k dispozícii.
Byt je momentálne prenajatý za 705 € čistého nájmu mesačne. Zvýšenie nájmu je možné od 1. mája 2027.
Nehnuteľnosť sa nachádza v jednej z najžiadanejších a zároveň najcentrálnejších obytných lokalít Heidelbergu, v obľúbenom meste Weststadt. Táto štvrť zaujme svojou impozantnou architektúrou obdobia zakladateľstva, živou atmosférou ulíc a vynikajúcou mestskou infraštruktúrou.
Doprava je výborná: električkové a autobusové linky sú ľahko dostupné pešo, hlavná stanica v Heidelbergu je vzdialená len približne desať minút chôdze a ponúka optimálne spojenia do všetkých regionálnych a nadregionálnych destinácií. Diaľnice sú tiež dostupné za pár minút jazdy.
V bezprostrednej blízkosti sa nachádza množstvo obchodov, reštaurácií a kaviarní. Pre oddych a voľný čas sa ponúka blízky mestský park aj breh rieky Neckar, ktoré lákajú na prechádzky, športové aktivity a pokojnú relaxáciu v prírode.
Sklep, parkovisko na bicykle
Parametre nehnuteľnosti
| Vek | Nad 50 rokov |
|---|---|
| Stav | Dobrý |
| Poschodie | 1. poschodie z 5 |
| Úžitková plocha | 81 m² |
| Dostupné od | 28. 4. 2026 |
|---|---|
| Dispozícia | 4+1 |
| Číslo inzerátu | 1014858 |
| Cena za jednotku | 5 987,65 € / m2 |
Čo táto nehnuteľnosť ponúka?
| Balkón | |
| MHD 1 minúta pešo |
| Pivnica |
V okolí nehnuteľnosti nájdete
Stále hľadáte to pravé?
Nastavte si strážneho psa. Ponuky vybrané na mieru dostanete súhrnne 1× denne e-mailom. S Premium profilom máte po ruke rovno 5 strážcov a keď sa niečo objaví, informujú vás obratom.
















