
Prenájom bytu 3+1 • 94 m² bez realitkyAmerstorfferstr. 29 München Obergiesing Bayern 81549
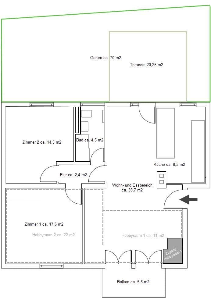
Amerstorfferstr. 29 München Obergiesing Bayern 81549MHD 4 minúty pešo • Parkovanie • GarážTento nádherný a priestranný 3-izbový byt so záhradou, balkónom, garážou, parkovacím miestom a veľkou rekreačnou miestnosťou bude k dispozícii od polovice mája.
Cez vstupnú halu sa dostanete do priestrannej, svetlom naplnenej obývacej a jedálne miestnosti s širokými oknami od podlahy po strop. Na západnej strane sa nachádza veľký balkón s podvečerným slnkom, zatiaľ čo na východnej strane je priamy vstup do vlastnej, pokojne situovanej záhrady s kvalitnou terasou z talianskych dizajnových dlaždíc. Pre dodatočný komfort je zabezpečený aj kosačkový robot. Otvorená kuchyňa ohromí kvalitnou dizajnovou ostrovnou kuchyňou so špičkovými značkovými spotrebičmi a luxusnou prírodnou kameňovou pracovnou doskou.
K bytu patria dve svetlé spálne (približne 17 m² a 14 m²). Svetlá kúpeľňa s dostatkom denného svetla zaujme priestrannou walk-in wellness sprchou a kvalitným skleneným oddelením. Všetky miestnosti vrátane rekreačných priestorov sú vybavené podlahovým kúrením. Úsporným riešením v podobe miestašetrných schodíkov je priamo prístupný suterén s dvoma rekreačnými miestnosťami, z ktorých jedna má okno; cez rekreačné miestnosti je zabezpečený súkromný vstup do pivnice. Všetky okná, balkónové a záhradné dvere sú vybavené elektrickými žalúziami. Vďaka energeticky úspornému stavebnému štýlu a modernej technike zostávajú prevádzkové náklady na príjemných približne 210 €.
Parkovacie miesto priamo pred domom a pivnicový priestor s oknom (okrem rekreačných miestností) sú súčasťou bytu. Výlučné využívanie záhrady, parkovacieho miesta a garáže je zahrnuté. Garáž disponuje pripojením na silnoprúd (vhodná pre Wallbox) a vodovodným prípojkom.
Obytná plocha: 85,7 m² plus pomerný podiel balkónu a terasy = 93,5 m². Balkón má približne 5,6 m², terasa okolo 20 m². Záhrada s terasou má približne 70 m². Rekreačné miestnosti (približne 11 m² a 22 m²) nie sú určené na bývanie, avšak ponúkajú široké možnosti využitia. Vo veľkej rekreačnej miestnosti sú inštalované závesné skrine značky Bulthaup.
Byt je momentálne vo finálnej fáze dokončovania a bude odovzdaný vo vysoko kvalitnom stave.
Nachádza sa na juhu Mníchova v obľúbenom mestskom obvode Obergiesing na pokojnej prístupovej ulici. Perlacher Forst aj rieka Isar sú dostupné v priebehu niekoľkých minút a ponúkajú vysoký rekreačný potenciál v zelene.
Zároveň má byt výborné dopravné spojenie: Stanica metra U1 Mangfallplatz je dostupná pešo (následne asi 10 minút do hlavnej stanice). Rýchlo je dostupných aj autobusové linky 139, 220 a N75.
Má tiež veľmi dobré napojenie na diaľnicu A8 a Stredný okruh. Obchody, školy a materské školy vrátane Európskej školy sa nachádzajú v bezprostrednej blízkosti.
Výhody:
• Kvalitne zrenovovaný, energeticky úsporný byt s vlastnou záhradou (~70 m²) + terasa + balkón
• Otvorená obývacia kuchyňa s vysoko kvalitnou dizajnovou kuchyňou a prémiovými spotrebičmi (indukčná varná doska, AEG parný rúra, AEG kombinovaná mikrovlnka, AEG kávovar, Bosch kombinácia chladničky a mrazničky, Bosch umývačka riadu, Blanco zariadenie na úpravu vody pre filtrovanú studenú a perlivú vodu)
• Moderná kúpeľňa s podlahovo až k stene walk-in sprchou s Grohe wellness daždivou sprchou a skleneným oddelením, Villeroy & Boch sanitou, veľkoformátovými dlaždicami od Cotto D'Este a oknami
• Extra široké dubové parketové dosky a talianske veľkoformátové dlaždice
• Podlahové kúrenie vo všetkých miestnostiach vrátane rekreačných priestorov
• Veľká rekreačná miestnosť (celkovo ~33 m²)
• Okna od podlahy s elektrickými žalúziami
• Nové energeticky úsporné okná a nová elektroinštalácia
• Elektrické žalúzie na všetkých oknách, balkónových a záhradných dverách
• Káblový, DSL a optický internetový pripojenie
• Parkovacie miesto pred domom + garáž so silnoprúdovým pripojením (vhodná pre Wallbox) a vodovodným prípojkom
• Ústredné kúrenie (diaľkové teplo)
• Kosačkový robot od Gardena v záhrade
• Nízke prevádzkové náklady (~210 €)
• Udržiavaný obytný komplex
Fotografie zobrazujú aktuálny pokrok výstavby; dokončenie prebehne čoskoro.
Prehliadky sú možné od 1. mája. V prípade naliehaveho záujmu môže byť po dohode už 26.04. zabezpečený termín.
Parametre nehnuteľnosti
| Vek | Nad 50 rokov |
|---|---|
| Stav | Po rekonštrukcii |
| Číslo inzerátu | 1014799 |
| Úžitková plocha | 94 m² |
| Dostupné od | 15. 5. 2026 |
|---|---|
| Dispozícia | 3+1 |
| PENB | B - Veľmi úsporné |
| Cena za jednotku | 27,13 € / m2 |
Čo táto nehnuteľnosť ponúka?
| Balkón | |
| Garáž | |
| MHD 4 minúty pešo |
| Pivnica | |
| Parkovanie | |
| Terasa |
V okolí nehnuteľnosti nájdete
Stále hľadáte to pravé?
Nastavte si strážneho psa. Ponuky vybrané na mieru dostanete súhrnne 1× denne e-mailom. S Premium profilom máte po ruke rovno 5 strážcov a keď sa niečo objaví, informujú vás obratom.


















