Prenájom domu 5+1 • 107 m² bez realitky, Bádensko-Wurttembersko
, Bádensko-WurttemberskoMHD 1 minúta pešo • ParkovanieS jednou z týchto nádherných dvojdomov s vlastnou záhradou nič nestojí v ceste vášmu šťastiu bývania. Dom sa nachádza v dopravne zkľudnenej obytné štvrti v krásnom Althengstett, v bezprostrednej blízkosti okresného mesta Calw. V prízemí vás priestranná obytná a jedálenská zóna s otvorenou kuchyňou zve na oddych. Priamy vstup do záhrady celý koncept dopĺňa. Na poschodí sa nachádzajú ďalšie tri miestnosti naplnené denným svetlom, ktoré je možné využívať podľa vlastných predstáv. Obe kúpeľne s denným osvetlením sú plne vybavené – majú WC, sprchu bez prahu, nábytok a sú kompletne obložené obkladmi. Kúpeľňa na poschodí navyše ponúka aj vaňu a umývadlo pre dvoch. Pre vaše vozidlá sú zabezpečené dostatočné parkovacie miesta.
Tento dom predstavuje moderné, udržateľné bývanie s jasnou architektúrou a so zreteľným nárokom na kvalitu. Novostavba z roku 2026 spája energeticky efektívnu výstavbu, nadčasový dizajn a premyslené rozloženie priestorov. Veľké okná, kvalitné materiály a moderné technické vybavenie budovy vytvárajú pokojnú, hodnotnú obytnú atmosféru – ideálne pre tých, ktorí si vedome vyberajú bývanie a plánujú do budúcnosti.
Objekt bol postavený metódou drevenej konštrukcie a spĺňa požiadavky štandardu KfW‑40. Navyše budova nesie certifikát kvality QNG „Udržateľná výstavba“. Veľmi vysoký energetický štandard sa odzrkadľuje nielen v nízkych prevádzkových nákladoch, ale aj v celkovom koncepte pripravenom na budúcnosť.
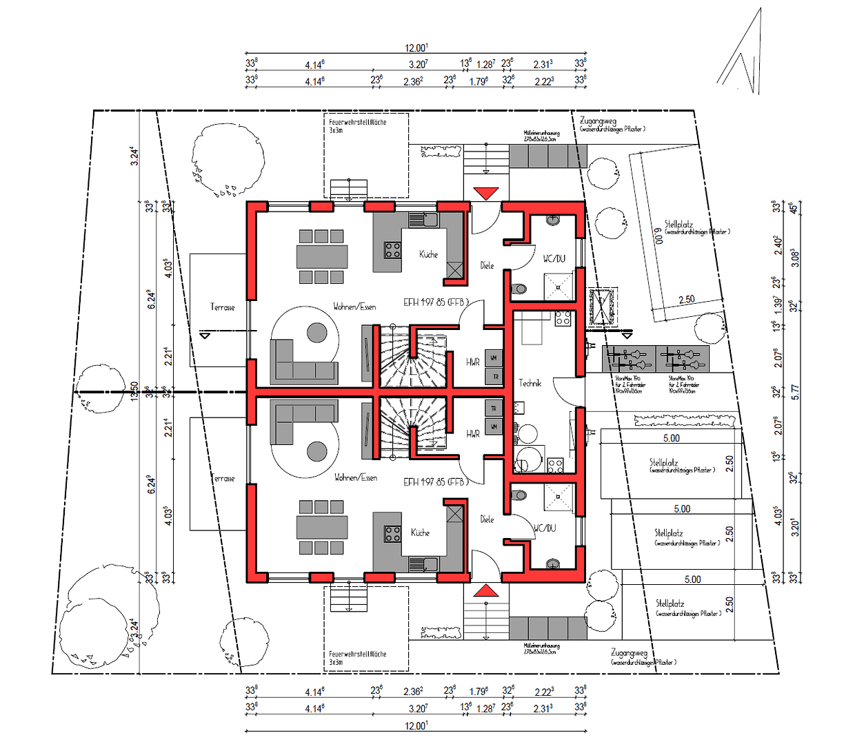
Obývacia plocha približne 107 m² je rozložená na dve podlažia. Okrem toho je k dispozícii ďalší skladovací priestor v šikmej strešnej miestnosti s rozlohou 28 m².
K dvojdomu patrí terasa s rozlohou približne 8 m² a vlastná záhrada. Vonkajšie plochy sú navrhnuté ako nenáročné na údržbu a ponúkajú priestor na pobyt na čerstvom vzduchu. Dve parkovacie miesta pre automobily a uzamykateľná boxa pre vodiča sú tiež zabezpečené.
V prízemí tvorí centrálnu obytnú časť domu otvorený obytný, jedálenský a kuchynský priestor o rozlohe približne 37 m², ktorý fascinuje čistými líniami, priestrannosťou a priamym vstupom na terasu. Veľké okná zabezpečujú množstvo denného svetla a príjemné spojenie medzi interiérom a exteriérom.
Integrovaná značková vstavaná kuchyňa je vysoko kvalitná, plne vybavená a funkčne začlenená do priestoru. Priľahlá práčovňa s rozlohou okolo 5 m² ponúka veľa miesta na zásoby a organizáciu každodenného života. Pre ešte väčší úložný priestor bol priestoru pod schodmi prebudovaný. Chodba, kuchyňa, ako aj obytná a jedálenská časť sú vybavené kvalitným vinylovým podlahovým krytom. Do prízemia navyše patrí obkladané hosťovské WC so sprchou na rovine podlahy, umývadlom, WC a nábytkom a chodba s integrovaným vstavaným šatníkom.
Na poschodí sa nachádzajú súkromné ústupové priestory. Kúpeľňa s denným osvetlením s rozlohou približne 8,5 m² je zariadená moderne a jednoducho – okrem dvojitého umývadla so vstavaným nábytkom, sprchy na rovine podlahy a kúpeľne je vybavená aj sušičom uterákov. Vedľa hlavnej kúpeľne sú k dispozícii ďalšie tri miestnosti, ktoré možno flexibilne využiť ako spálňu, detskú izbu, pracovňu alebo podľa vlastných predstáv. Rozloženie miestností je zámerne neutrálne a aj prípojky v miestnostiach sú univerzálne, čo umožňuje realizáciu rôznych životných štýlov.
Na šikmú strechu je prístup prostredníctvom rozkladacích schodov z podlahovej úrovne.
Objekt sa nachádza v Althengstett na pokojnej obytné ulici s prevažne miestnym (rezidentským) provozom. Miesto leží v okrese Calw a spája bývanie v tesnej blízkosti prírody s dobrou dopravnou dostupnosťou. Mesto Calw je dostupné za pár minút a ponúka širokú škálu nákupných, vzdelávacích a servisných služieb. Linka Hermann-Hesse-Bahn poskytuje atraktívne spojenie verejnou dopravou smerom k metropole Stuttgart, pričom sa spoje neustále rozširujú. V samotnej obci je zabezpečená vynikajúca ponuka obchodov, lekárov, materských škôl, ako aj základných a stredných škôl.
Vybavenie & technika
• Novostavba 2026 – prvé užívanie
• Drevená konštrukcia podľa štandardu KfW 40
• Certifikát kvality QNG „Udržateľná výstavba“
• Podlahové kúrenie prostredníctvom vzduch-voda tepelného čerpadla v celom dome
• Elektrické žalúzie s ovládaním v rámci smart home systému
• Televízny a LAN zásuvka v každej miestnosti
• Video interkom
• Celodrevené schodisko z dubového dreva
• Centrálny ventilačný systém s rekuperáciou tepla
• Fotovoltaická elektráreň na podporu kúrenia a teplej vody
• Možnosť nabíjania elektromobilov
• Balkónová elektráreň je už inštalovaná
• Veľmi vysoký energetický štandard – trieda A+
• Vysoko kvalitná značková vstavaná kuchyňa vrátane značkových elektrospotrebičov
• Termostaty vo všetkých sprchovacích kútikoch
• Sušič uterákov v hlavnej kúpeľni
• Obklady ako podlahové krytiny v kúpeľniach
• Odolná značková vinylová podlaha v prízemí
• Vysokokvalitná značková laminátová podlaha na poschodí
• Dve parkovacie miesta pre automobily
• Uzamykateľná boxa na bicykle pre 2–3 bicykle
• Zabezpečené vyhradenie priestoru pre odpadové kontajnery
V uvedených poplatkoch sú zahrnuté skutočné náklady vo výške 150 € mesačne formou záloh, nájom za vstavanú kuchyňu vo výške 120 € a poplatok za dve parkovacie miesta vo výške 80 €.
Okrem tejto ponúkanej polovice dvojdomu je k dispozícii aj druhá polovica tohto dvojdomu na prenájom. Vybavenie, rozloženie priestorov a technické vlastnosti sú u oboch častí identické. Keďže pozemkové podiely sú asymetricky priradené jednotlivým častiam, stojí druhá polovica so väčším pozemkovým podielom mesačne o 30 € viac.
Parametre nehnuteľnosti
| Vek | Nad 50 rokov |
|---|---|
| Stav | Novostavba |
| Číslo inzerátu | 1014491 |
| Plocha pozemku | 250 m² |
| Cena za jednotku | 15,05 € / m2 |
| Dostupné od | 1. 9. 2026 |
|---|---|
| Dispozícia | 5+1 |
| Úžitková plocha | 107 m² |
| Celkové poschodia | 2 |
Čo táto nehnuteľnosť ponúka?
| Parkovanie | |
| Terasa |
| MHD 1 minúta pešo |
V okolí nehnuteľnosti nájdete
Stále hľadáte to pravé?
Nastavte si strážneho psa. Ponuky vybrané na mieru dostanete súhrnne 1× denne e-mailom. S Premium profilom máte po ruke rovno 5 strážcov a keď sa niečo objaví, informujú vás obratom.



