Prenájom domu 5+1 • 153 m² bez realitkyBoschstraße 6 Heldenstein Heldenstein Bayern 84431
Boschstraße 6 Heldenstein Heldenstein Bayern 84431MHD 8minút pešo • ParkovanieDieses hochwertige und vollunterkellerte Haus in Massivbauweise vereint zwei spiegelgleiche Wohneinheiten mit je 153 m² Wohnfläche. Eine Einheit ist südwestlich, die andere südöstlich ausgerichtet – beide überzeugen mit modernem Wohnkomfort und durchdachtem Raumkonzept.
Každá bydliská jednotka disponuje vlastným vstupom, priestrannou záhradou a slnečnou južnou terasou – v duchu polovičného dvojdomu.
Obe jednotky sa aktuálne dokončujú a od 01.06.2026 budú k dispozícii na prenájom.
HIGHLIGHTS
· Priestranný obývací a jedálenský priestor s otvorenou kuchyňou (48 m²) – ideálny na živý život a varenie
· Krásna viditeľná stropná konštrukcia zo zafarbenej smreky s oknom na streche – vytvára príjemnú atmosféru a prírodné osvetlenie
· Energetická trieda A+: Moderné tepelné čerpadlo, podlahové kúrenie a fotovoltaická inštalácia s voliteľným modelom prenájom elektriny pre nájomcov (GGV)
· Centrálny ventilačný systém s rekuperáciou tepla – čerstvý vzduch počas celého roka, ideálny pre alergikov
· LED zapustené svetlá v kuchyni, vstupnej hale, šatni a hosťovom WC
· Elektrické žalúzie vo všetkých oknách – možnosť ovládania cez aplikáciu
· Kvalitné vinylové podlahy v dizajne dubovej štruktúry a veľkoformátové dlaždice v odtieni béžovej
· Predinštalácia Wallboxu pre elektrické vozidlá
· Zmäkčovač vody pre šetrné zaobchádzanie s vodou
· Internet cez optické vlákno
· Bez provízie – žiadne poplatky makléra
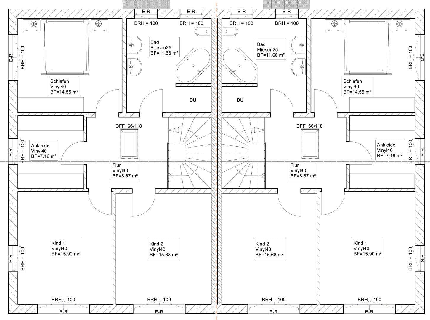
PRÍZEMIE
Vlastné vstupné dvere na severnej strane vás zavedú do svetlej predsiene, vybavenej praktickým šatníkom. Prízemie obsahuje hosťovské WC s oknom umožňujúcim denné osvetlenie a bez okrajového odklonu, ako aj miestnosť, ktorú možno flexibilne využiť podľa vašich predstáv. Z veľkého obývacieho a jedálenského priestoru sa dostanete priamo na slnečnú južnú terasu.
PODKROVIE
Otváracou krídlovou schodiskom z lakovaného bukového dreva sa dostanete do podkrovia. Strešné okno zaisťuje príjemné denné osvetlenie. Tri spálne s rozlohou približne 15 m² každá vás pozývajú na oddych. Ďalšia miestnosť je flexibilná, napríklad ako šatník. Kúpeľňa disponuje veľkoformátovými dlaždicami, vaňou, walk-in sprchou s úložnými priestormi, dvoma umývadlami a vysúšadlom na uteráky. Bez okrajového odklonu WC dopĺňa moderné a nenáročné vybavenie.
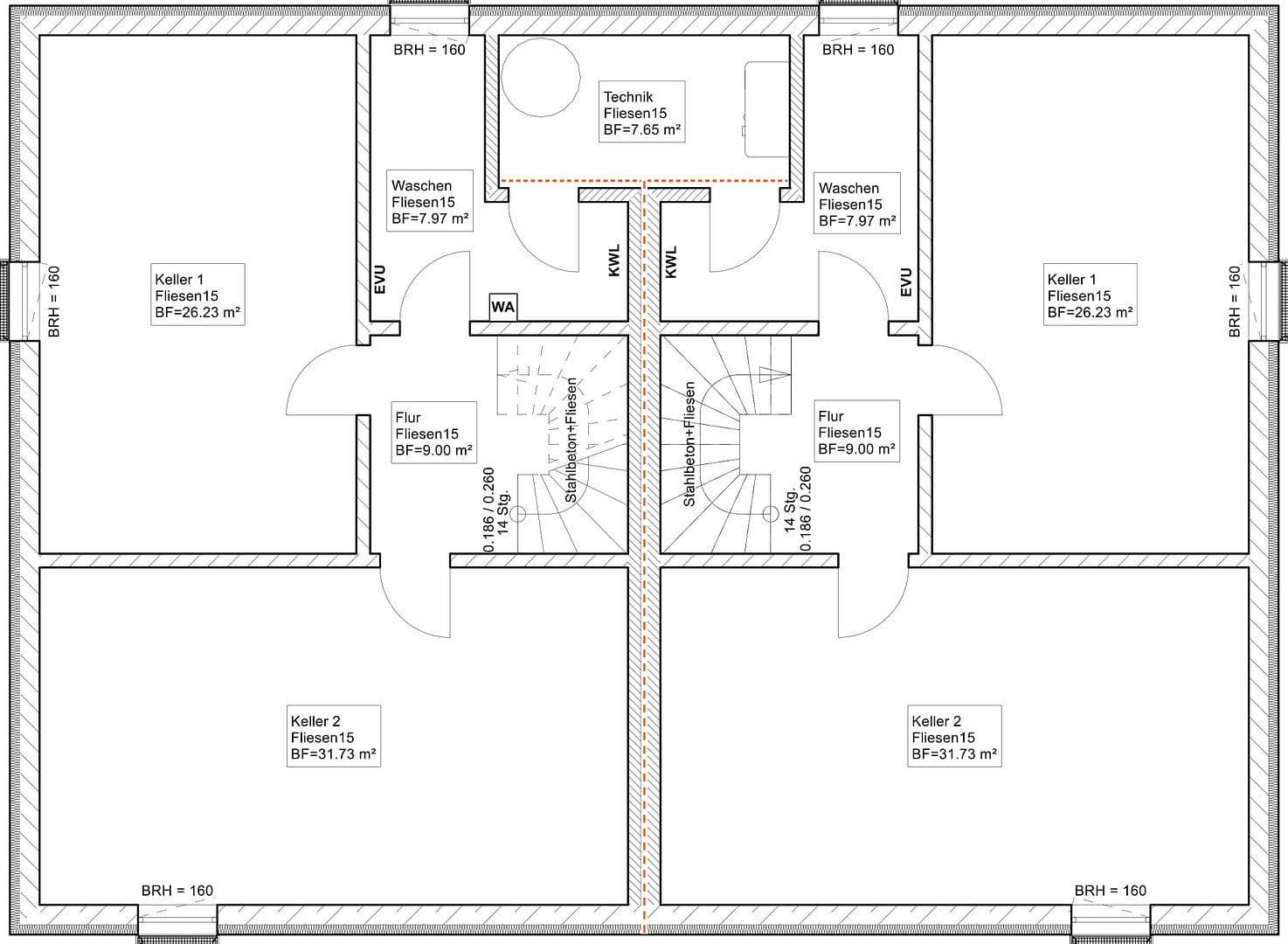
SUTERÉN
Tepelné čerpadlo v spoločnej technickej miestnosti zabezpečuje obe bývacie jednotky teplou vodou a kúrením. V tejto miestnosti sa nachádza aj zmäkčovač vody.
V suteréne má každá jednotka približne 75 m² vlastného využiteľného priestoru a je kompletne obkladaná dlažbou. V domovej izbe sa nachádza centrálny ventilačný systém, umyvadlový kút a pripojenia pre práčku a sušičku. Dve priestranné suterénne miestnosti ponúkajú dostatok úložného priestoru pre všetko, čo domov prináša.
TERASA, ZÁHRADA A PRÍSTUPOVÁ CESTA
Vonkajšie plochy budú dokončené koncom apríla. Prístupová cesta bude dláždená. Slnečná južná terasa vás pozýva k oddychu – vybavená vonkajším osvetlením, elektrickou prípojkou a vodným pripojením pre zavlažovanie záhrady. Záhrada ponúka veľa priestoru pre váš relax v prírode:
· Jednotka orientovaná na juhozápad: cca 155 m² záhrada s 15 m² terasou
· Jednotka orientovaná na juhozál: cca 190 m² záhrada s 15 m² terasou
Dom sa nachádza v pokojnej mestskej časti. Heldenstein je moderná obca s 3000 obyvateľmi v okrese Mühldorf am Inn, kde sa spája vidiecka pohoda a blízkosť mesta.
S diaľnicou A 94 je Mníchov dosiahnuteľný zhruba do 35 minút. Kto uprednostňuje vlak, dostane sa na mníchovský východný nádražie približne za 60 minút.
Pre bežné potreby je zabezpečená kompletná infraštruktúra. V obci sa nachádza EDEKA s mäsovým obchodom a pekárňou, ako aj útulná hostina. Športoviská, materská škola, škôlka a základná škola sú čiastočne dostupné pešo, čo robí z Heldensteinu mimoriadne rodinný domov. Blízke mestá Ampfing, Waldkraiburg a Mühldorf navyše ponúkajú rozsiahlu ponuku lekárov, nemocnicu, supermarkety, banky, reštaurácie a oveľa viac.
DVERE
Hliníkové dvere s priehľadným vložkou majú vybavený dverovým zvončekom. Videozvonček je pripravený. Vo vnútri domu zabezpečujú biele dverné krídla svetlý a priateľský pocit zo starostlivo navrhnutých interiérov.
OKNÁ
Biele plastové okná a strešné okno s trojitým zasklením zaisťujú optimálnu tepelnú izoláciu.
PRIPOJENIA
Internetové optické pripojenie s LAN konektormi v obývacej izbe (2×), na chodbe, v domácej kancelárii a vo všetkých spálňach. Satelitné pripojenia sú pripravené v spálňach a obývacej izbe.
PODLAHOVÉ KRYTIE
Kvalitná vinylová podlaha v dizajne dubového dreva v podkroví, domácej kancelárii, ako aj v obývacej a jedálenskej časti.
Veľkoformátové dlaždice v odtieni béžovej v predsieni, kuchyni, kúpeľni a hosťovom WC. Schodisko do suterénu a samotný suterén sú kompletne obkladané dlažbou.
PARKOVACIE MIESTA
Pre každý polovičný dom sú k dispozícii dve parkovacie miesta a predinštalácia 11-kW wallboxu.
Teším sa na vašu dopyt! Neváhajte ma kontaktovať správou.
Dôležité:
· Preferujeme nefajčiarov, psy bohužiaľ nie sú povolené.
· Hľadám nájomcov, ktorí si cenia dlhodobý domov – preto sa obe strany vzdávajú možnosti ukončenia nájomnej zmluvy po dobu 2 rokov.
Čistý nájom: 1660 € mesačne
Zálohová platba za prevádzkové náklady: 280 € mesačne
Dve parkovacie miesta: 25 € za miesto mesačne
Nájomná kaucia: 4980 € (3 čisté mesačné nájmy)
Dopyty maklérov nie sú vítané.
Parametre nehnuteľnosti
| Vek | Nad 50 rokov |
|---|---|
| Stav | Novostavba |
| Číslo inzerátu | 1014069 |
| Úžitková plocha | 153 m² |
| Celkové poschodia | 2 |
| Dostupné od | 1. 6. 2026 |
|---|---|
| Dispozícia | 5+1 |
| PENB | A - Mimoriadne úsporné |
| Plocha pozemku | 684 m² |
| Cena za jednotku | 10,85 € / m2 |
Čo táto nehnuteľnosť ponúka?
| Pivnica | |
| MHD 8 minút pešo |
| Parkovanie | |
| Terasa |
V okolí nehnuteľnosti nájdete
Stále hľadáte to pravé?
Nastavte si strážneho psa. Ponuky vybrané na mieru dostanete súhrnne 1× denne e-mailom. S Premium profilom máte po ruke rovno 5 strážcov a keď sa niečo objaví, informujú vás obratom.





















