
Predaj bytu 2+1 • 49 m² bez realitkyArnethgasse 63 Wien 16. Bezirk Wien 1160
Arnethgasse 63 Wien 16. Bezirk Wien 1160MHD 2 minúty pešo • VýťahTento vysoko kvalitne vybavený byt sa nachádza na 3. poschodí (s výťahom) a momentálne sa dokončuje. Zhruba od polovice apríla bude byt novo zrekonštruovaný a k dispozícii. Obhliadky sú už teraz možné a prípadné zmeny je možné po konzultácii ešte zohľadniť.
Fotografie pochádzajú z už dokončeného bytu s rovnakým vybavením.
V rámci komplexnej rekonštrukcie budú kompletne obnovené všetky inštalácie (elektrické vedenia a zariadenia), budú inštalované nové vnútorné dvere a bude vyhotovená štýlovo obložená kúpeľňa s oddeleným WC – obe priestory budú vybavené modernými dlaždicami z kvalitnej kameniny o rozmeroch 30 × 60 cm.
Obývacie miestnosti sa vyznačujú elegantnou parketovou podlahou v štýle vidieckych dosiek, ktorá vytvára teplú a útulnú atmosféru. Nové trojsklené okná a moderné LED osvetlenie stropu vo vstupnej hale, kuchyni a kúpeľni dotvárajú premyslené interiérové riešenie.
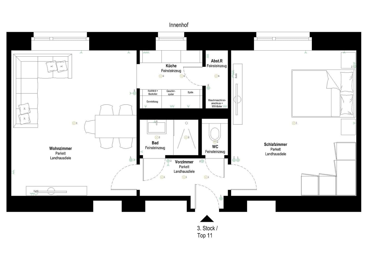
Rozloženie izieb je prehľadne štruktúrované: z centrálneho vstupného priestoru je prístupné všetko. Odtiaľ sa dostanete priamo do spálne a obývacej izby, ako aj do kúpeľne a WC. Ku kuchyni je pripojená aj skladacia miestnosť so zásuvkou pre práčku, čo poskytuje dodatočný úložný priestor.
Praktickosť bytu je taktiež na vysokej úrovni: Bytu náleží priestranná pivnica pre ďalšie úložné možnosti.
Kuchyňa je vybavená všetkými prípojkami, takže si môžete individuálne zrealizovať vlastný kuchynský priestor podľa svojich predstáv. Na požiadanie je možné získať aj návrh kuchyne.
Nehnuteľnosť na adrese Arnethgasse 63 vyniká excelentnou dopravnou dostupnosťou k verejnej doprave: V pešej vzdialenosti je k dispozícii niekoľko liniek verejnej dopravy, ktoré umožňujú priamy prístup do centra mesta aj do ďalších častí.
Dopravné spojenia:
• Približne 150 m od bytu sa nachádza zastávka električky „Redtenbachergasse“, ktorá vás zavezie priamo do centra mesta (Schottentor).
• Autobusovými linkami 46A a 46B sa rýchlo dostanete do neďalekého rekreačného areálu Wilheminenberg.
• Stanica metra a rýchleho vlaku Ottakring je vzdialená len pár minút pešo (približne 500 m). V siedmich minútach cestovania sa dostanete do Bahnhofcity WienWest a na nákupnú ulicu Mariahilferstraße. Do centra mesta (stanica Stephansplatz) sa bez prestupu dostanete za 14 minút.
Obchodné možnosti v okolí:
Len pár minút chôdze vás zavedie na ulici Ottakringer Straße a Thaliastraße, najobľúbenejšie miestne zásobovacie ulice v 16. obvode, kde nájdete pestrú ponuku obchodov. Supermarkety ako Denns BioMarkt, Spar, Billa či Penny sú v okruhu menej než desať minút. Drogerie, športové obchody, reštaurácie, kaviarne a aj trh s ovocím a zeleninou sú dostupné pešo.
Rekreačná oblasť Ottakringer Wald:
V bezprostrednom okolí bytu sa nachádza množstvo zelených útočísk, napríklad Ottakringer Wald s dobre vybudovanou sieťou chodníkov a napojenie na mestskú turistickú trasu 4. Táto oblasť ponúka rôzne lesné ihriská, grilovacie miesta a zaujímavé pamiatky, ako napríklad hrad Wilhelminenberg alebo jubilejnú vežu.
Technické vybavenie a materiály:
• HARO parketová podlaha z dubového dreva v dizajne vidieckych dosiek
• Moderná kamenina vo kúpeľni, WC, kuchyni a skladacej miestnosti
• Stropné osvetlenie s LED reflektormi vo vstupnej hale, kúpeľni a kuchyni
• Nové trojsklené okná
• Sanitárna keramika značiek LAUFEN Pro / Villeroy Boch
• Sprchový systém od firmy Grohe s termostatom, daždivou sprchou a ručnou sprchou
• Sklenená sprchová stena s nanovrstvou a bezpečnostným sklom (ESG)
• Vypínače, zásuvky a sieťové konektorové zásuvky od firmy Berker
MNPV GmbH
Predaj a nákup nehnuteľností,
Prenájom a realitné poradenstvo
FN 649248b
Obchodný register: Obchodný súd vo Viedni
E-mailový kontakt: office (at) mnpv.at
Parametre nehnuteľnosti
| Vek | Nad 50 rokov |
|---|---|
| Dispozícia | 2+1 |
| Číslo inzerátu | 1013920 |
| Cena za jednotku | 5 204,08 € / m2 |
| Stav | Po rekonštrukcii |
|---|---|
| Poschodie | 3. poschodie z 5 |
| Úžitková plocha | 49 m² |
Čo táto nehnuteľnosť ponúka?
| Pivnica | |
| MHD 2 minúty pešo |
| Výťah |
V okolí nehnuteľnosti nájdete
Stále hľadáte to pravé?
Nastavte si strážneho psa. Ponuky vybrané na mieru dostanete súhrnne 1× denne e-mailom. S Premium profilom máte po ruke rovno 5 strážcov a keď sa niečo objaví, informujú vás obratom.












