
Prenájom bytu 2+kk • 44 m² bez realitkyRychtáře Petříka, Praha - Hostivař
Hledáte moderní bydlení v klidné lokalitě blízko přírody i služeb? Nabízím výhradně k dlouhodobému pronájmu světlý byt o dispozici 2+kk s balkonem, který se nachází v novostavbě v Praze – Hostivaři (ulice Rychtáře Petříka). Byt se nachází v 6. patře novostavby, je to nejvyšší podlaží a nabízí kompletní klid.
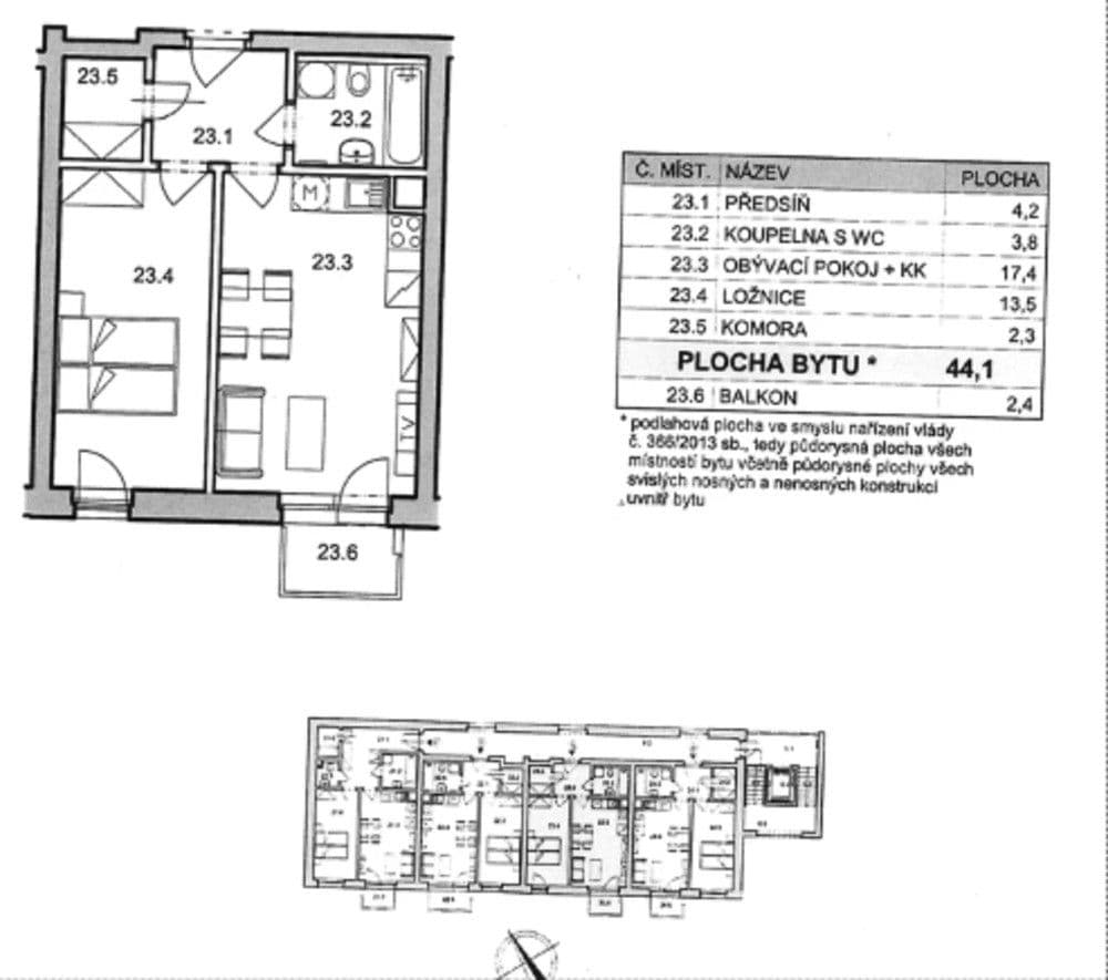
O bytu:
Byt o celkové ploše 44,1 m² + balkon (2,4 m²) je situován v moderním domě s výtahem. Je velmi prakticky řešený a nabízí:
Obývací pokoj s kuchyňským koutem (17,4 m²): Součástí je kuchyňská linka vybavená vestavěnými spotřebiči (varná deska, trouba, digestoř).
Ložnici (13,5 m²): Dostatek prostoru pro dvoulůžko i skříně.
Praktickou komoru (2,3 m²): Úložný prostor přímo v bytě (viz půdorys).
Koupelnu s WC (3,8 m²): Vybavena vanou, pračka není, pro vážné zájemce zajistím pračku se sušičkou.
Předsíň (4,2 m²).
Vybavení:
Byt se pronajímá jako nezařízený nábytkem, což vám dává skvělou možnost vybavit si interiér přesně podle vlastního vkusu.
Parkování:
K bytu náleží vlastní prostorné garážové stání v suterénu domu, takže o parkování máte postaráno. Cena pronájmu garážového stání je 1 000 Kč/měsíčně.
Nájem 19 000 Kč, domovní poplatky 3 500 Kč, garážové stání 1 000 Kč, elektřina se převádí na nájemce (cca 1 500 Kč měsíčně)
Lokalita:
Hostivař je skvělé místo pro život. V blízkosti najdete Hostivařskou přehradu a lesopark (ideální na procházky a sport), nákupní centrum VIVO! Hostivař, plavecký bazén a veškerou občanskou vybavenost. Výborná dopravní dostupnost (autobusy na metro C – Opatov/Háje nebo metro A – Skalka).
Cizinci vítáni.
Byt je volný od 1.5.2026, případně po dohodě. Prohlídkový den 22.4. v odpoledních hodinách. Malý pes nevadí.
Are you looking for modern living in a quiet area close to nature and amenities? I am offering a bright 2+kk apartment with a balcony for long-term rent, located in a new building in Prague – Hostivař (Rychtáře Petříka Street).
About the apartment:
The apartment has a total area of 44.1 m² plus a 2.4 m² balcony and is situated in a modern building with an elevator. It is very practically designed and offers:
Living room with kitchenette (17.4 m²): It features a kitchen unit equipped with built-in appliances (ceramic hob, oven, extractor hood).
Bedroom (13.5 m²): Plenty of space for a double bed and wardrobes.
Convenient storage room (2.3 m²): Extra storage space within the apartment (see floor plan).
Bathroom with WC (3.8 m²): Fitted with a bathtub. There is no washing machine provided, but for serious inquiries I can arrange a washer-dryer.
Entrance hall (4.2 m²).
Amenities:
The apartment is rented unfurnished, allowing you the wonderful opportunity to furnish the interior exactly to your taste.
Parking:
The apartment comes with its own spacious garage parking space in the basement of the building, so you won’t have to worry about parking.
Location:
Hostivař is a great place to live. Nearby you will find the Hostivař Reservoir and a forest park (ideal for walks and sports), the VIVO! Hostivař shopping center, a swimming pool, and all necessary municipal amenities. Excellent transportation connections are available (buses to metro C – Opatov/Háje or metro A – Skalka).
Foreigners welcomed.
Parametre nehnuteľnosti
| Dostupné od | 1. 5. 2026 |
|---|---|
| Konštrukcia budovy | Tehla |
| Vybavené | Nevybavené |
| Číslo inzerátu | 1013305 |
| Umiestnenie | Sídlisko |
| Cena za jednotku | 431,82 CZK / m2 |
| Stav | Novostavba |
|---|---|
| Dispozícia | 2+kk |
| Poschodie | 6. poschodie z 6 |
| PENB | B - Veľmi úsporné |
| Úžitková plocha | 44 m² |
Čo táto nehnuteľnosť ponúka?
| Balkón 2 m² | |
| Garáž | |
| Domáci miláčikovia vítaní |
| Bezbariérový prístup | |
| Výťah |
V okolí nehnuteľnosti nájdete





Prenájom bytuKe Kněžihorce, Kojetice - Kojetice u Prahy, Středočeský kraj- 3+kk
- 62 m²
21 000 CZK + 6 000 CZK
Stále hľadáte to pravé?
Nastavte si strážneho psa. Ponuky vybrané na mieru dostanete súhrnne 1× denne e-mailom. S Premium profilom máte po ruke rovno 5 strážcov a keď sa niečo objaví, informujú vás obratom.







