
Prenájom bytu 2+kk • 63 m² bez realitkyŽitenická, Praha - Prosek
Pronájem bytu 2+kk v Praze 9 – Střížkov (Žitenická).
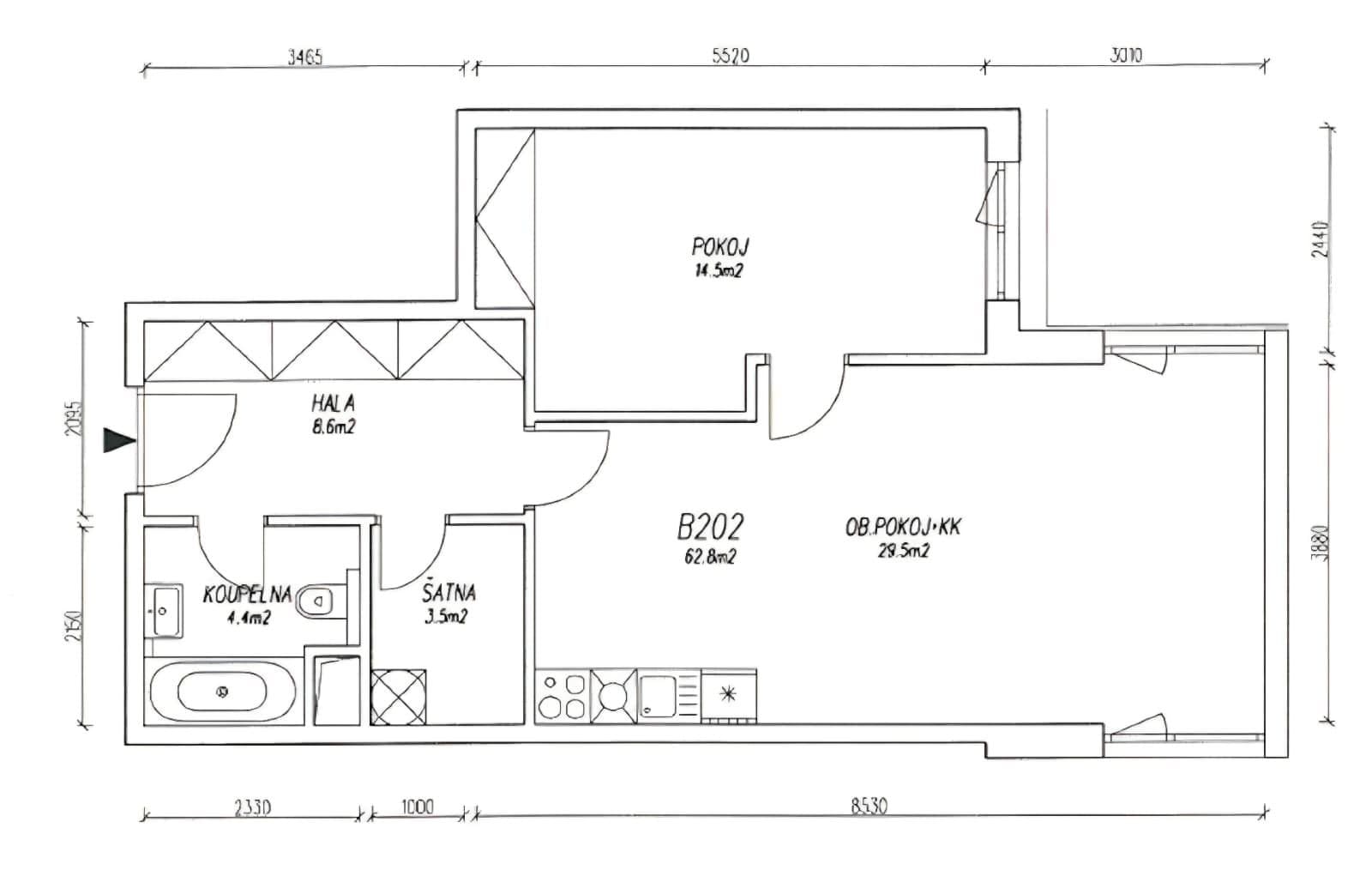
Popis bytu: Nabízíme k pronájmu novostavbu prostorného bytu 2+kk o velikosti 63 m², který se nachází ve 2. patře ze 4 v moderním domě s výtahem.
Byt je situován v rezidenci U Gymplu – velmi klidná a zelená lokalita.
Stav: nezařízený, pouze kuchyňská linka
Topení: ústřední dálkové
Podlahy: plovoucí, čerstvě zbroušená
Okna: kovová s venkovními slunolamy
Orientace: obývací pokoj – jih a sever, ložnice – východ
Koupelna: vana, WC, dlažba
Další prostory: prostorná šatna / technická místnost, velká chodba
Doprava: Zastávka autobusu u domu, 2 stanice na metro C – Střížkov nebo Prosek
Finanční podmínky: Nájem: 26 000 Kč/měsíc • Zálohy na služby: 6 600 Kč/měsíc
Kauce: 2 měsíční nájmy
Ideální bydlení v klidné a zelené části Prahy.
Na základě dohody lze zajistit i pronájem sklepu 4,5 m² a garážového stání přímo v domě.
Apartment Rental 2+kk in Prague 9 – Střížkov (Žitenická)
Flat Description: We are offering for rent a newly built, spacious 2+kk flat with an area of 63 m², located on the 2nd floor of a 4-story modern building with an elevator.
The flat is situated in the U Gymplu residence – a very peaceful and green area.
Condition: Unfurnished, only kitchen unit provided
Heating: Central district heating
Floors: Floating, freshly sanded
Windows: Metal with external sun shutters
Orientation: Living room – south and north, bedroom – east
Bathroom: Bathtub, WC, tiled
Other spaces: Spacious cloakroom/technical room, large hallway
Transport: Bus stop by the building, 2 metro stations on line C – Střížkov or Prosek
Financial Conditions: Rent: 26,000 CZK/month • Service charges: 6,600 CZK/month
Deposit: 2 months' rent
Ideal living in a quiet and green part of Prague.
Based on agreement, it is also possible to arrange rental of a 4.5 m² basement storage room and a garage parking space directly in the building.
Parametre nehnuteľnosti
| Vek | Do 10 rokov |
|---|---|
| Stav | Novostavba |
| Dispozícia | 2+kk |
| Poschodie | 2. poschodie z 4 |
| Číslo inzerátu | 1012960 |
| PENB | B - Veľmi úsporné |
| Úžitková plocha | 63 m² |
| Dostupné od | 15. 4. 2026 |
|---|---|
| Konštrukcia budovy | Tehla |
| Vybavené | Čiastočne |
| Vykurovanie | Ústredné |
| Vlastníctvo | Osobné |
| Umiestnenie | Tichá lokalita |
| Cena za jednotku | 412,70 CZK / m2 |
Čo táto nehnuteľnosť ponúka?
| Pivnica 6 m² | |
| Výťah |
| Garáž |
V okolí nehnuteľnosti nájdete
Stále hľadáte to pravé?
Nastavte si strážneho psa. Ponuky vybrané na mieru dostanete súhrnne 1× denne e-mailom. S Premium profilom máte po ruke rovno 5 strážcov a keď sa niečo objaví, informujú vás obratom.























