
Predaj domu 7+1 • 195 m² bez realitky, Hesensko
, HesenskoMHD 2 minúty pešo • Parkovanie • GarážTento dom vám ponúka možnosť zrealizovať vaše sny o bývaní. Dom bol zdemontovaný a teraz čaká na rekonštrukciu presne podľa vašich predstáv. S potenciálnou obytnou plochou medzi 196 m² a 250 m² a krásnou, upravenou záhradou ponúka tento objekt veľa priestoru pre individuálne zariadenie.
V závislosti od vašich plánov môžu náklady na rekonštrukciu dosiahnuť až 500.000 €.
Poloha
Nehnuteľnosť sa nachádza na pokojnej obytnéj ulici, prevažne obývanej rodinnými domami. Okolie ponúka výbornú infraštruktúru:
- Stanica metra U2 (5 minút chôdze) – do centra Frankfurtu alebo na letisko sa dostanete za 25 minút
- Niekoľko autobusových liniek v bezprostrednej blízkosti
- Rewe, lekáreň a pošta v dochádzkovej vzdialenosti
- Polia a obľúbená farma Lindenhof sú hneď za rohom
- Medzinárodná škola Accadis, materské školy, základná škola aj stredná škola sú pohodlne dostupné pešo alebo na bicykli
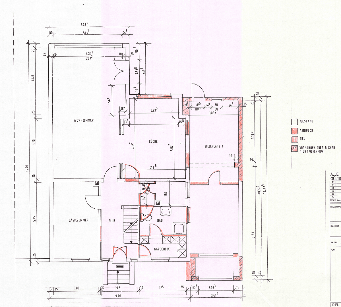
Dispozícia a rozloženie miestností
Prízemie:
- Obývacia izba a veľká kuchyňa s posuvnými dverami, ktoré oddeľujú kuchyňu od obývacej izby. Obe miestnosti majú výhľad na krásnu záhradu.
- Kancelária alebo izba pre hostí
- Veľká šatničná miestnosť
- Kúpeľňa so sprchou pre hostí
- Šatník
Podľa potrieb je možné dispozíciu upraviť tak, aby sa v prízemí vytvorila ešte ďalšia izba.
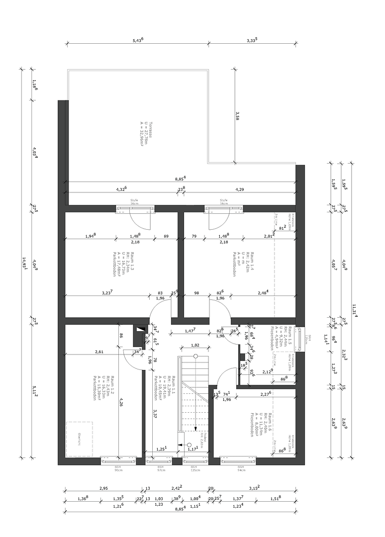
Poschodie:
- Veľká slnečná strešná terasa
- 3 izby, z ktorých 2 majú priamy prístup na terasu na strane záhrady
- Veľká rodinná kúpeľňa
Poschodie pod strechou:
Táto časť domu môže byť zrekonštruovaná. Plány, statické výpočty a stavebné povolenie už boli získané.
Podzemie:
- 4 miestnosti
Exteriér:
- Veľká dvojgaráž
- Upravená záhrada s dostatkom súkromia
V ukážkovom videu a na ukážkových fotografiách uvidíte návrhy interiérového dizajnu od profesionálnych dizajnérov:
https://www.ohne-makler.net/immobilie/309461/panorama/
Navštívte nás a nechajte sa očariť týmto domom, ktorý sa nachádza v jednej z najžiadanejších lokalít v Bad Homburg Ober-Eschbach.
Tešíme sa na vašu správu!
Poloha je ideálna pre rodiny a dochádzajúcich. Stanica metra Ober-Eschbach je vzdialená len 5 minút chôdze a za iba 25 minút sa dostanete na hlavnú stanicu vo Frankfurte alebo na letisko. Lokalita je tiež perfektná pre dovolenkové cesty.
Parametre nehnuteľnosti
| Vek | Nad 50 rokov |
|---|---|
| Stav | Pred rekonštrukciou |
| Číslo inzerátu | 1012817 |
| Plocha pozemku | 502 m² |
| Cena za jednotku | 3 025,64 € / m2 |
| Dostupné od | 16. 4. 2026 |
|---|---|
| Dispozícia | 7+1 |
| Úžitková plocha | 195 m² |
| Celkové poschodia | 3 |
Čo táto nehnuteľnosť ponúka?
| Pivnica | |
| Parkovanie |
| Garáž | |
| MHD 2 minúty pešo |
V okolí nehnuteľnosti nájdete
Stále hľadáte to pravé?
Nastavte si strážneho psa. Ponuky vybrané na mieru dostanete súhrnne 1× denne e-mailom. S Premium profilom máte po ruke rovno 5 strážcov a keď sa niečo objaví, informujú vás obratom.






















