
Prenájom bytu 2+1 • 90 m² bez realitkyGraf-Adolf-Straße 54 Bochum Wattenscheid Nordrhein-Westfalen 44866
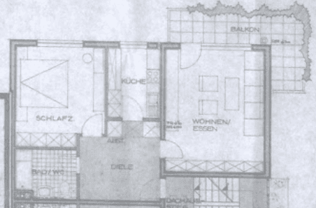
Graf-Adolf-Straße 54 Bochum Wattenscheid Nordrhein-Westfalen 44866MHD 2 minúty pešoTáto udržiavaná 2-izbová bytosť sa nachádza v 3. nadzemnom podlaží veľmi upraveného viacrodinného domu na adrese Graf-Adolf-Straße 54 v Bochume a ponúka príjemný domov s dobrou dispozíciou na približne 65,04 m².
Bytosť bola nedávno zrekonštruovaná a zaujme novým laminátovým podlahovým krytom ako aj čerstvo zmaľovanými stenami. Zo štědrej predsiene sú všetky miestnosti ľahko prístupné. Priestranná vstavaná skriňa v predsieni poskytuje dodatočný úložný priestor a podčiarkuje praktické rozdelenie bytu.
Štedrá izba s prístupom na balkón vnáša do bytu jedinečný šarm. Tu bývate takmer nad strechami Bochumu a z balkóna si môžete vychutnať nádherný výhľad do diaľky. Miestnosť pôsobí otvorene, priateľsky a vytvára príjemnú obytnú atmosféru s osobitým čarom.
Aj druhá izba zaujme kvalitnou dispozíciou a svetlým a priateľským vzhľadom, a môže sa flexibilne využiť ako spálňa, pracovňa alebo izba pre hostí.
Interiérova kúpeľňa, nachádzajúca sa vo vnútri bytu, je nadčasovo biela obkladom a bola vybavená novým WC aj novým umývadlom. K bytu patrí aj samostatná pivnica.
Byt je k dispozícii okamžite.
Byt sa nachádza na Graf-Adolf-Straße v Bochume. Obchody s potrebnými dennými potrebami, verejná doprava a ďalšie zariadenia dennodenného života sú v okolí dostupné. Poloha ponúka dobré spojenie do okolných častí mesta a do mesta Bochum.
– 2 izby
– cca 65,04 m²
– 3. nadzemné podlažie vpravo
– balkón
– nový laminátový podlahový kryt
– čerstvo zmaľované steny
– interiérová kúpeľňa
– nové WC
– nové umývadlo
– priestranná predsieň
– praktická vstavaná skriňa
– samostatná pivnica
– práčovňa a sušiareň sú k dispozícii
– k dispozícii okamžite
Prosím, vezmite na vedomie, že budú posudzované iba dopyty s úplnými kontaktnými údajmi (meno, telefónne číslo a e-mailová adresa).
Všetky údaje v tejto inzercii sú založené na informáciách majiteľa. Nebudeme zodpovedať za správnosť a úplnosť poskytnutých údajov.
Dokým je táto inzercia online, byt je ešte dostupný.
Parametre nehnuteľnosti
| Vek | Nad 50 rokov |
|---|---|
| Stav | Po rekonštrukcii |
| Poschodie | 3. poschodie z 3 |
| PENB | D - Menej hospodárne |
| Cena za jednotku | 6,09 € / m2 |
| Dostupné od | 15. 4. 2026 |
|---|---|
| Dispozícia | 2+1 |
| Číslo inzerátu | 1012580 |
| Úžitková plocha | 90 m² |
Čo táto nehnuteľnosť ponúka?
| Balkón | |
| MHD 2 minúty pešo |
| Pivnica |
V okolí nehnuteľnosti nájdete





Prenájom bytuDeichstraße 97 Gelsenkirchen Gelsenkirchen Nordrhein-Westfalen 45889- 2+1
- 54 m²
460 € + 185 €
Stále hľadáte to pravé?
Nastavte si strážneho psa. Ponuky vybrané na mieru dostanete súhrnne 1× denne e-mailom. S Premium profilom máte po ruke rovno 5 strážcov a keď sa niečo objaví, informujú vás obratom.








