
Predaj domu 7+1 • 195 m² bez realitkyHopfengarten 14, , Dolné Sasko
Hopfengarten 14, , Dolné SaskoMHD 3 minúty pešo • GarážRodinný dom v pokojnej, centrálnej lokalite na vlastníckom pozemku o rozlohe 603 m² na predaj.
Obytný dom postavený v roku 1928 bol približne od roku 1990 prestavovaný a modernizovaný v niekoľkých etapách, pričom boli kompletné recyklované inštalácie a namontované nové okná (Merantiholz, Ug=1,3 W/m²k).
Vonkajšie múry pozostávajú z dvojvrstvovej tehly s viditeľným múrovým obkladom, do 7 cm hrubého spárovania medzi vrstvami bola dofúkaná jadrová izolácia.
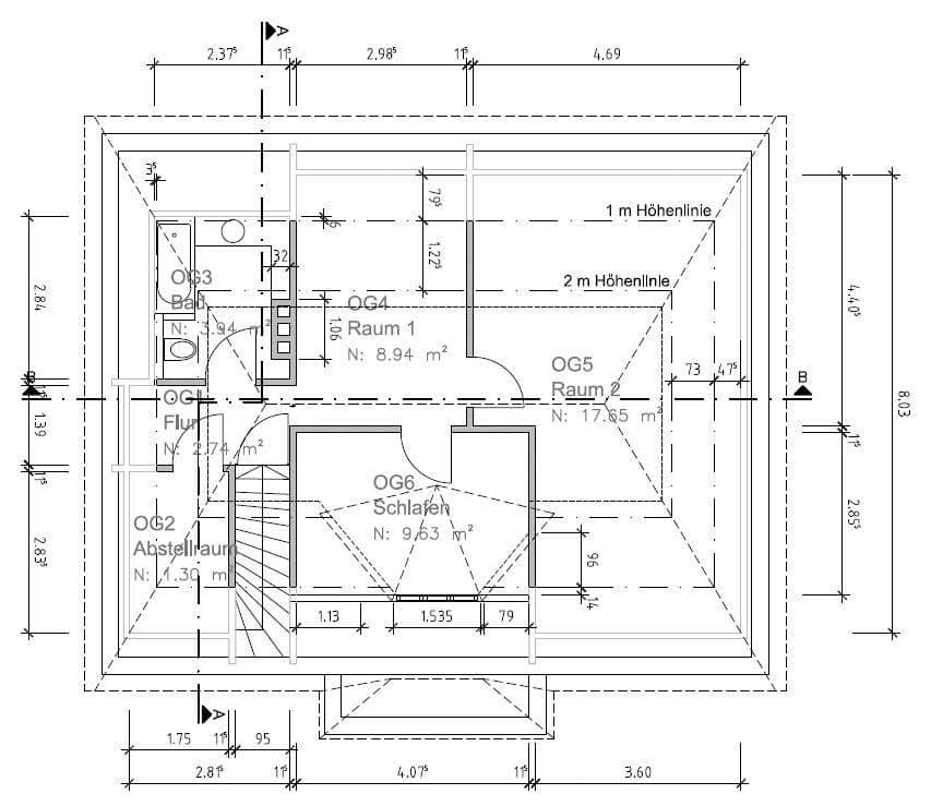
Strecha prekrytá tehľovými dutými plechami bola izolovaná 10+4 cm minerálnou vlnou, pričom celý podkrovný priestor bol zrekonštruovaný. Na podkroví sa okrem obytných miestností nachádza kúpeľňa a sú tam aj prípojky pre kuchyňu. Pred niekoľkými rokmi bol na podkroví položený vinylový podlahový kryt. Južná obytná časť je prostredníctvom lezeckej konštrukcie (určenej pre deti) spojená s malým šikmým podkroví.
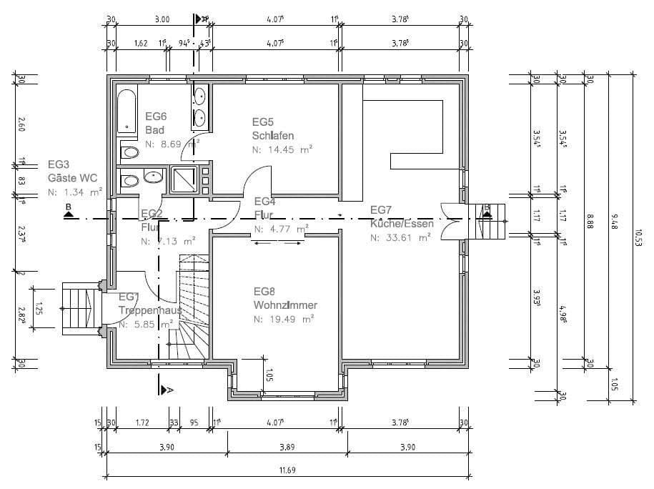
V prízemí (vyvýšené prízemie) je kuchynsko-jedálenský priestor spojený s terasou pomocou vonkajších schodov. Kúpeľňa je priamo prístupná zo spálne, zatiaľ čo hosťovské WC je dostupné z chodby. V kuchyni je položená vysoko kvalitná žulová podlaha, jedálenská časť je vybavená kvalitnými masívnymi dubovými doskami (americký dub). Keramická obloha kuchynskej linky je vyrobená z rovnakého materiálu ako podlaha. V priechodovej chodbe a obytných priestoroch sa nachádza opotrebovaný koberec zo sisalu. Steny sú čiastočne omietnuté, setrené a natreté, inokedy obložené textúrovanou sklenenou vlákninou. Stropy sú hladko omietnuté a natreté.
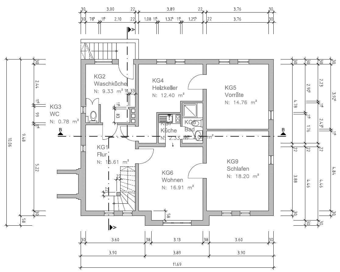
Suterén je prístupný nielen cez vnútorné schody, ale aj cez vonkajšie schody umiestnené na zadnej strane budovy. Dva pôvodne v suteréne nachádzajúce sa obývacie priestory boli doplnené o malú kuchynku a sprchovaciu kúpeľňu. V práčovni sa nachádza ďalšie WC. V skladovacej miestnosti, vykurovacej miestnosti, práčovni a suterénovom chodbovom priestore sa objavujú prejavy vlhkosti v dôsledku nedostatočnej izolácie vonkajších suterénnych múrov.
Priamo pri ulici sa nachádza jednoduchá garáž postavená do svahu (len pre malé autá), ktorej železobetónová strecha je využiteľná ako terasa.
Záhrada s veľkými ovocnými stromami a južnou časťou domu, kde rastú viniče, vyžaduje vzhľadom na dlhšiu neobývanosť domu trochu starostlivosti.
Dom sa nachádza centrálne na veľmi pokojnej a zelenej prístupovej ceste. Nádražie je pešo dostupné do 10 minút, vzdialenosť k východnému obchádzaniu je približne 1 300 m.
Všetky nákupy aj návštevy lekára je možné zariadiť pešo.
POZNÁMKA: Zlé výsledky energetického preukazu sú spôsobené tým, že vyhotoviteľ použil značne zjednodušený postup a zahrnul do výpočtu celý suterén. Pri porovnateľnom výpočte, kde sa hodnotilo iba prízemie a podkrovia, vychádza primárna energetická náročnosť 135,50 kWh/(m²a) a konečná energetická náročnosť 122,10 kWh/(m²a).
Ponúkaná nehnuteľnosť je, okrem prípadných maliarskych a podlahových prác, ihneď k dispozícii. Upozorňuje sa, že je potrebné vykonať ešte niekoľko "drobných prác", ktoré zostali nedokončené, ale neovplyvnili obývateľnosť (napríklad niektoré lišty nie sú pripevnené, rôzne kryty spínačov a lišty vykurovacích potrubí nie sú namontované...).
Keďže sa nehnuteľnosť má bánkovať v krátkodobom horizonte, žiada sa len o dopyty od záujemcov, ktorých financovanie je už zabezpečené.
Parametre nehnuteľnosti
| Vek | Nad 50 rokov |
|---|---|
| Stav | Po rekonštrukcii |
| Číslo inzerátu | 1012383 |
| Úžitková plocha | 195 m² |
| Celkové poschodia | 3 |
| Dostupné od | 26. 4. 2026 |
|---|---|
| Dispozícia | 7+1 |
| PENB | G - Mimoriadne nehospodárne |
| Plocha pozemku | 603 m² |
| Cena za jednotku | 3 841,03 € / m2 |
Čo táto nehnuteľnosť ponúka?
| Pivnica | |
| MHD 3 minúty pešo |
| Garáž | |
| Terasa |
V okolí nehnuteľnosti nájdete
Stále hľadáte to pravé?
Nastavte si strážneho psa. Ponuky vybrané na mieru dostanete súhrnne 1× denne e-mailom. S Premium profilom máte po ruke rovno 5 strážcov a keď sa niečo objaví, informujú vás obratom.



















































