
Predaj domu • 474 m² bez realitky, Severné Porýnie - Westfálsko
, Severné Porýnie - WestfálskoMHD do minúty pešo • ParkovanieObzvlášť krásny statok sa nachádza v kľudnej lokalite neďaleko Kölnu a Bónu!
Bývanie, práca a hobby, spojené na idylickom statku, ktorého pôvod siaha do okolia roku 1700. Táto nádherná a romantická oáza pohody bola priebežne modernizovaná a upravovaná podľa časových a účelových potrieb. Statok pozostáva z 3 parciel, preto je možné zakúpiť len hlavnú budovu s možnosťou neskoršieho rozšírenia.
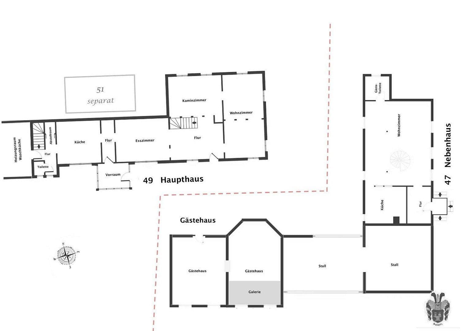
Statok pozostáva z hlavnej budovy a L-tvarovej prístavnej budovy, ktoré obklopujú idylický vnútorný dvor.
Priľahlá, nemožno preskúmať záhrada so slnečným osvetlením sa nachádza v absolútnej južnej polohe a ponúka voľný výhľad na lúky a polia. Majestátna breza poskytuje tieň a vyzýva na oddych.
Hlavná budova (49) disponuje 222 štvorcovými metrami obytného priestoru. V prízemí sa nachádzajú kuchyňa, predsieň, domácnosť, zásobáreň, hosťová toaleta, jedáleň, obývačka a krbová izba. Na prvom poschodí sú štyri izby s drevenými podlahami a dve kúpeľne a na podkroví sa nachádza sprchovacia kúpeľňa s presýpkou na obliekanie a spálňa.
Prenajímaný prístavný dom (47a) má 100 štvorcových metrov rozlohy rozdelených na dve podlažia. V prízemí je obývačka s hosťovou toaletou a vstavanou kuchyňou, ako aj ozdobná reprezentatívna umelecká kováčska schodisko, ktorá vedie nahor. Na poschodí sa nachádzajú spálne a vkusne zariadená kúpeľňa s vaňou. Dom bol kompletně prestavaný a zrenovovaný až v roku 2021. Súčasťou je aj malá záhrada a parkovacie miesto.
Vedľa toho sa nachádza štála s úložným priestorom, senáreňou a boxmi pre 2-4 kone, s prístreškom a malým jazdárskym ihriskom (14x18 m), s priamym prístupom na prenajatú pasovú plochu.
Na pravej strane od toho sa nachádza hosťovský dom s rozlohou 72 štvorcových metrov. Pozostáva z kuchyne, malej chodby, sprchovej kúpeľne a svetlej obývačkovej jedálne s nádherným výhľadom na juh plus podkrovia. Z chodby vedie schodisko do ďalšej miestnosti s veľkou sklenenou stenou.
Idylický pozemok s rozlohou viac ako 1 880 štvorcových metrov (49 – 605 m², 47a+b – 1 067 m², 51 – 208 m²) sa nachádza v absolútnej južnej polohe so starým stromovým porastom. Nájdete tam romantickú kvalitu života v dobre vybudovanom susedstve.
Prístavný dom (51) bol v roku 2015 kompletně zrenovovaný a disponuje 80 m², ktoré sú rozdelené na štyri izby, kuchyňu, predsieň, hosťovú toaletu a kúpeľňu s vaňou, a to na troch podlažiach. Aj tento dom je veľmi dobre prenajatý. Pred domom sa nachádza záhrada s rozlohou 120 m² plus dve parkovacie miesta.
Nehnuteľnosť sa nachádza v kľudnej časti malej obce Much – zasadená do prírodnej krajiny lúk, polí a lesov. Tu si môžete vychutnať pokoj vidieckeho života a zároveň bezpečie a spoľahlivosť dobre vybudovanej dedinskej komunity.
Žiť tam, kde je svet ešte v poriadku.
Tu prebieha množstvo spoločných aktivít, ako napríklad mesačné stretnutia obyvateľov obce, každoročný zberový festival a mnoho ďalších podujatí. Noví obyvatelia sú srdečne vítaní.
V 4 kilometroch vzdialenom Much sa nachádza pekný lesný vonkajší bazén, športové ihrisko, tenisové kurty a golfový klub s 18-jamkovým majstrovským ihriskom.
Obec disponuje základnými školami, strednými školami (Hauptschule, Realschule a Gesamtschule), ako aj pobočkou ľudovej vysokej školy a súkromnou hudobnou školou. Školy sú zabezpečené školským autobusom.
Okrem toho je Much vybavený všetkými potrebnými lekármi a dokonca aj pohotovostným lekárskym strediskom. Nemocnice, ako napríklad v Siegburgu, Engelskirchen a Gummersbach, sa nachádzajú v bezprostrednej blízkosti.
Much má tiež dostatok obchodov a množstvo trhov (supermarket, diskont, drogéria, módny obchod, optik, banka, reštaurácie, gril, pizzeria, čínska reštaurácia a mnoho ďalších).
Prístup na diaľnicu A4 je približne 8 minút autom.
Blízky Overath vám poskytuje komfortnú možnosť zaparkovať si a vyraziť vlakom (P&R stanica) pre rýchle a pohodlné spojenie do Kölnu.
Všetko, čo potrebujete na nákupy, nájdete iba približne 3 kilometre vzdialene v Drabenderhöhe.
Zriedkavo krásny statok disponuje 4 obytnými domami, ktoré sú všetky centrálnym vykurované. S výnimkou hosťovského domu majú všetky domy aj krbové pece, ktoré sa napájajú na drevo.
Oba prístavné domy sú dobre prenajaté. Hlavný dom je v súčasnosti obývaný nami. 72 m² veľký hosťovský dom bol práve dokončený a je ešte voľný.
Statok pozostáva zo 3 samostatných parciel (47, 49 a 51), ktoré je možné zakúpiť aj samostatne.
Parametre nehnuteľnosti
| Vek | Nad 50 rokov |
|---|---|
| Číslo inzerátu | 1012345 |
| Úžitková plocha | 474 m² |
| Celkové poschodia | 3 |
| Stav | Dobrý |
|---|---|
| PENB | F - veľmi nehospodárne |
| Plocha pozemku | 1 880 m² |
| Cena za jednotku | 2 067,51 € / m2 |
Čo táto nehnuteľnosť ponúka?
| Pivnica | |
| MHD 0 minút pešo |
| Parkovanie | |
| Terasa |
V okolí nehnuteľnosti nájdete
Stále hľadáte to pravé?
Nastavte si strážneho psa. Ponuky vybrané na mieru dostanete súhrnne 1× denne e-mailom. S Premium profilom máte po ruke rovno 5 strážcov a keď sa niečo objaví, informujú vás obratom.





























