
Prenájom kancelárie • 415 m² bez realitkyLeopoldstraße 55 München Schwabing Bayern 80802
Leopoldstraße 55 München Schwabing Bayern 80802MHD 2 minúty pešo • ParkovaniePriestranné kancelárske priestory a nová kuchyňa
Veľa denného svetla cez veľké okná v každej miestnosti.
Priestor bol nedávno komplexne zrekonštruovaný a kuchyňa kompletne nová inštalovaná.
Nenehnuteľný - kanceláriu si môžete individuálne upraviť podľa vlastných predstáv.
Kancelária sa nachádza na adrese Leopoldstraße 55, priamo na Münchner Freiheit – jednom z najatraktívnejších miest v Mníchove. Dopravné spojenie je vynikajúce: metro, autobus a električka sú len pár krokov vzdialené. Navyše sa v bezprostrednom okolí nachádza veľa reštaurácií, kaviarní a obchodných možností.
Individuálne riešenia vybavenia a úprav na základe dohody,
flexibilné podmienky ohľadom dĺžky prenájmu a ceny
Parametre nehnuteľnosti
| Dostupné od | 20. 4. 2026 |
|---|---|
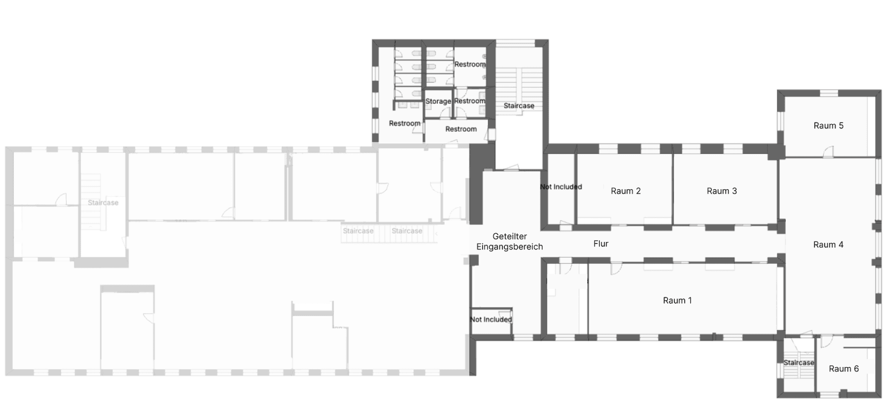
| Poschodie | Prízemie |
| Plocha kancelárie | 415 m² |
| Stav | Po rekonštrukcii |
|---|---|
| Číslo inzerátu | 1012344 |
| Cena za jednotku | 0 € / m2 |
Čo táto nehnuteľnosť ponúka?
| Parkovanie |
| MHD 2 minúty pešo |
V okolí nehnuteľnosti nájdete
Stále hľadáte to pravé?
Nastavte si strážneho psa. Ponuky vybrané na mieru dostanete súhrnne 1× denne e-mailom. S Premium profilom máte po ruke rovno 5 strážcov a keď sa niečo objaví, informujú vás obratom.









