
Prenájom bytu 3+1 • 90 m² bez realitkyOverather Straße 10 a, , Severné Porýnie - Westfálsko
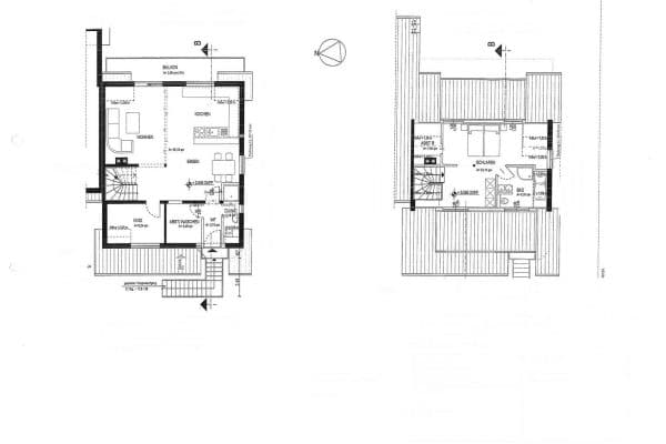
Overather Straße 10 a, , Severné Porýnie - WestfálskoMHD 3 minúty pešo • GarážTáto dvojpodlažná bytosť s obytnou plochou cca 89,95 m² sa nachádza v 3. poschodí udržiavaného viacrodinného domu so štyrmi poschodiami. Rozdelenie na dve úrovne dodáva bytu otvorený a príjemný obytný charakter.
Obývacia a jedálenská časť s otvorenou kuchyňou tvorí srdce bytu a vďaka rozsiahlej okennej ploche poskytuje veľa denného svetla. Odtiaľ máte prístup na balkón, ktorý ponúka pekný výhľad na okolie s diaľkovým pohľadom smerom ku Kolínu.
Cez špirálové schody sa dostanete na hornú úroveň, ktorá je zariadená ako galériový priestor a umožňuje otvorený výhľad do obývacej izby. Táto časť dodáva bytu špeciálny priestorový efekt.
Byt disponuje dvoma spálňami, ktoré sa rozprestierajú na oboch úrovniach. Väčšia spálňa sa nachádza v hornom priestore, zatiaľ čo druhá izba v dolnej časti môže byť využitá podľa vlastných potrieb.
Dve kúpeľne zaručujú dodatočný komfort. V dolnej kúpeľni je navyše priestor pre práčku a sušičku. Náväzné na byt je aj praktická komora a samostatný suterénny priestor s využiteľnou plochou cca 6 m².
Súčasné interiérové snímky pochádzajú z predchádzajúceho využitia a ukazujú potenciál bytu. V súčasnosti je jednotka v neupravenom/nevypožičanom stave.
Byt je vhodný pre páry alebo malé domácnosti, ktoré ocenia netradičné rozdelenie priestoru a dobrú polohu v Bensberge. V okolí sú k dispozícii možnosti nákupov a dobrá dostupnosť verejnej dopravy.
Byt sa nachádza v Bensberge, obľúbenom mestskom obvode Bergisch Gladbach s výbornou dostupnosťou do Kolína. Overather Straße je centrálnou dopravnou tepnou spájajúcou Bensberg s prilehlými časťami mesta aj smerom k Overathu a ponúka dobrú dostupnosť ako autom, tak aj verejnou dopravou.
V bezprostrednom okolí sa nachádza niekoľko obchodov, služieb a gastronomických zariadení pre každodenné potreby. Autobusové zastávky sú dostupné aj pešo, takže verejná doprava je zabezpečená.
Bensberger Zentrum s ďalšími obchodmi, lekármi a reštauráciami je dostupné len v priebehu niekoľkých minút. Navyše, cez nedaleko ležiacu stanicu metra Bensberg (linky 1) máte priamy spoj do kolínskeho centra.
Blízkosť diaľnice A4 (výjazd Moitzfeld) navyše umožňuje rýchle pripojenie na regionálnu a nadregionálnu cestnú sieť.
Celkovo lokalita spája výbornú infraštruktúru s obytným prostredím a je vhodná pre dochádzajúcich do práce aj pre nájomníkov, ktorí ocenia jednoduchú dostupnosť.
Na prízemí bytu je položená drevená podlaha, ktorá vytvára teplú a príjemnú atmosféru. V hornom priestore je momentálne položený koberček, ktorý bol umiestnený na kvalitnej korkovej podlahe. Túto úpravu je možné podľa želania ponechať alebo individuálne prispôsobiť.
Existujúca vstavaná kuchyňa je kompletne vybavená a zahŕňa okrem iného priestrannú chladničku s mrazničkou (side-by-side), rúru s grilovacou funkciou, mikrovlnnú kombináciu a keramickú varnú dosku. Pred novým prenájmom bude kuchyňa samozrejme odborně a dôkladne vyčistená.
Je predpokladané prevzatie alebo spoluprenájom kuchyne, pričom detaily je možné flexibilne dohodnúť. Na požiadanie je tiež možnosť integrovať vlastné spotrebiče alebo vykonať úpravy.
Okrem toho je k dispozícii praktická komora s oddelenými dverami, ktorá ponúka dostatočný priestor pre domáce spotrebiče a zásoby.
Byt má navyše dve kúpeľne, čo umožňuje pohodlné využitie v každodennom živote a oddelenie hostinského priestoru od súkromnej časti.
Celkovo vybavenie poskytuje solídny základ, ktorý je funkčný aj prispôsobiteľný individuálnym potrebám.
Parametre nehnuteľnosti
| Vek | Nad 50 rokov |
|---|---|
| Dispozícia | 3+1 |
| Číslo inzerátu | 1012081 |
| Úžitková plocha | 90 m² |
| Dostupné od | 1. 7. 2026 |
|---|---|
| Poschodie | 3. poschodie z 4 |
| PENB | E - Nehospodárne |
| Cena za jednotku | 13,89 € / m2 |
Čo táto nehnuteľnosť ponúka?
| Balkón | |
| Garáž |
| Pivnica | |
| MHD 3 minúty pešo |
V okolí nehnuteľnosti nájdete
Stále hľadáte to pravé?
Nastavte si strážneho psa. Ponuky vybrané na mieru dostanete súhrnne 1× denne e-mailom. S Premium profilom máte po ruke rovno 5 strážcov a keď sa niečo objaví, informujú vás obratom.
















