
Prenájom domu 7+1 • 144 m² bez realitkyBahnhofstr., , Bádensko-Wurttembersko
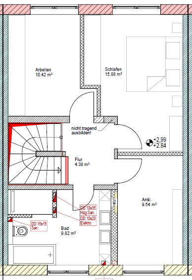
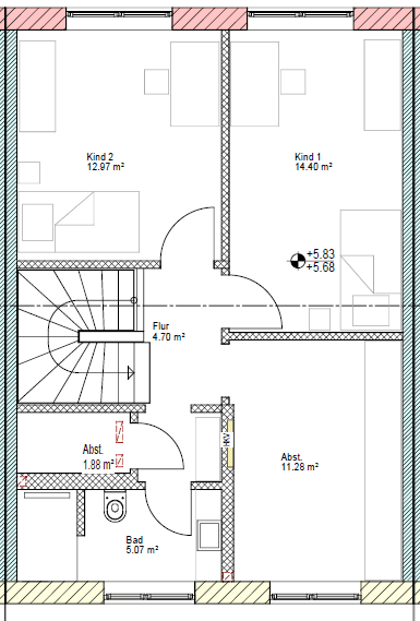
Bahnhofstr., , Bádensko-WurttemberskoMHD 3 minúty pešo • ParkovanieReťazový dom v peknej lokalite pozostáva zo 3 plne využiteľných poschodí bez rušivých šikmých podkroví. Nad obytnou časťou v prízemí nájdete 6 ďalších izieb, ktoré je možné využiť ako spálne, kanceláriu alebo hobby miestnosť. K dispozícii sú 2 kúpeľne, hostinská toaleta a 1 pivnička. Súčasťou domu sú aj 2 parkovacie miesta. Dom bol postavený v roku 2021 a vykurovaný je tepelné čerpadlo so solným zdrojom. Náklady na vykurovanie sú veľmi nízke.
Dom bude k dispozícii od 1.7.2026.
Nehnuteľnosť sa nachádza v Bad Schönborn. Pešo dostupné sú autobusové linky a vlakové linky RE 73, S3 a S4. V pešej vzdialenosti nájdete niekoľko reštaurácií, pekárne, dve kaviarne, dvoch lekárov a dva supermarkety. Aj rôzne fitness centrá, zelené plochy a parky, módne obchody, kníhkupectvo a knižnica sú ľahko dostupné pešo. Ďalej nájdete viaceré možnosti nákupov a tiež miesta na večerné vyžitie.
- Internetové pripojenie cez optické vlákno od Telekomu
- Podlahové kúrenie vo všetkých izbách
- Nákladovo efektívne tepelné čerpadlo s funkciou chladiča
- Bezpečnostné vybavenie okien a dverí v prízemí
- Drevené/aluframené okná
- Všetky kúpeľne s oknom
- Masívne schody
- Veľkoformátové dlaždice v prízemí
- Podlahové krytiny z dubu
Existujúca zabudovaná kuchyňa a wallbox sa môžu prevziať od predchádzajúceho majiteľa za odkupné.
Parametre nehnuteľnosti
| Vek | Nad 50 rokov |
|---|---|
| Dispozícia | 7+1 |
| PENB | A - Mimoriadne úsporné |
| Plocha pozemku | 190 m² |
| Cena za jednotku | 13,82 € / m2 |
| Stav | Veľmi dobrý |
|---|---|
| Číslo inzerátu | 1011899 |
| Úžitková plocha | 144 m² |
| Celkové poschodia | 3 |
Čo táto nehnuteľnosť ponúka?
| Parkovanie | |
| Terasa |
| MHD 3 minúty pešo |
V okolí nehnuteľnosti nájdete
Stále hľadáte to pravé?
Nastavte si strážneho psa. Ponuky vybrané na mieru dostanete súhrnne 1× denne e-mailom. S Premium profilom máte po ruke rovno 5 strážcov a keď sa niečo objaví, informujú vás obratom.








