
Prenájom bytu 2+1 • 74 m² bez realitkyAm Steinkart 5b, , Bavorsko
Am Steinkart 5b, , BavorskoMHD 5minút pešo • Výťah • ParkovanieÚžasné bývanie a život v Bad Griesbach
Tu sa architektúra a pocit bývania stretávajú v dokonalom súlade. Byty spájajú príjemný pocit kvality a štýlovosti. Priestranné, svetlom naplnené priestory okúzľujú vysoko kvalitnými materiálmi s nadčasovou krásnou estetikou.
V krásnej rezidenčnej časti Bad Griesbach pre Vás realizujeme náročný projekt novej výstavby na najatraktívnejšej lokalite, ktorý pozostáva zo štyroch bytových domov s celkovým počtom 44 výnimočných a moderných bytových jednotiek. Okrem kvality kladieme pri plánovaní a realizácii veľký dôraz na súčasnú a regiónu prispôsobenú architektúru. Pozemok sa nachádza v úchvatnej vyvýšenej polohe na konci osady a ponúka voľný výhľad na hory. Mestské námestie, lekári a všetky zariadenia každodenných potrieb sú ľahko dostupné pešo.
Byty presviedčajú svojimi priestrannými balkonmi, strešnými terasami a terasami so záhradami. Záhrady prízemných bytov sú k dispozícii výlučne pre majiteľa. Penthouse byty a byty v horných poschodiach ponúkajú úchvatný a nezablokovateľný výhľad s pohľadom na Alpy. Výťahy pohodlne prepravujú všetkých obyvateľov z podzemnej garáže na každé poschodie. Veľká časť bytov je bezbariérová.
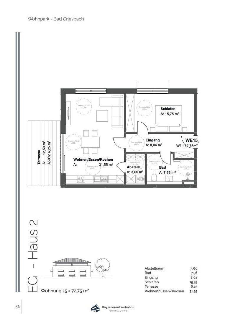
Náš slnečný 2-izbový byt so záhradou, južnou terasou, spálňou, kúpeľňou a priestranným otvoreným obývacím, jedálenským a kuchynským priestorom je ideálny pre rodiny a páry, ktoré hľadajú miesto na oddych a pohodu! Veľká záhrada je k dispozícii výlučne pre príslušného majiteľa.
Samozrejme, projekt ponúka parkovacie miesta v carporte ako aj vonkajšie parkovacie miesta. Navyše, každý byt disponuje vlastným pivničným priestorom.
Štandard KFW 40 QNG:
Stavebná realizácia spĺňa všetky kritériá aktuálnej EnEV v energetickej triede KfW40 QNG a zdôrazňuje udržateľnú stavebnú techniku svojou tepelnou obálkou budovy. Tým pádom je stavba veľmi energeticky úsporná, udržateľná a šetrná k životnému prostrediu. Vďaka tejto stavebnej metóde budú budúce prevádzkové náklady veľmi nízke. Energetický koncept je podporovaný fotovoltaickou inštaláciou s výkonom 10 kWp.
Zloženie nájomného:
- Nájomné za 2-izbový byt: 800,00 EUR
- Nájomné za miesto v carporte: 60,00 EUR
- Nájomné za vonkajšie parkovacie miesto: 40,00 EUR
- Nájomné za vstavanú kuchyňu: 55,00 EUR
- Dodatočné náklady: 160,00 EUR
= Celkové nájomné (vrátane tepla): 1115,00 EUR
K dispozícii je viacero bytov, ktoré je možné si prezrieť počas prehliadky v bytovom areáli!
Bývanie & život v Bad Griesbach
V nezablokovateľnej najlepšej lokalite s úchvatným výhľadom a neďaleko centra Bad Griesbach vznikajú štyri bytové domy s celkovým počtom 44 osobitných a moderných bytových jednotiek.
Moderné & prémiové vybavenie:
+ Moderná stavba a vysoko kvalitné vybavenie podľa štandardu KfW 40 NH Effizienzhaus
+ Tepelnoizolačné tehly
+ Vstavaná kuchyňa
+ Fotovoltaická inštalácia s výkonom 10 kWp
+ Úžasné strešné terasy s voľným výhľadom (alpské panorama)
+ Prízemné byty s terasami a záhradným usporiadaním
+ Priestranné balkóny ako loggia
+ Pre každý bytový dom je k dispozícii výťah
+ Energeticky úsporné kúrenie pomocou peletových kotlov
+ Byty väčšinou bezbariérové
+ Kvalitné parketové podlahy z masívneho dreva / moderné dlaždice
+ Individuálne nastaviteľné podlahové kúrenie pre príjemný pocit bývania
+ Bezbariérové sprchy a dizajnové kúpeľňové vybavenie
+ Čiastočne s návštevnou toaletou
+ Hliník-plastové okná, vonkajšie antracit, vnútorné biele (trojité izolačné zasklenie)
+ Elektricky ovládateľné rolety a lamely
+ Dezcentrálne vetranie obytných priestorov s rekuperáciou tepla
+ Parkovacie miesta v carporte
+ Vonkajšie parkovacie miesta
Pre každý byt jeden pivničný priestor.
Parametre nehnuteľnosti
| Vek | Nad 50 rokov |
|---|---|
| Dispozícia | 2+1 |
| PENB | A - Mimoriadne úsporné |
| Cena za jednotku | 10,81 € / m2 |
| Stav | Novostavba |
|---|---|
| Číslo inzerátu | 1011690 |
| Úžitková plocha | 74 m² |
Čo táto nehnuteľnosť ponúka?
| Bezbariérový prístup | |
| Výťah | |
| MHD 5 minút pešo |
| Pivnica | |
| Parkovanie | |
| Terasa |
V okolí nehnuteľnosti nájdete
Stále hľadáte to pravé?
Nastavte si strážneho psa. Ponuky vybrané na mieru dostanete súhrnne 1× denne e-mailom. S Premium profilom máte po ruke rovno 5 strážcov a keď sa niečo objaví, informujú vás obratom.

















