
Prenájom bytu 2+kk • 40 m² bez realitkyV Kališti, Praha - Dubeč
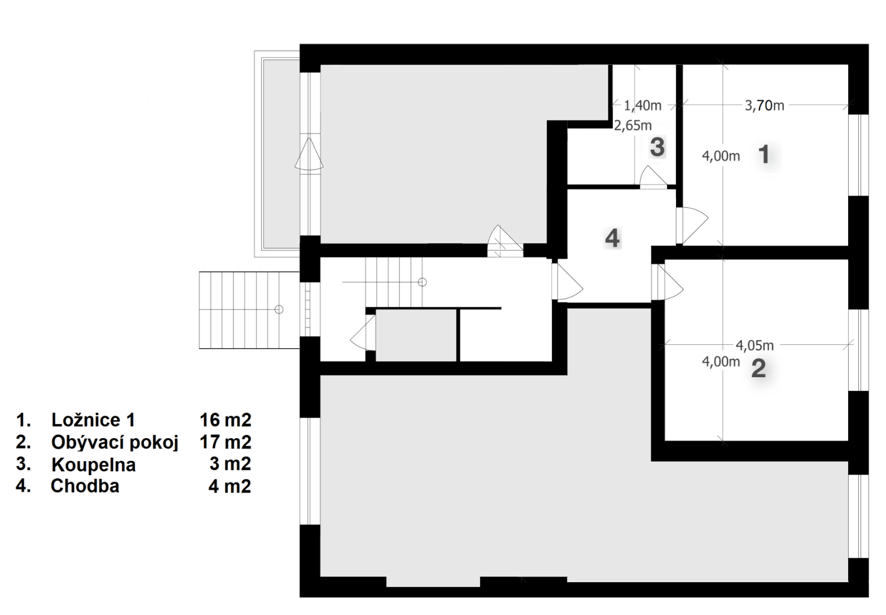
V Kališti, Praha - DubečMHD 5minút pešo • Čiastočne vybavené • ParkovanieNabízíme k pronájmu byt 2+kk po kompletní rekonstrukci nacházející se v patře rodinného domu.
Byt je částečně zařízen, mezi vybavení patří kuchyňská linka s indukční deskou, troubou, digestoří, mikrovlnnou troubou, myčkou a lednicí. Koupelna je vybavena sprchovým koutem, toaletou a pračkou s integrovanou sušičkou.
Energie jsou měřené samostatným vodoměrem a elektroměrem.
Na pozemku je k dispozici parkovací místo. K relaxaci je možné využívat rozsáhlou zahradu.
Cena nájmu činí 20 000 Kč měsíčně, poplatky činí 4 000 Kč a zahrnují již el. energii, vodu a internet.
Zastávka autobusu je vzdálená 200 m. Na náměstí v Dubči je obchod Tesco, pošta, praktický lékař, sportovní centrum a další služby.
Byt je nekuřácky. Prosíme bez domácích zvířat.
Celá nemovitost byla postavena z kvalitních materiálů, což se odráží v pečlivě udržovaném stavu bytu. Pro efektivní jednání ohledně pronájmu prosím o komunikaci skrze komunikační platformu. Pokud hledáte komfort a klidné bydlení, tento byt by mohl být tím pravým řešením.
Parametre nehnuteľnosti
| Dostupné od | 10. 7. 2025 |
|---|---|
| Konštrukcia budovy | Tehla |
| Vybavené | Čiastočne |
| Číslo inzerátu | 1011667 |
| Cena za jednotku | 500 CZK / m2 |
| Stav | Veľmi dobrý |
|---|---|
| Dispozícia | 2+kk |
| Poschodie | 2. poschodie z 2 |
| Úžitková plocha | 40 m² |
Čo táto nehnuteľnosť ponúka?
| Parkovanie |
| MHD 5 minút pešo |
V okolí nehnuteľnosti nájdete
Stále hľadáte to pravé?
Nastavte si strážneho psa. Ponuky vybrané na mieru dostanete súhrnne 1× denne e-mailom. S Premium profilom máte po ruke rovno 5 strážcov a keď sa niečo objaví, informujú vás obratom.













