
Prenájom bytu 2+1 • 53 m² bez realitkyAngerstraße 11 Leipzig Altlindenau Sachsen 04177
Angerstraße 11 Leipzig Altlindenau Sachsen 04177MHD 2 minúty pešoPri tejto kvalitnej 2-izbovej rezidencii v prízemí ide o prvý predaj po komplexnej rekonštrukcii s ohľadom na historické původné kvality. Byt tak zodpovedá štandardu novej výstavby v existujúcej budove a ponúka moderný obytný komfort so zachovaním pôvabu historickej budovy.
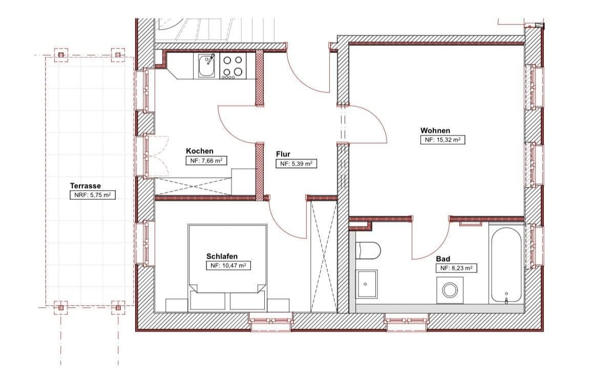
Na približne 52,82 m² obytného priestoru zaujme premyslené dispozičné riešenie s svetlými obytnými priestormi a priamym vstupom na priestrannú terasu do pokojného, zeleniou obklopeného vnútorného dvora. Byt je svetlý, slnečný a kvalitne dokončený.
Budova zahŕňa iba päť obytných jednotiek, čo zabezpečuje pokojné a prehľadné susedské prostredie.
Budovu vykurova moderná tepelná pumpa (Energetická trieda A), vďaka čomu možno dlhodobo očakávať nižšie a stabilné náklady na vykurovanie.
Byt sa prenajíma bez vstavaných kuchynských zariadení, čo umožňuje individuálne prispôsobenie priestoru podľa vlastných predstáv.
Fotografie bytu uvedené v inzpekte zobrazujú aktuálny, takmer dokončený stav. Základné upratovanie a dokončovanie terasy prebieha práve teraz.
Byt sa nachádza v Alt-Lindenau, jednej z najžiadanejších lokalít na západe Lipska. Táto štvrť spája mestský život, ustálené susedské vzťahy a hojnosť zelene s vynikajúcou infraštruktúrou.
Alt-Lindenauer trh je dosiahnuteľný pešo za približne 3 minúty a tvorí pulzujúce centrum štvrte s kaviarňami, reštauráciami, týždenným trhom a rôznymi možnosťami nakupovania denného tovaru (napr. Kaufland).
Zastávka električky sa nachádza len približne 1 minútu pešo, čo umožňuje rýchle spojenie s centrom Lipska aj okolím.
Osobitnou výhodou je priamo pri budove susediaca zelená plocha, ktorá zostane trvalo neobytovaná a poskytuje pokoj, voľný výhľad a príjemné, zelené obytné prostredie.
Alt-Lindenau patrí už roky medzi najžiadanejšie obytné štvrte Lipska. Nakupovacie možnosti, lekári, školy, materské školy a ponuka voľnočasových aktivít sú v bezprostrednej blízkosti, čo robí lokalitu mimoriadne atraktívnou.
• Prvý predaj po vysoko kvalitnej rekonštrukcii s rešpektom k historickým hodnotám (novostavba v existujúcej budove)
• Masívne drevené parkety vo všetkých obytných miestnostiach
• Moderná kúpeľňa s veľkoformátovými dlaždicami
• Energetická trieda A
• Vykurovanie pomocou energeticky efektívnej tepelnej pumpy (nižšie prevádzkové náklady)
• Priestranná terasa s prístupom do pokojného vnútorného dvora a malej záhrady
• Malá domová komunita iba s piatimi obytnými jednotkami
• Praktický, prízemný úložný priestor v budove
• Moderná technologická výbava budovy a aktuálny štandard bývania (napr. podlahové kúrenie)
Prvý predaj s vysokokvalitnou rekonštrukciou v súlade s historickými hodnotami a s kvalitou novej výstavby. Tepelná pumpa zabezpečuje dlhodobo nižšie prevádzkové náklady. Terasa, pokojný zelený vnútorný dvor, prilehlá zelená plocha a malá domová komunita robia z tohto bytu v Alt-Lindenau jedinečnú príležitosť.
Parametre nehnuteľnosti
| Vek | Nad 50 rokov |
|---|---|
| Stav | Po rekonštrukcii |
| Číslo inzerátu | 1010245 |
| Úžitková plocha | 53 m² |
| Dostupné od | 1. 5. 2026 |
|---|---|
| Dispozícia | 2+1 |
| PENB | A - Mimoriadne úsporné |
| Cena za jednotku | 15,09 € / m2 |
Čo táto nehnuteľnosť ponúka?
| Pivnica | |
| Terasa |
| MHD 2 minúty pešo |
V okolí nehnuteľnosti nájdete
Stále hľadáte to pravé?
Nastavte si strážneho psa. Ponuky vybrané na mieru dostanete súhrnne 1× denne e-mailom. S Premium profilom máte po ruke rovno 5 strážcov a keď sa niečo objaví, informujú vás obratom.


















