
Prenájom bytu 3+1 • 92 m² bez realitkyHafenstraße 27, , Porýnie-Falcko
Hafenstraße 27, , Porýnie-FalckoMHD 2 minúty pešo • Výťah • GarážPonorte sa do jedinečného životného štýlu v Bingen pri Rýne! Tento dychberúci 3-izbový byt v novej a exkluzívnej Bingen Gartenstadt vám ponúka mimoriadnu kvalitu bývania s fantastickým výhľadom a privilegovanou polohou pri brehu Rýna.
Zo svojho vlastného balkóna môžete zažiť magické okamihy, zatiaľ čo riečne vánky vás obklopia atmosférou pokoja a uvoľnenosti. Krásne záhrady ponúkajú schody smerom k brehu Rýna. Počas dňa si užívajte prírodnú krásu, ktorá vás obklopuje! Večer nájdete pozdĺž rieky aj reštaurácie a vínne bary.
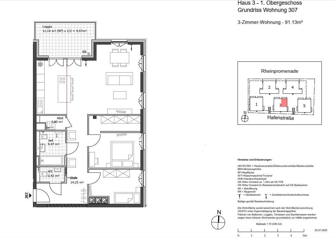
Tento 92 štvorcový meter veľký byt je navrhnutý tak, aby ponúkal najvyšší komfort a moderný životný štýl. Luxusné detaily, ako sú kvalitné kuchynské skrinky a starostlivo vybrané materiály, vyžarujú eleganciu a jedinečnú kvalitu v každom kúte.
Štedré okná od podlahy po strop nechávajú do interiéru prúdiť prirodzené svetlo a vytvárajú svetlú, príjemnú atmosféru, ktorá vám každý deň vykúzli úsmev. S pohodlným balkónom, praktickou úložnou miestnosťou, podzemnou garážou a ďalšou pivnicou vám tento byt ponúka všetko, čo potrebujete a ešte viac.
Objavte svoj dokonalý domov v tomto modernom a luxusnom byte na čarovnom brehu Rýna s jedinečným výhľadom na idylické ríčne údolie Rýna a malebný Rheingau. Tento útulný priestor ponúka jedinečnú kombináciu mestského života a spojenia s prírodou, doplnenú o moderné vybavenie a prémiovú polohu v Bingen, bráne do svetového dedičstva UNESCO. Zo svojej jedálne, kuchyne a obývacej izby máte priamy výhľad na Niederwalddenkmal, zatiaľ čo ostatné izby ponúkajú panoramatické výhľady na malebné mesto Rüdesheim. Len niekoľko krokov od bytu sa nachádza luxusný hotel Papa Rhein a množstvo kaviarní, barov, reštaurácií a vínnych krčiem. Objavíte aj niekoľko cyklotrás, ktoré vás zavedú do okolitých vinárskych oblastí a pozdĺž brehov Rýna. Lokalita ponúka pohodlné spojenie na diaľnice (A60, A61, B41, L419) smerom do miest ako Mainz (25 min), Ingelheim (16 min), Wiesbaden (34 min) a Bad Kreuznach (22 min), pričom letiská Frankfurt International a Frankfurt Hahn sú vzdialené len 40 minút. Železničné stanice Bingen Stadt a Bingen Hauptbahnhof vás navyše spájajú s mestami Mainz, Koblenz a Kolín. Ponorte sa do kultúrneho a gastronomického života regiónu alebo si jednoducho oddýchnite a užívajte si pokoj riečnej krajiny. Srdečne vítame vo vašom novom domove, kde sa moderný život harmonicky spája s prírodnou krásou okolia!
- Podlahové okná s trojsklovým izolačným zasklením.
- Elektrické žalúzie.
- Moderná a luxusná vstavaná kuchyňa s elektrickými spotrebičmi.
- Parketová podlaha.
- Vlastná pivnica.
- Podzemná garáž.
- Optické vláknové pripojenie.
- Video interkom.
- Loggia/balkón.
- Výťah.
- Úložný priestor na bicykle.
K bytu patrí podzemná garáž (90,00 € mesačne, okrem nájomného za neohriate priestory).
Záruka predstavuje 3 studené mesiace.
Nasledujúce dokumenty je potrebné predložiť:
- Samovyhlásenie.
- SCHUFA bonitná kontrola.
- Dôkaz o príjme (za 3 mesiace).
- Potvrdenie o platbách nájmu.
- Doklad totožnosti.
Parametre nehnuteľnosti
| Vek | Nad 50 rokov |
|---|---|
| Stav | Veľmi dobrý |
| Poschodie | 1. poschodie |
| PENB | B - Veľmi úsporné |
| Cena za jednotku | 16,20 € / m2 |
| Dostupné od | 10. 4. 2026 |
|---|---|
| Dispozícia | 3+1 |
| Číslo inzerátu | 1009883 |
| Úžitková plocha | 92 m² |
Čo táto nehnuteľnosť ponúka?
| Balkón | |
| Pivnica | |
| Výťah |
| Bezbariérový prístup | |
| Garáž | |
| MHD 2 minúty pešo |
V okolí nehnuteľnosti nájdete
Stále hľadáte to pravé?
Nastavte si strážneho psa. Ponuky vybrané na mieru dostanete súhrnne 1× denne e-mailom. S Premium profilom máte po ruke rovno 5 strážcov a keď sa niečo objaví, informujú vás obratom.
















