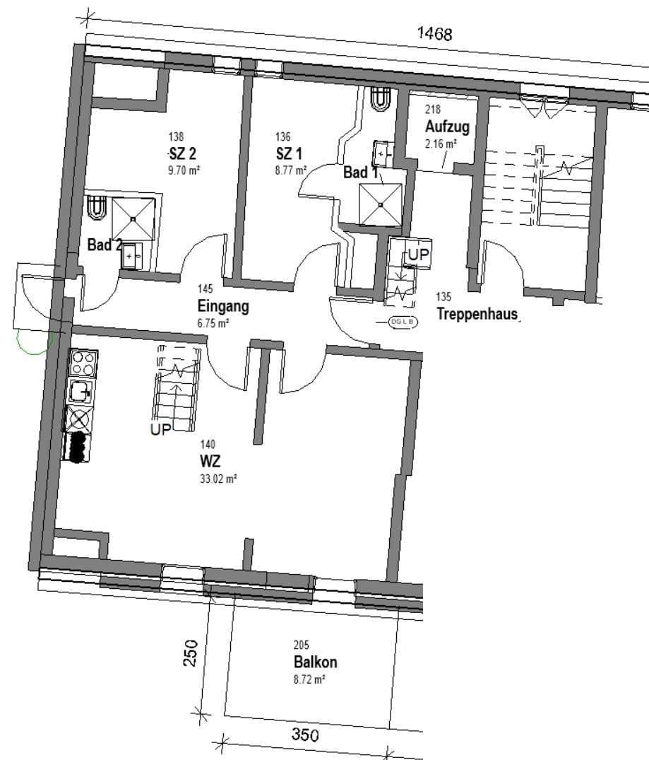
Prenájom bytu 4+1 • 108 m² bez realitkySchmidtstraße 8, , Hesensko
Schmidtstraße 8, , HesenskoMHD 2 minúty pešo • VýťahTento moderný 4-izbový byt v Rüdesheim am Rhein spája súčasný komfort bývania s energeticky efektívnou konštrukciou. Byt bol postavený v roku 2025 a je okamžite k dispozícii.
Osobitým lákadlom tohto bytu je vysoko lesklá biela vstavaná kuchyňa.
Voliteľne je k dispozícii vonkajšie parkovacie miesto za 60 EUR mesačne alebo garážové miesto za 80 EUR.
V prípade záujmu nás, prosím, kontaktujte cez chat.
Byt sa nachádza v príjemnej, pokojnej, no zároveň centrálnej lokalite. Obchody s dennými potrebami, supermarkety, pekárne a lekárne sú dostupné v priebehu niekoľkých minút.
Dopravné spojenie je tiež vynikajúce.
Lokalita spája pokoj a komfort s vynikajúcou každodennou infraštruktúrou.
- Vysoko lesklá biela vstavaná kuchyňa so moderným vybavením
- Vinylová podlaha
- Umývačka riadu
- Práčkosušička
- Ventilačný systém
- KfW
Dopyty od maklérov nie sú vítané.
Parametre nehnuteľnosti
| Vek | Nad 50 rokov |
|---|---|
| Stav | Novostavba |
| Poschodie | 3. poschodie z 2 |
| Úžitková plocha | 108 m² |
| Dostupné od | 28. 3. 2026 |
|---|---|
| Dispozícia | 4+1 |
| Číslo inzerátu | 1006002 |
| Cena za jednotku | 13 € / m2 |
Čo táto nehnuteľnosť ponúka?
| Balkón | |
| MHD 2 minúty pešo |
| Výťah |
V okolí nehnuteľnosti nájdete
Stále hľadáte to pravé?
Nastavte si strážneho psa. Ponuky vybrané na mieru dostanete súhrnne 1× denne e-mailom. S Premium profilom máte po ruke rovno 5 strážcov a keď sa niečo objaví, informujú vás obratom.











