
Prenájom bytu 3+1 • 97 m² bez realitkyKübelmarkt 28, , Bádensko-Wurttembersko
Kübelmarkt 28, , Bádensko-WurttemberskoMHD 1 minúta pešo3-izbový byt sa nachádza v 1. nadzemnom podlaží obytného a obchodného domu (ročník 1959) v centrálnej mestskej lokalite na okraji pešo prístupnej zóny v Bruchsale.
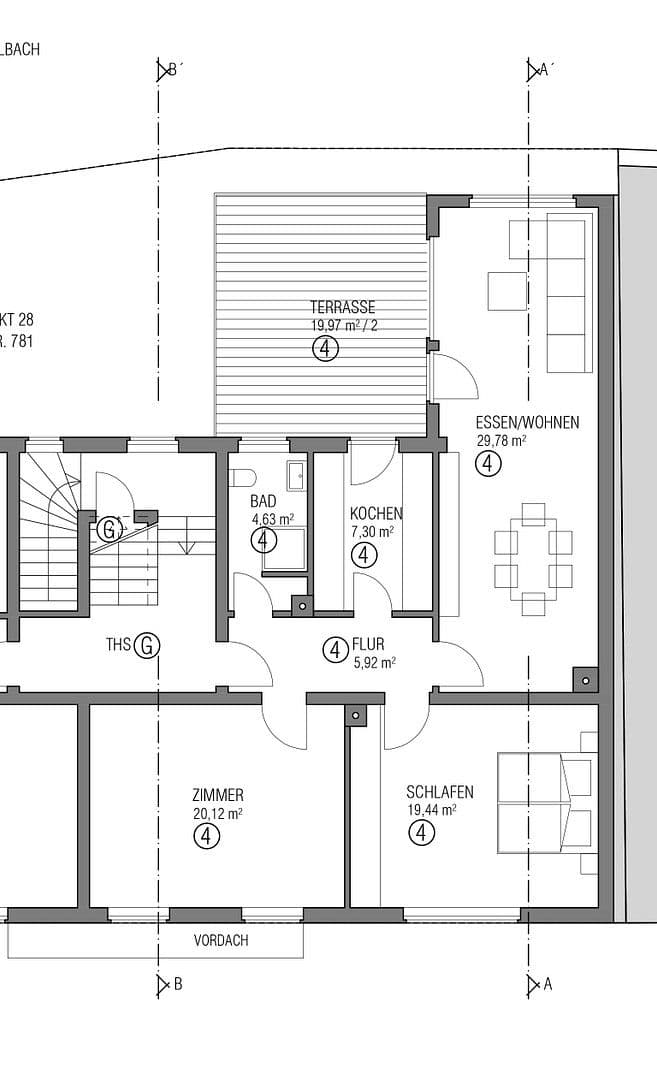
S približne 97 m² obytnou plochou (terasa 20 m², z toho pomerne započítaných 10 m²) obsahuje bytová jednotka priestranný obývací a jedálenský priestor, spálňu, ďalší izbu, kuchyňu so zabudovanou linkou a kúpeľňu s prirodzeným denným svetlom.
Strešná terasa s výhľadom na Saalbach je prístupná z kuchyne a obývacej izby.
Byt je k dispozícii od 01.05.2026.
Žiadne chov domáce zvieratá.
Nehnuteľnosť sa nachádza v centrálnej mestskej časti Bruchsalu pri Kübelmarkte, v dopravne upokojenej oblasti. Kaiserstraße, pešo prístupná zóna Bruchsalu, je vzdialená približne 2 minúty chôdze. V bezprostrednom okolí nehnuteľnosti je niekoľko obchodných možností, gastronomických podnikov a maloobchodníkov. Hlavná stanica je vzdialená približne 700 m. Dopravná dostupnosť je optimálna.
- Plynové ústredné kúrenie s centrálnym ohrevom vody
- Laminátové podlahy v izbách
- Kúpeľňa s dostatočným denným svetlom, so sprchou, umývadlom, toaletou a prípojkou pre práčku
- Zabudovaná kuchynská linka s drezom, umývačkou riadu, rúrou, keramickou doskou a digestorom
- Sklep
Žiadne chov domáce zvieratá.
Parametre nehnuteľnosti
| Vek | Nad 50 rokov |
|---|---|
| Stav | Dobrý |
| Poschodie | 1. poschodie z 3 |
| PENB | F - veľmi nehospodárne |
| Cena za jednotku | 9,79 € / m2 |
| Dostupné od | 1. 5. 2026 |
|---|---|
| Dispozícia | 3+1 |
| Číslo inzerátu | 1009543 |
| Úžitková plocha | 97 m² |
Čo táto nehnuteľnosť ponúka?
| Pivnica |
| MHD 1 minúta pešo |
V okolí nehnuteľnosti nájdete
Stále hľadáte to pravé?
Nastavte si strážneho psa. Ponuky vybrané na mieru dostanete súhrnne 1× denne e-mailom. S Premium profilom máte po ruke rovno 5 strážcov a keď sa niečo objaví, informujú vás obratom.












