
Prenájom bytu 3+1 • 72 m² bez realitkyLoppengasse 21 A, , Bádensko-Wurttembersko
Loppengasse 21 A, , Bádensko-WurttemberskoMHD 3 minúty pešo • ParkovaniePrvé byty po rekonštrukcii od 01.06.26: V pokojnej lokalite pri centre Nusslochu sú na prenájom dva veľmi pekné, kompletne zrekonštruované byty s obytnou plochou 72 a 32 m², bez provízií. Váš nový domov má pekný, tichý balkón a bude vybavený kvalitnými, pre zdravé bývanie určenými materiálmi. Výbava je vysoko kvalitná – porcelánové obklady, okná z masívneho dreva (čiastočne nové) a parketa.
Pozor: Fotografie pochádzajú z už dokončených bytov v prednej časti objektu. Obidva byty, ktoré sú tu ponúkané, sú momentálne v rekonštrukcii.
Nájomcami môžu byť výlučne osoby s pevne zabezpečeným zamestnaním na plný úväzok alebo s ručením zaisťujúcim nájom. Kaucia predstavuje 3-násobok základného nájmu.
Zmluvy na elektrinu a internet si nájomcovia uzatvárajú sami, keďže tieto náklady nie sú zahrnuté v zálohe na prevádzkové náklady.
Prehľad dostupných bytov a základného nájmu (k príplatku: záloha na prevádzkové náklady + elektrina + internet):
Byty v zadnej budove, ešte nedokončené po rekonštrukcii, dostupné od 15.05. alebo 01.06.2026
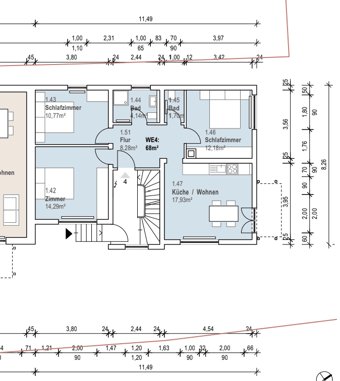
- Byt 8 v prízemí s približne 72 m² a balkónom, základný nájom 1030 EUR plus prevádzkové náklady, elektrina a internet. Predpokladaný termín dostupnosti je 01.06.26. Voliteľne s parkovacím miestom pre auto za 70 EUR mesačne.
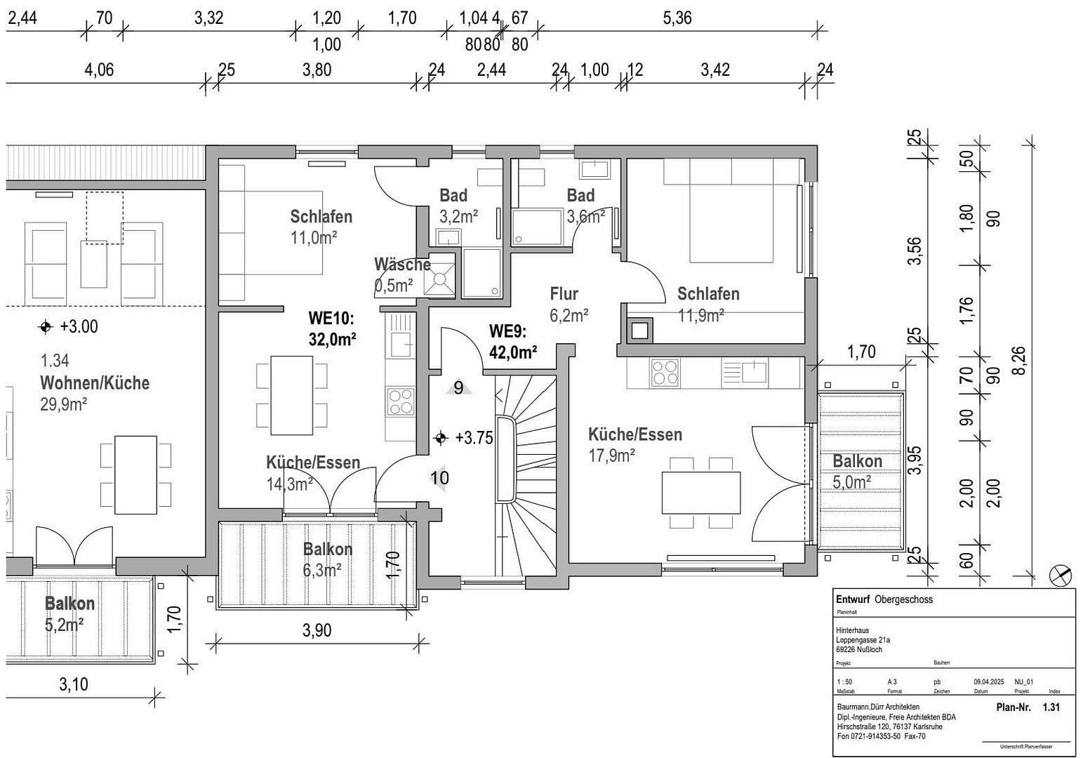
- Byt 10 v 1. poschodí s približne 32 m² a balkónom, základný nájom 560 EUR plus prevádzkové náklady, elektrina a internet. Predpokladaný termín dostupnosti je 01.06.26. Voliteľne s parkovacím miestom pre auto za 70 EUR mesačne.
Budova sa nachádza v tesnej blízkosti centra Nusslochu. Obchody, úrady, lekári, verejná doprava a školy sú v bezprostrednom okolí.
Výbava je kvalitná – porcelánové obklady, okná z masívneho dreva (čiastočne nové) a parketa. Steny sú hladko omietnuté a biele natreté.
Parametre nehnuteľnosti
| Vek | Nad 50 rokov |
|---|---|
| Dispozícia | 3+1 |
| PENB | G - Mimoriadne nehospodárne |
| Cena za jednotku | 14 € / m2 |
| Stav | Po rekonštrukcii |
|---|---|
| Číslo inzerátu | 1006034 |
| Úžitková plocha | 72 m² |
Čo táto nehnuteľnosť ponúka?
| Balkón | |
| MHD 3 minúty pešo |
| Parkovanie |
V okolí nehnuteľnosti nájdete
Stále hľadáte to pravé?
Nastavte si strážneho psa. Ponuky vybrané na mieru dostanete súhrnne 1× denne e-mailom. S Premium profilom máte po ruke rovno 5 strážcov a keď sa niečo objaví, informujú vás obratom.














