
Predaj domu • 165 m² bez realitky, Severné Porýnie - Westfálsko
, Severné Porýnie - WestfálskoMHD 4 minúty pešo • Parkovanie • GarážTento kompletne zrekonštruovaný dom v pokojnej lokalite Lünen-Wethmar ponúka jedinečnú príležitosť: bývanie pre viac generácií pod jednou strechou – s jasne oddelenými časťami a zároveň spoločným životom.
Dom disponuje približne 165 m² obytného priestoru na pozemku o rozlohe 488 m² a je rozdelený do troch samostatných obytných jednotiek. Preto je ideálny pre:
• Rodiny s deťmi
• Spoločné bývanie s rodičmi alebo starými rodičmi
• Kombináciu vlastného bývania a prenájmu
Každá jednotka je moderne zrekonštruovaná a okamžite obývateľná. Byty sú svetlé, priateľské a funkčne usporiadané.
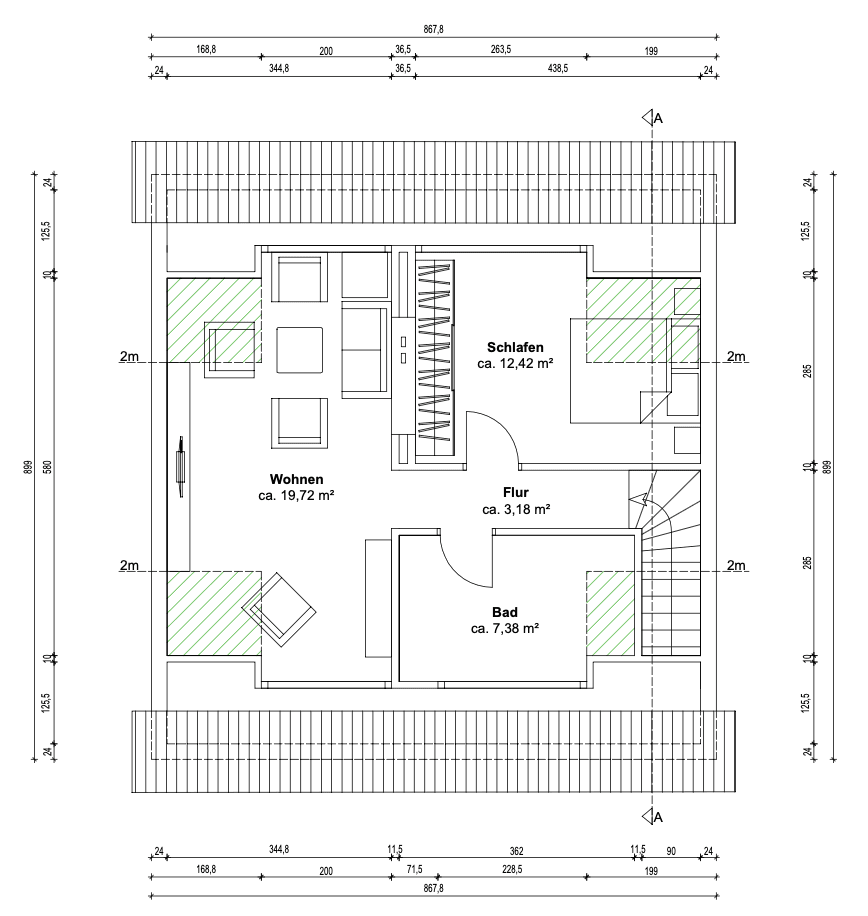
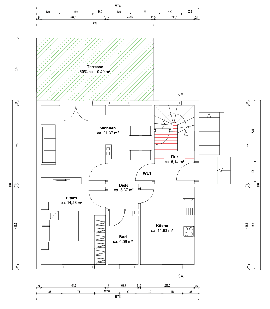
Osobitným lákadlom je, že každá obytná jednotka má vlastnú záhradnú časť, čo umožňuje vytvoriť si útočiská aj spoločné rodinné chvíle. Prízemný byt navyše ponúka priestrannú terasu.
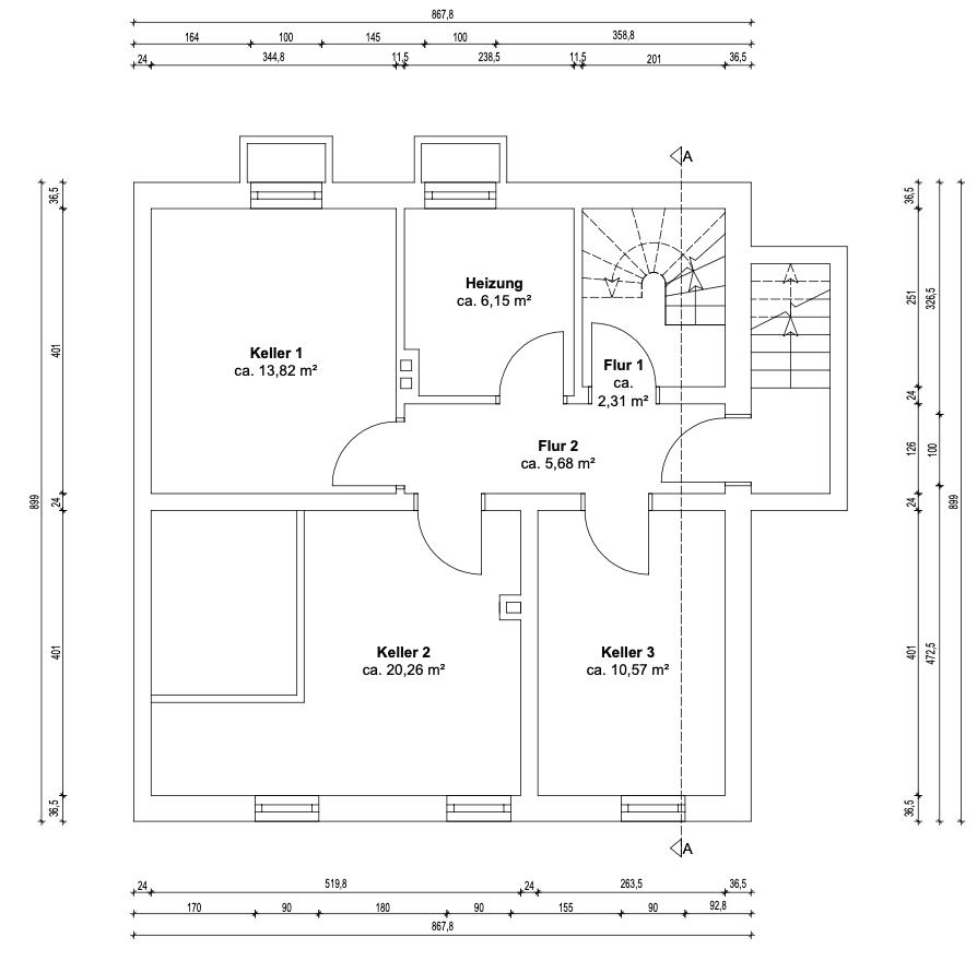
Dom je plne podzemný a poskytuje veľa úložného priestoru pre celú rodinu.
Nasťahujte sa, cíťte sa dobre, žite spoločne – bez potreby ďalších rekonštrukčných prác.
Dom sa nachádza v Lünen-Wethmar, jednom z najobľúbenejších obytných lokalít mesta.
Tu rodiny bývajú pokojne a zároveň majú skvelé spojenie:
• Vyspelé, rodinám priateľské susedstvo
• Krátke cesty k školám, materským školám a ihriskám
• Možnosti nakupovania a lekári v blízkosti
• Dobré spojenie smerom na Dortmund
Okolie ponúka ideálne podmienky pre dlhodobý domov s vysokou kvalitou života.
Vybavenie
Dom bol dôkladne zmodernizovaný a ponúka vysoko kvalitné vybavenie, ktoré uľahčuje a spríjemňuje každodenný život.
Exteriér a pozemok:
• 488 m² pozemok
• Záhradné časti pre každú obytnú jednotku
• Veľká terasa v prízemí
• Dvojgaráž
• 2 parkovacie miesta pred domom
Budova a technika:
• Vysokokvalitná sedlová strecha s veľkými strešnými oknami (pár rokov stará)
• Odolné medené dažďovody
• Nové vstupné dvere
• Nové dvere do suterénu
• Moderné nízkokalorické olejové kúrenie (približne 7 rokov staré)
• Trojfázová elektroinštalácia
• Medené vedenia
Okná:
• Prízemie: okná vo výbornom stave
• Poschodie: nové okná + nové skrine pre rolety
• Poschodie pod strechou: nové okná + nové skrine pre rolety
Interiérové vybavenie:
• Vysokokvalitné dizajnové podlahy
• Biele, hladké steny
• Moderné, svetlé kúpeľne
Dom je v stave, ktorý umožňuje okamžité nastěhovanie bez ďalších prác.
Dom sa nachádza v Lünen-Wethmar, jednom z najobľúbenejších obytných lokalít mesta.
Tu rodiny bývajú pokojne a zároveň majú skvelé spojenie:
• Vyspelé, rodinám priateľské susedstvo
• Krátke cesty k školám, materským školám a ihriskám
• Možnosti nakupovania a lekári v blízkosti
• Dobré spojenie smerom na Dortmund
Okolie ponúka ideálne podmienky pre dlhodobý domov s vysokou kvalitou života.
Parametre nehnuteľnosti
| Vek | Nad 50 rokov |
|---|---|
| Číslo inzerátu | 1008734 |
| Úžitková plocha | 165 m² |
| Celkové poschodia | 2 |
| Stav | Po rekonštrukcii |
|---|---|
| PENB | D - Menej hospodárne |
| Plocha pozemku | 488 m² |
| Cena za jednotku | 2 721 € / m2 |
Čo táto nehnuteľnosť ponúka?
| Pivnica | |
| Parkovanie | |
| Terasa |
| Garáž | |
| MHD 4 minúty pešo |
V okolí nehnuteľnosti nájdete



Predaj domuTOPLAGE in Bergkamen, Waldsiedlung, , Severné Porýnie - Westfálsko- 5+1
- 131 m²
- 346 m²
429 000 €
Stále hľadáte to pravé?
Nastavte si strážneho psa. Ponuky vybrané na mieru dostanete súhrnne 1× denne e-mailom. S Premium profilom máte po ruke rovno 5 strážcov a keď sa niečo objaví, informujú vás obratom.








