Prenájom domu 6+1 • 180 m² bez realitkyPoppenreuther straße Fürth Fürth Bayern 90765
Poppenreuther straße Fürth Fürth Bayern 90765MHD 2 minúty pešo • ParkovanieTáto mimoriadne udržiavaná dvojdomovka z roku 2021 spája moderný dizajn, vysokokvalitné vybavenie a centrálnu, zároveň rodinne priateľskú polohu vo Fürthu.
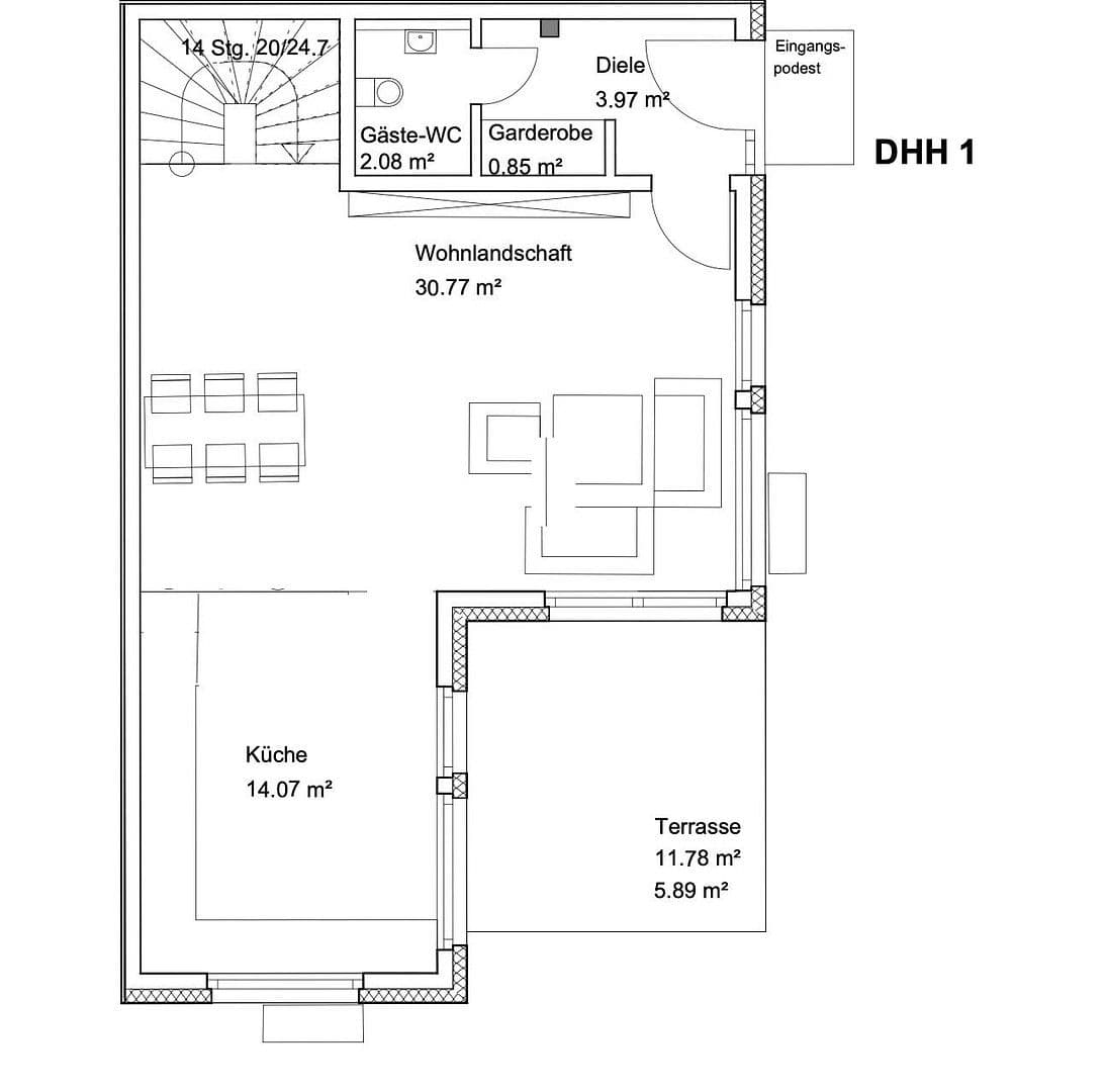
Už pri vstupe do domu vzniká pocit veľkorysosti a jasnosti. Obývacia a jedálenská časť sú svetlé a predstavujú srdce domu. Veľké okná vytvárajú príjemnú atmosféru a harmonicky spájajú vnútorný priestor so slnečnou terasou a starostlivo upravenou záhradou. V prízemí sa navyše nachádza hosťovské WC a sprcha.
Moderná vstavaná kuchyňa sa štýlovo začleňuje do obytného konceptu a presvedčuje svojou vysokokvalitnou realizáciou – miesto, ktoré je funkčné aj esteticky na najvyššej úrovni.
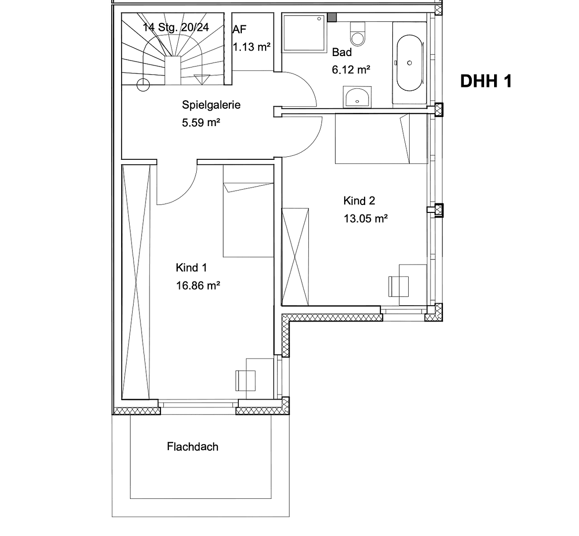
Rozloženie izieb je ideálne prispôsobené potrebám rodiny. V nadzemnom podlaží sa nachádzajú dve svetlé a dobre usporiadané detské izby a moderná kúpeľňa.
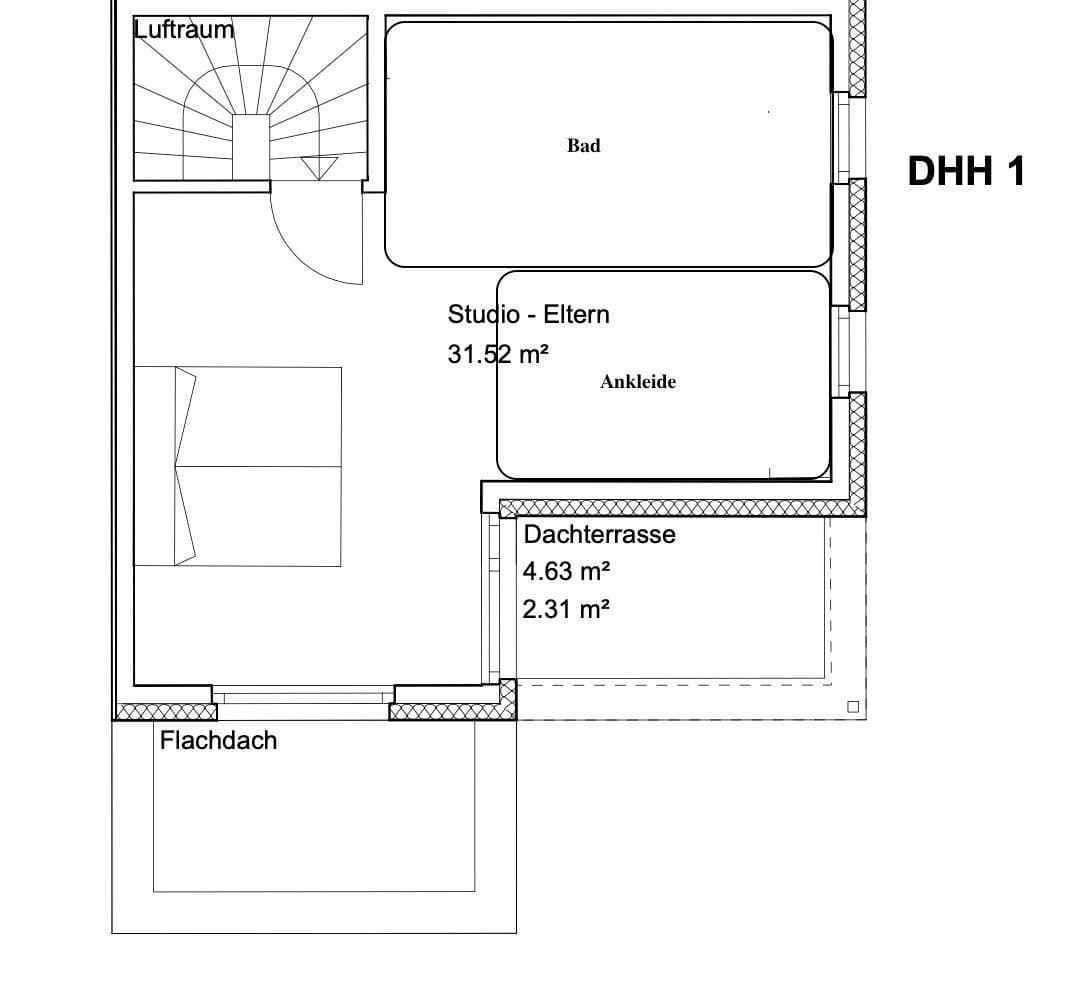
Poschodie je zariadené ako súkromný útočisko pre rodičov a ponúka okrem spálne aj samostatnú šatňu a prístup na balkón s pekným výhľadom do zelene. Na tomto poschodí sa nachádza integrovaná kúpeľňa, takže sa nemusíte presúvať medzi podlažiami.
Jedinečnou vlastnosťou tejto nehnuteľnosti je vynikajúca vhodnosť pre modernú prácu z domu. Vďaka integrovanému LAN káblovaniu je možné optimálne spojiť home office s každodenným životom.
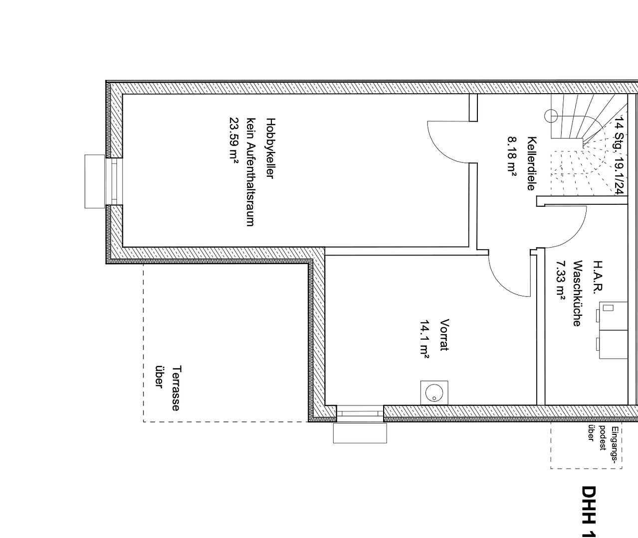
Úplne dokončený suterén výrazne rozširuje obytnú a využiteľnú plochu a ponúka rozmanité možnosti využitia – od hobby miestnosti až po fitness zónu. Všetky izby v suteréne sú vybavené podlahovým kúrením.
Poloha tejto nehnuteľnosti spája mestský život s vysokou kvalitou bývania.
Obchodné možnosti, supermarkety aj autobusová zastávka sú pohodlne pešo dostupné. Mimoriadne atraktívna je blízkosť vzdelávacích zariadení: materská škola, detský kútik aj základná škola sú vzdialené len približne 300 metrov.
Napriek centrálnej polohe presvedčuje okolie svojou pokojnosťou a rodinne priateľskosťou.
Vybavenie tejto nehnuteľnosti zodpovedá modernému a vysoko kvalitnému štandardu bývania:
- Podlahové kúrenie vo všetkých izbách, vrátane suterénu
- Energeticky úsporné tepelné čerpadlo
- Smart Home systém pre pohodlné ovládanie (LCN Bus System)
- Elektrické rolety
- LAN káblovanie pre home office
- Zmäkčovač vody (BWT)
- Vysokokvalitné sprchové WC
- Tri štýlovo zariadené kúpeľne
- Priestranná obývacia a jedálenská časť s množstvom denného svetla
- Moderná vstavaná kuchyňa (75 € mesačne)
- Čiastočne zariadená (skriňa, TV stena, kuchyňa, príslušenstvo kúpeľne atď.)
- Úplne podzemný
- Vonkajší priestor (vysokokvalitná markíza s LED osvetlením a ohrievačom, súkromie zabezpečujúce posuvné sklenené dvere, pekná záhrada s rolovacou trávou a dvojriečnym plotom pre súkromie)
Nehnuteľnosť ponúka príjemne zariadený vonkajší priestor, ktorý poskytuje miesto na oddych aj zvyšuje kvalitu života.
Zastrešená terasa pozýva na relaxačné chvíle vonku, zatiaľ čo záhrada poskytuje dostatok priestoru pre deti alebo voľnočasové aktivity. Balkón na poschodí ponúka príjemný výhľad do zelene a dopĺňa celkový dojem.
Parkovacie miesto priamo pri dome zvyšuje komfort každodenného života.
Nehnuteľnosť sa preferenčne prenajíma nefajčiarom. Domáce zvieratá nie sú povolené.
Doloženie príjmu je podmienkou pre dohodnutie prehliadky.
Parametre nehnuteľnosti
| Vek | Nad 50 rokov |
|---|---|
| Stav | Veľmi dobrý |
| Číslo inzerátu | 1008477 |
| Plocha pozemku | 180 m² |
| Cena za jednotku | 13,33 € / m2 |
| Dostupné od | 1. 8. 2026 |
|---|---|
| Dispozícia | 6+1 |
| Úžitková plocha | 180 m² |
| Celkové poschodia | 3 |
Čo táto nehnuteľnosť ponúka?
| Balkón | |
| Parkovanie | |
| Terasa |
| Pivnica | |
| MHD 2 minúty pešo |
V okolí nehnuteľnosti nájdete
Stále hľadáte to pravé?
Nastavte si strážneho psa. Ponuky vybrané na mieru dostanete súhrnne 1× denne e-mailom. S Premium profilom máte po ruke rovno 5 strážcov a keď sa niečo objaví, informujú vás obratom.


















