
Predaj bytu 2+1 • 56 m² bez realitkyWilhelm-Leuschner-Str. 40 Darmstadt Darmstadt Hessen 64293
Wilhelm-Leuschner-Str. 40 Darmstadt Darmstadt Hessen 64293MHD 3 minúty pešo+ Rôzne byty s rozlohou od 43 m² do 151 m²
+ Na pôde je okamžite voľný 2-izbový byt – práve je čerstvo renovovaný
+ Iné byty môžu byť uvoľnené približne o 9 mesiacov
+ Byty je možné spojiť
+ Garáže je možné dokúpiť na pozemku
+ Dom má štýlovú fasádu
+ 7-rodinný dom
+ Dom nemá výťah, čo pozitívne znižuje vedľajšie náklady
+ Obľúbená lokalita v Johannesviertel v Darmstadte
+ Veľmi dobré spojenia zo všetkých strán
+ Krb v 4,5-izbovom byte na pôde + s prerobeným podkroviom!!!
+ Čiastočne parkety alebo doskové podlahy
+ Čiastočne slnečná terasa
+ Na pôde sú obe byty zrekonštruované
+ Čiastočne s vaňou
+ Garáže je možné dokúpiť na pozemku
Parametre nehnuteľnosti
| Vek | Nad 50 rokov |
|---|---|
| Poschodie | 1. poschodie z 3 |
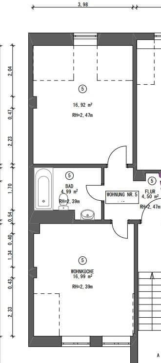
| Úžitková plocha | 56 m² |
| Dispozícia | 2+1 |
|---|---|
| Číslo inzerátu | 1008177 |
| Cena za jednotku | 3 188 € / m2 |
Čo táto nehnuteľnosť ponúka?
| Pivnica |
| MHD 3 minúty pešo |
V okolí nehnuteľnosti nájdete
Stále hľadáte to pravé?
Nastavte si strážneho psa. Ponuky vybrané na mieru dostanete súhrnne 1× denne e-mailom. S Premium profilom máte po ruke rovno 5 strážcov a keď sa niečo objaví, informujú vás obratom.





















