
Prenájom bytu 2+1 • 34 m² bez realitkyHenckellweg 2, , Dolné Sasko
Henckellweg 2, , Dolné SaskoMHD 2 minúty pešoS radosťou vám ponúkame tento vysoko kvalitne zrekonštruovaný 2-izbový bytosť v najlepšej lokalite Hannoveru na prenájom (prvé bývanie). Byt sa nachádza v mimoriadne centrálnom a dobre dostupnom obytnom prostredí a vyniká svojou pokojným, no zároveň centrálnou polohou. Máte tu možnosť nasťahovať sa do bytu, ktorý bol zrekonštruovaný v najvyššej kvalite (nová elektroinštalácia, nové vodovodné a kúrenárske potrubia, omietky na stenách (bez tapiet), nová podlaha, nové dlaždice, nové kúpeľňa) a je po rekonštrukcii k dispozícii ako prvé bývanie.
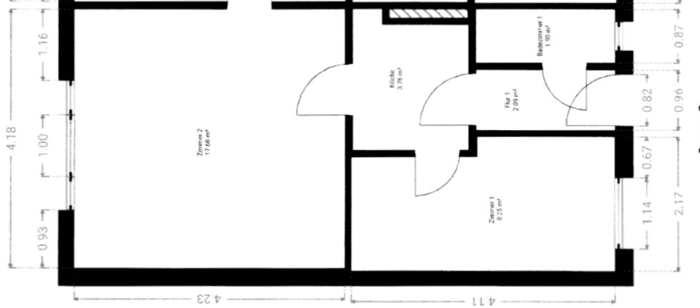
Pôdorys bytu je optimálne navrhnutý a ponúka napriek pomerne malej rozlohe 34 štvorcových metrov priestranný obývací priestor, ako aj ďalšu prakticky usporiadanú spálňu, úplne novú a moderne vybavenú kuchyňu a kompletne zrekonštruovanú kúpeľňu. Byt ohromí svojím vysoko kvalitným vybavením a je ideálny pre páry alebo jednotlivcov, ktorí kladú dôraz na kvalitu a komfort.
Kuchyňa je už objednaná a pred sťahovaním bude namontovaná. Fotografie finálnej podoby kúpeľne budú zverejnené v priebehu nasledujúcich dní.
Byt sa nachádza v obľúbenom mestskom obvode Ricklingen, jednom z najžiadanejších obytných lokalít Hannoveru. Ricklingen zaujme svojou centrálnou polohou a vynikajúcim napojením na mestskú hromadnú dopravu: Metrólinky 3, 7 a 17 ako aj niekoľko autobusových spojov sú vzdialené len 3 minúty pešo, takže centrum dosiahnete za menej než 10 minút (8 minút autom, 13 minút bicyklom). Rovnako je rýchle aj spojenie s cestnou znakou B65 a diaľnicami A2 a A7, čo je ideálne pre dochádzajúcich do práce.
Okolie ponúka perfektnú infraštruktúru pre každodenné potreby: supermarkety, pekárne, lekárne a reštaurácie sa nachádzajú v pešej vzdialenosti. Pre oddych a rekreáciu je tiež postarané: Ricklinger Kiesteiche a Maschsee sú v bezprostrednej blízkosti a pozývajú na prechádzky, beh alebo oddych pri vode.
Ricklingen je živá a zároveň pokojná mestská štvrť, ktorá očarí svojou kombináciou mestského života a zelených útočísk. Rodiny, jednotlivci i pracujúci obyvateľia si cenia vysokú kvalitu života a priateľské susedstvo. Obytná lokalita v samotnom Henckellvegu je príjemne pokojná a vystužená dobre udržiavanými viacrodinnými domami a množstvom zelene v okolí.
Montáž vstavaných kuchýň sa uskutoční v februári.
Tiež bude v priebehu nasledujúcich dvoch týždňov inštalovaná nová plynová kondenzačná rúra, ktorá je efektívnejšia a znižuje náklady na kúrenie a ohrev vody.
Byt nemá balkón.
Parametre nehnuteľnosti
| Vek | Nad 50 rokov |
|---|---|
| Dispozícia | 2+1 |
| Číslo inzerátu | 1008176 |
| Cena za jednotku | 17 € / m2 |
| Stav | Po rekonštrukcii |
|---|---|
| Poschodie | 1. poschodie z 4 |
| Úžitková plocha | 34 m² |
Čo táto nehnuteľnosť ponúka?
| Pivnica |
| MHD 2 minúty pešo |
V okolí nehnuteľnosti nájdete
Stále hľadáte to pravé?
Nastavte si strážneho psa. Ponuky vybrané na mieru dostanete súhrnne 1× denne e-mailom. S Premium profilom máte po ruke rovno 5 strážcov a keď sa niečo objaví, informujú vás obratom.















