
Prenájom bytu 3+1 • 85 m² bez realitkyElbgaustr 79B Hamburg Eidelstedt Hamburg 22523
Elbgaustr 79B Hamburg Eidelstedt Hamburg 22523MHD 4 minúty pešo • ParkovanieTáto zariadená bytová jednotka sa nachádza v udržiavanej dvojdomovej polovici v pokojnej zadnej polohe (druhá rada) v Hamburg-Eidelstedt. Vďaka oddelenej polohe ponúka nehnuteľnosť vysokú mieru pokoja a súkromia, napriek výbornej dostupnosti.
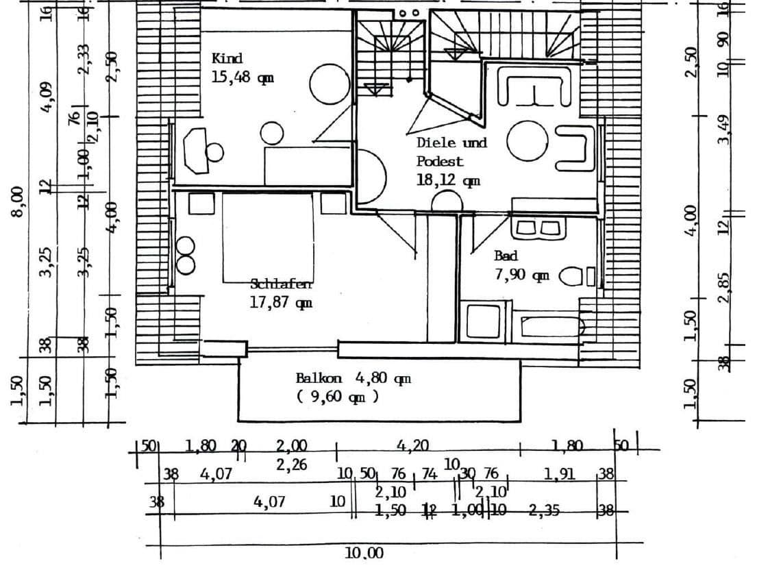
Byt sa rozprestiera na 1. poschodí a podkroví a disponuje dobre premysleným pôdorysom. Najväčšou prednosťou je priestranný balkón s približne 5 m², ktorý vyzýva k oddychu na čerstvom vzduchu.
V podkroví sa nachádza veľká spálňa s manželskou posteľou.
Na 1. poschodí sa nachádza spálňa s dvoma jednolôžkovými posteľami, ako aj obývacia izba s ďalšou možnosťou na spanie.
Tým pádom je byt ideálny pre rodiny, páry alebo aj pre bývanie z pracovných dôvodov v podobe spolubývania. Vlastné parkovacie miesto priamo pri dome je taktiež k dispozícii.
Prevádzkové náklady predstavujú približne 150€.
Základný nájom činí 2.150€.
Nehnuteľnosť sa nachádza v obľúbenej štvrti Hamburg-Eidelstedt s vynikajúcou infraštruktúrou. Stanica S-Bahn Elbgaustraße je pešo dostupná za približne 5 minút. Odtiaľ sa za menej ako 20 minút dostanete do centra Hamburgu aj na hlavné nádražie.
- Zariadený
- Tri spálne
- Priestranný balkón
- Dvojpodlažný (dobré oddelenie)
- Pokojná poloha v druhej rade
- Vlastné parkovacie miesto
- Prevádzkové náklady hradí prenajímateľ
- Veľmi vhodný pre rodiny, páry alebo pre dočasné bývanie
Parametre nehnuteľnosti
| Vek | Nad 50 rokov |
|---|---|
| Dispozícia | 3+1 |
| Číslo inzerátu | 1008134 |
| Cena za jednotku | 25 € / m2 |
| Dostupné od | 7. 3. 2026 |
|---|---|
| Poschodie | 1. poschodie z 2 |
| Úžitková plocha | 85 m² |
Čo táto nehnuteľnosť ponúka?
| Balkón | |
| MHD 4 minúty pešo |
| Parkovanie |
V okolí nehnuteľnosti nájdete
Stále hľadáte to pravé?
Nastavte si strážneho psa. Ponuky vybrané na mieru dostanete súhrnne 1× denne e-mailom. S Premium profilom máte po ruke rovno 5 strážcov a keď sa niečo objaví, informujú vás obratom.














