
Predaj domu 7+1 • 186 m² bez realitky, Bavorsko
Veľkorysý radový koncový dom s zarastenou záhradou, terasou a dvoma balkónmi v centrálnej lokalite vo Vilshofene, ideálny domov pre rodiny s deťmi.
Rok výstavby: 1988
Typ budovy: radový koncový dom
Obývateľná plocha: cca 186 m²
Pozemok: cca 310 m²
Konštrukcia: tehly (masív)
Medzistropy: masívne
Krytina: tehly
Okná: masívne drevené, dvojsklo, vždy s roletami
Vnútorné dvere: drevené
Vchodové dvere: drevené
Podlahové krytiny: dlaždice, parkety, laminát na pôdoryse podkrovia
Schodisko: masívne, obložené dlažbou, zábradlie zo dňa
Vykurovanie: olej a kachľový sporák
K DISPOZÍCIÍ OD: okamžite
Mesto Vilshofen ponúka všetko potrebné pre každodenný život, nevyhnutné nákupy a možnosti voľnočasových aktivít, ktoré je možné vykonávať aj veľmi dobre pešo. Vzdialenosť do mestského námestia je cca 10 – 15 minút chôdze. Je tu tiež dobré vlakové spojenie do Mníchova, Passau a Regensburgu. Spomenúť možno aj výborné napojenie na diaľnicu A3.
VZDIALENOSTI:
Nemocnica: 0,13 km (2 minúty chôdze)
Gymnázium: 0,45 km (6 minút chôdze)
Medzimestská stanica / autobus: 0,6 km (8 minút chôdze)
Pekáreň / mäsiar: 0,75 km
Materská škola: 1,1 km
Základná škola: 1,7 km
Reálna škola: 2,5 km
Nákupné možnosti: 0,85 km
Mestské centrum: 1,3 km
Diaľnica: 11 km
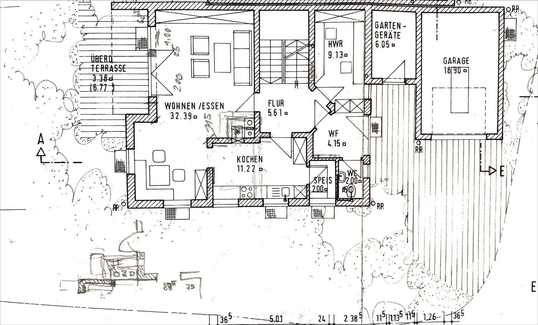
PRÍZEMIE: Predizba vrátane vstavaného masívneho dreveného šatníka, hala, kuchyňa vrátane spiže, jedáleň, obývacia izba s kachľovým sporákom, pracovňa, hosťovská toaleta, východ na veľkú terasu.
PRÉRUSNÉ POSCHODIE: Hala, 3 spálne, kúpeľňa s dvoma umývadlami, vaňa, sprcha, toaleta a prípojkou pre práčku, dva balkóny.
PODKROVIE: Zateľované – úložný priestor a dve spálne.
SUTERÉN: Dom a garáž sú úplne suterénované. Miestnosti: vykurovacia miestnosť, miestnosť s olejovou nádržou, práčovňa, 3 ďalšie suterénne miestnosti. Jedna z týchto miestností sa nachádza priamo pod garážou a je prístupná cez podlahovú mriežku v garáži.
Garáž: Jednoduchá garáž s príjazdom a prístupom do suterénu cez podlahovú mriežku, napríklad pre opravy áut. Garáž je vybavená elektrickými garážovými dverami a je postavená vyššie ako štandard.
ZÁHRADA / TECHNICKÁ MIESTNOSŤ / MIETnosť PRE BICYKLE: Je integrovaná medzi domom a garážou, v masívnej stavbe.
Vo všetkých obytných miestnostiach sú namontované detektory dymu.
POZEMOK: Nehnuteľnosť je už pripojená na všetky prípojky pre zásobovanie aj odvod odpadu. Pozemok má zarastenú záhradu.
Nehnuteľnosť bola využívaná ako investičný objekt a nachádza sa vo veľmi dobre udržiavanom stave.
ENERGETICKÉ PARAMETRY
Hlavný energetický zdroj: vykurovací olej
Energetická trieda: D
Koncová energetická spotreba: 111,9 kWh/(m²a)
MAKLÉRSKA PROVÍZIA / PROVÍZIA PRE KÚPITEĽA: ŽIADNA
Parametre nehnuteľnosti
| Vek | Nad 50 rokov |
|---|---|
| Stav | Dobrý |
| Číslo inzerátu | 1006961 |
| Úžitková plocha | 186 m² |
| Celkové poschodia | 4 |
| Dostupné od | 31. 3. 2026 |
|---|---|
| Dispozícia | 7+1 |
| PENB | D - Menej hospodárne |
| Plocha pozemku | 310 m² |
| Cena za jednotku | 2 151 € / m2 |
Čo táto nehnuteľnosť ponúka?
| Balkón | |
| Garáž | |
| MHD 2 minúty pešo |
| Pivnica | |
| Parkovanie | |
| Terasa |
V okolí nehnuteľnosti nájdete
Stále hľadáte to pravé?
Nastavte si strážneho psa. Ponuky vybrané na mieru dostanete súhrnne 1× denne e-mailom. S Premium profilom máte po ruke rovno 5 strážcov a keď sa niečo objaví, informujú vás obratom.





























