Prenájom domu 5+1 • 104 m² bez realitkyWeilheim in Oberbayern Weilheim in Oberbayern Bayern 82362
Táto moderná a svetlom zaplavená polodvojdomovka s príťažlivo navrhnutým pôdorysom, umiestnená na slnečnom pozemku, sa nachádza v pokojnej a žiadanej rezidenčnej lokalite vo východnej časti Weilheimu.
Obývacia časť so svojou priestrannou výhľadovou stenou ponúka neobmedzený výhľad do slnečnej záhrady orientovanej na juh a s výhľadom na hory.
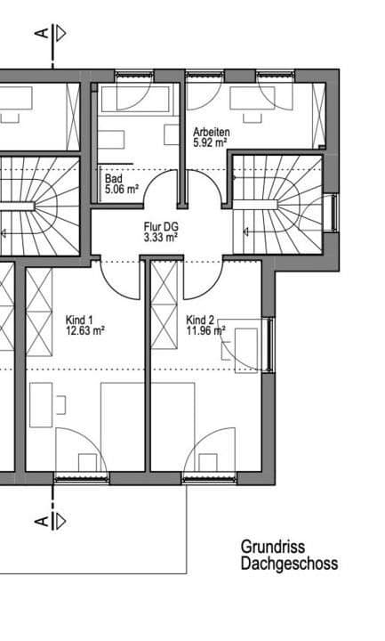
Na hornom poschodí sa nachádzajú tri izby a kúpeľňa s vaňou a sprchou.
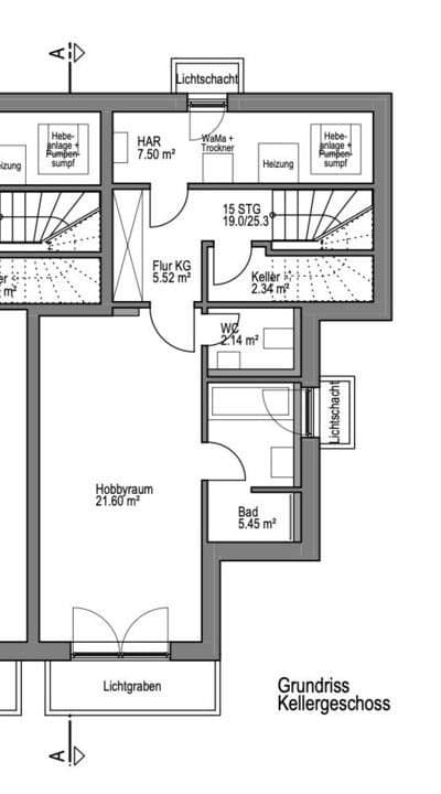
Suterén disponuje zrekonštruovanou hobby miestnosťou s veľkým oknom a veľkou kúpeľňou so sprchou a WC.
K nemu patria aj carport a parkovacie miesto.
Pokojná, žiadaná a centrálne situovaná rezidenčná lokalita v Weilheimu s rýchlym spojením do Mníchova, k Starnberger See a do horných bavorských hôr.
Celý novo postavený dom je vybavený vysokokvalitným a vkusným zariadením.
Parametre nehnuteľnosti
| Vek | Nad 50 rokov |
|---|---|
| Stav | Veľmi dobrý |
| Číslo inzerátu | 1006907 |
| Úžitková plocha | 104 m² |
| Celkové poschodia | 3 |
| Dostupné od | 1. 8. 2026 |
|---|---|
| Dispozícia | 5+1 |
| PENB | A - Mimoriadne úsporné |
| Plocha pozemku | 183 m² |
| Cena za jednotku | 22 € / m2 |
Čo táto nehnuteľnosť ponúka?
| Pivnica | |
| MHD 2 minúty pešo |
| Parkovanie | |
| Terasa |
V okolí nehnuteľnosti nájdete
Stále hľadáte to pravé?
Nastavte si strážneho psa. Ponuky vybrané na mieru dostanete súhrnne 1× denne e-mailom. S Premium profilom máte po ruke rovno 5 strážcov a keď sa niečo objaví, informujú vás obratom.






