
Prenájom bytu 2+1 • 61 m² bez realitkyBerlin Französisch Buchholz Berlin 13127
Berlin Französisch Buchholz Berlin 13127MHD 2 minúty pešo • VýťahVo nádhernej a pokojnej časti mesta Französisch Buchholz vás čaká tento nový developerský projekt v centrálnom bývaní. Momentálne sú k dispozícii ešte 4 byty na prvý nástup. Čaká vás 1-izbový byt, dva 2-izbové byty a jeden 3-izbový penthouse.
Nájomné vrátane tepla:
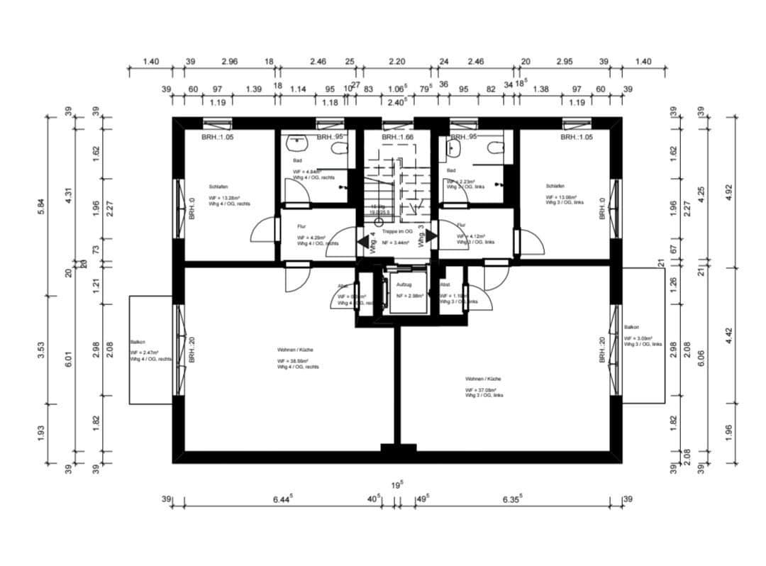
1-izbový byt v prízemí – cca 43 m² – 850,00 € mesačne
2-izbový byt v prízemí – cca 74 m² – 1495,00 € mesačne
2-izbový byt v 1. poschodí – cca 63 m² – 1270,00 € mesačne
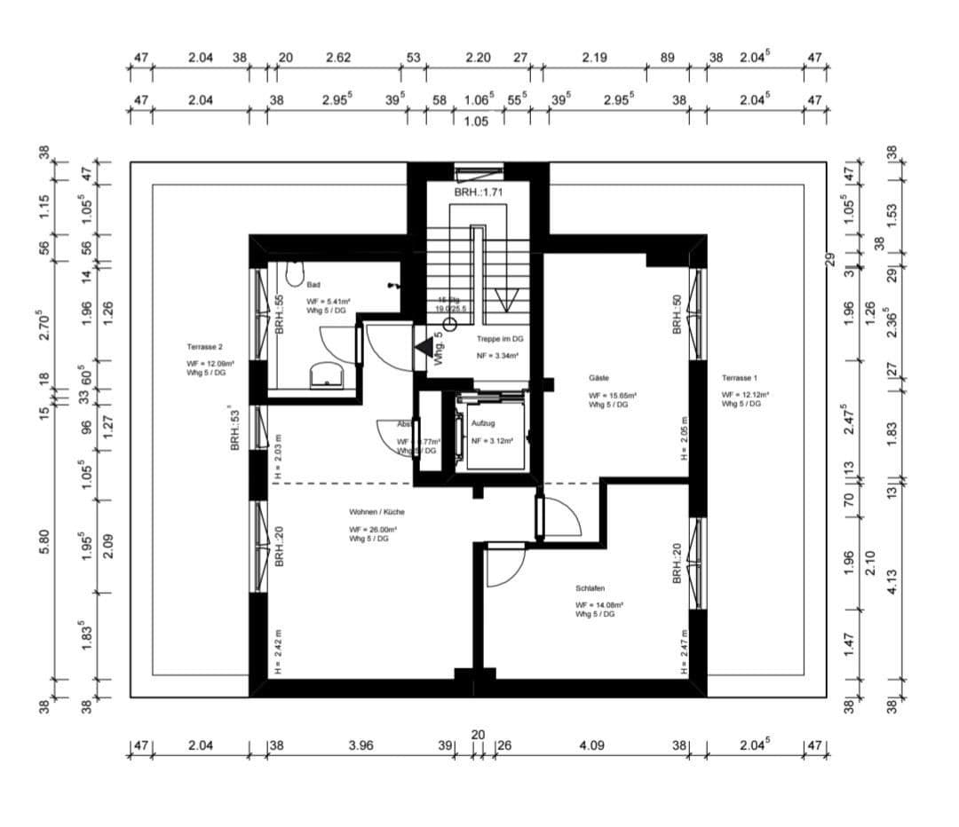
3-izbový byt v podkrovia – cca 86 m² – 1750,00 € mesačne
Je predpokladaná stupňovaná nájomná dohoda s dvoma miernymi úpravami, pričom po jednom roku sa nájomné zvýši o 1 € za meter štvorcový chladného nájomného.
Obytné plochy od cca 43 m² do 86 m² ponúkajú dostatok priestoru pre pohodlie. Zažite pôvabný pocit bývania v druhej rade, v pokoji, centrálnom umiestnení a v žiadanej časti Berlína. Ideálne spojenie do berlínskeho centra je zabezpečené vďaka blízkosti verejnej dopravy. Najbližšie zastávky električiek a autobusov sa nachádzajú približne 200 m od objektu. Stanica S-Bahn Blankenburg je vzdialená približne 900 m.
V bezprostrednej blízkosti nájdete množstvo obchodov pre každodenné potreby, diskontné obchody, čerpacie stanice a reštaurácie. Vyberte si medzi šarmom hlavného mesta a pokojom za berlínskymi mestskými hranicami – oboje dosiahnete za pár minút.
- Podlahové kúrenie vo všetkých obytných priestoroch a kúpeľniach
- Vybavené kuchyne vo všetkých bytoch
- Balkon / terasa / strešná terasa
- Elektricky ovládateľné žalúzie na všetkých oknách
- Trojnásobne zasklené okná
- Vinylová dizajnová podlaha v obytných priestoroch
- Videointerkom
- LAN pripojenie v každej miestnosti
- Sprchový kút bez prahu
- Dodatočný ohrievač uterákov v kúpeľniach
- Výtah k dispozícii
- Nezastavaný výhľad
Parametre nehnuteľnosti
| Vek | Nad 50 rokov |
|---|---|
| Stav | Novostavba |
| Poschodie | 1. poschodie z 2 |
| PENB | A - Mimoriadne úsporné |
| Cena za jednotku | 18 € / m2 |
| Dostupné od | 30. 3. 2026 |
|---|---|
| Dispozícia | 2+1 |
| Číslo inzerátu | 1006454 |
| Úžitková plocha | 61 m² |
Čo táto nehnuteľnosť ponúka?
| Bezbariérový prístup | |
| MHD 2 minúty pešo |
| Výťah | |
| Terasa |
V okolí nehnuteľnosti nájdete
Stále hľadáte to pravé?
Nastavte si strážneho psa. Ponuky vybrané na mieru dostanete súhrnne 1× denne e-mailom. S Premium profilom máte po ruke rovno 5 strážcov a keď sa niečo objaví, informujú vás obratom.
























