
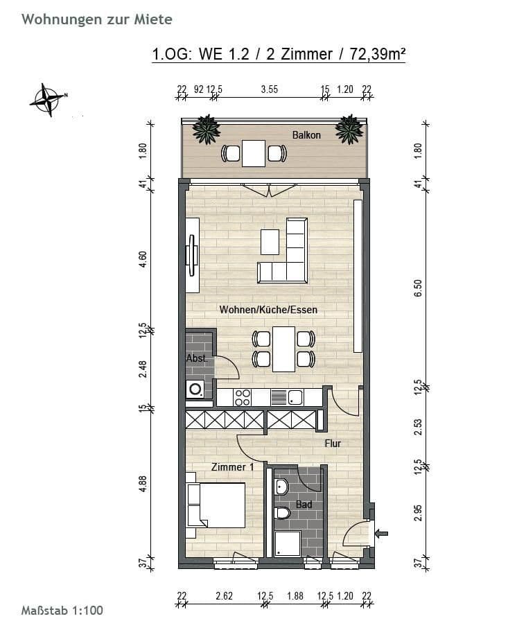
Prenájom bytu 2+1 • 73 m² bez realitkyFlakenstr. 24, , Brandenbursko
Flakenstr. 24, , BrandenburskoMHD 7minút pešo • ParkovanieErkner je malé mesto s približne 12 000 obyvateľmi pri Berlínske dverách a vďaka svojej blízkosti k Berlínu je veľmi obľúbené. Mesto je veľmi dobre spojené s Berlínom cez Berlínsky okruh (A10) a verejné dopravné siete (S3 a RE1).
Okolie Erknru je navyše obklopené jazerami (Dämeritzsee, Flakensee), riekami, lesmi a lúkami, ktoré prispievajú k príjemnej atmosfére. Dom sa nachádza priamo pri Flakenfließ, čo obyvateľom ponúka krásny výhľad na vodu.
V Erknri je všetko potrebné na dosiahnutie každodenných potrieb – školy, materské školy, lekári, lekárne a množstvo ďalších zariadení.
Postupné zvyšovanie nájmu od 2. roka o 2 %.
Je možné prenajať aj parkovacie miesto.
Energetický preukaz bude k dispozícii pri obhliadke.
Obhliadky prebiehajú výhradne podľa dohodnutého termínu.
Parametre nehnuteľnosti
| Vek | Nad 50 rokov |
|---|---|
| Stav | Veľmi dobrý |
| Poschodie | 1. poschodie z 2 |
| PENB | A - Mimoriadne úsporné |
| Cena za jednotku | 15 € / m2 |
| Dostupné od | 30. 3. 2026 |
|---|---|
| Dispozícia | 2+1 |
| Číslo inzerátu | 1006446 |
| Úžitková plocha | 73 m² |
Čo táto nehnuteľnosť ponúka?
| Balkón | |
| MHD 7 minút pešo |
| Parkovanie |
V okolí nehnuteľnosti nájdete
Stále hľadáte to pravé?
Nastavte si strážneho psa. Ponuky vybrané na mieru dostanete súhrnne 1× denne e-mailom. S Premium profilom máte po ruke rovno 5 strážcov a keď sa niečo objaví, informujú vás obratom.

















