Prenájom bytu 3+1 • 68 m² bez realitkyFriedensstr. 18c, , Brandenbursko
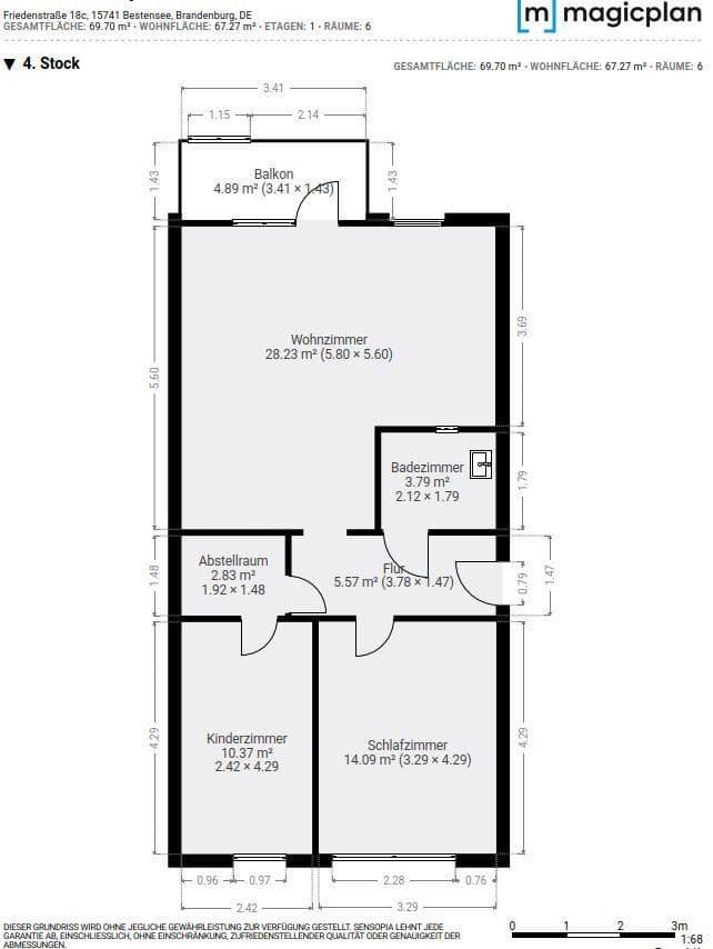
Friedensstr. 18c, , BrandenburskoMHD 4 minúty pešo • ParkovanieNa približne 67 m² ponúka byt osvetlené a prežiarené miestnosti.
Byt pozostáva z troch krásnych izieb, kúpeľne a samostatnej (veľkej) kuchyne s chodbou.
WC je vybavené sprchou.
Ďalšie výhody
Bezpečné parkovanie vďaka vlastnému parkovaciemu miestu:
Flexibilita pre vodičov, bez stresu pri hľadaní parkovacieho miesta.
Ďalšia parkovacia plocha vďaka priestrannému suterénu:
Dostatok miesta pre všetko, čo máte radi, bez preplnenia obytných priestorov – vhodné aj ako dielňa.
Blízkosť MHD – autobusu a regionálnej železnice:
Perfektne zabezpečené spojenie, ktoré vás rýchlo a pohodlne dostane do mesta, do Berlína/centra a ďaleko odtiaľ.
Obchodné možnosti a reštaurácie v bezprostrednej blízkosti:
Edeka a reštaurácie zabezpečujú krátke cesty a kulinársku rozmanitosť.
Perfektné napojenie na mestskú diaľnicu:
Ideálne pre dochádzajúcich alebo na víkendové výlety – nájazd/odjazd je vzdialený len pár minút autom (blízko, ale bez hlučnosti).
Energeticky úsporná budova:
Energetická trieda B šetrí prevádzkové náklady a chráni životné prostredie – moderné bývanie so zodpovednosťou.
Zaujala vás naša ponuka? Kontaktujte nás ešte dnes a zabezpečte si termín na obhliadku, kým sa tento byt opäť neobsadí!
V pokojnej a veľmi zelenej lokalite, 30 km od Berlína, pokojna a zároveň centrálna, sa nachádza tento svetlý 3-izbový byt.
Budova bola postavená v roku 1990 a v roku 1994 bola dôkladne zrekonštruovaná. Príjemná kvalita bývania je hneď pocítiteľná pri vstupe do bytu.
- WC so sprchou
- Elegantný vinyl pre kúpeľňu so štýlom
- Nový laminát (v štýle dubu) v celom zvyšku bytu
- Parkovacie miesto
Byt prežiarený svetlom:
Veľké okná zabezpečujú svetlé, príjemné miestnosti a vytvárajú teplú, pozývajúcu atmosféru, ktorá vás núti cítiť sa dobre.
LED zapustené svetlá v obývačke, kuchyni, chodbe a kúpeľni:
Moderný dizajn osvetlenia, ktorý dokonale zdôrazňuje interiér a vytvára kvalitnú atmosféru.
Kvalitná vstavaná kuchyňa so sporákom, umývačkou riadu a veľkým množstvom denného svetla:
Ideálna pre milovníkov varenia – vychutnajte si štýlové večere alebo praktické každodenné varenie s prvotriednym vybavením.
Kvalitná laminátová podlaha v dubovej drevenej optike:
Štýlová podlaha dodáva bytu moderný a útulný charakter – zároveň je odolná a nenáročná na údržbu.
Novo natriatené radiátory v celom byte:
Nový vzhľad a optimálne rozloženie tepla pre útulné prostredie v každom ročnom období.
Rám na uteráky v kúpeľni:
Luxusné teplo pre vaše uteráky – malý luxus, ktorý vám skrášli každé ráno.
Pripojenie pre práčku v kúpeľni:
Praktické a miestoriadovo úsporné – špinavé prádlo môžete hneď dať do práčky pred sprchovaním.
Nové stojace WC:
Moderný vzhľad v kombinácii s ľahkou údržbou – hygienické a praktické.
Parametre nehnuteľnosti
| Vek | Nad 50 rokov |
|---|---|
| Stav | Po rekonštrukcii |
| Poschodie | 4. poschodie z 4 |
| PENB | B - Veľmi úsporné |
| Cena za jednotku | 14 € / m2 |
| Dostupné od | 30. 3. 2026 |
|---|---|
| Dispozícia | 3+1 |
| Číslo inzerátu | 1006274 |
| Úžitková plocha | 68 m² |
Čo táto nehnuteľnosť ponúka?
| Balkón | |
| Parkovanie |
| Pivnica | |
| MHD 4 minúty pešo |
V okolí nehnuteľnosti nájdete
Stále hľadáte to pravé?
Nastavte si strážneho psa. Ponuky vybrané na mieru dostanete súhrnne 1× denne e-mailom. S Premium profilom máte po ruke rovno 5 strážcov a keď sa niečo objaví, informujú vás obratom.











