
Prenájom domu 4+1 • 148 m² bez realitkyGartenstraße 2a Dietramszell Ascholding Bayern 83623
Gartenstraße 2a Dietramszell Ascholding Bayern 83623MHD 2 minúty autom • Parkovanie • GarážRodinný dom z roku 2015 spája moderné bývanie, energetickú efektívnosť a výbornú polohu v Ascholdingu. Na približne 148 m² obytného priestoru a s pozemkom 338 m² ponúka tento dom všetko, čo rodiny alebo páry hľadajú: priestor, komfort a pocit pohody.
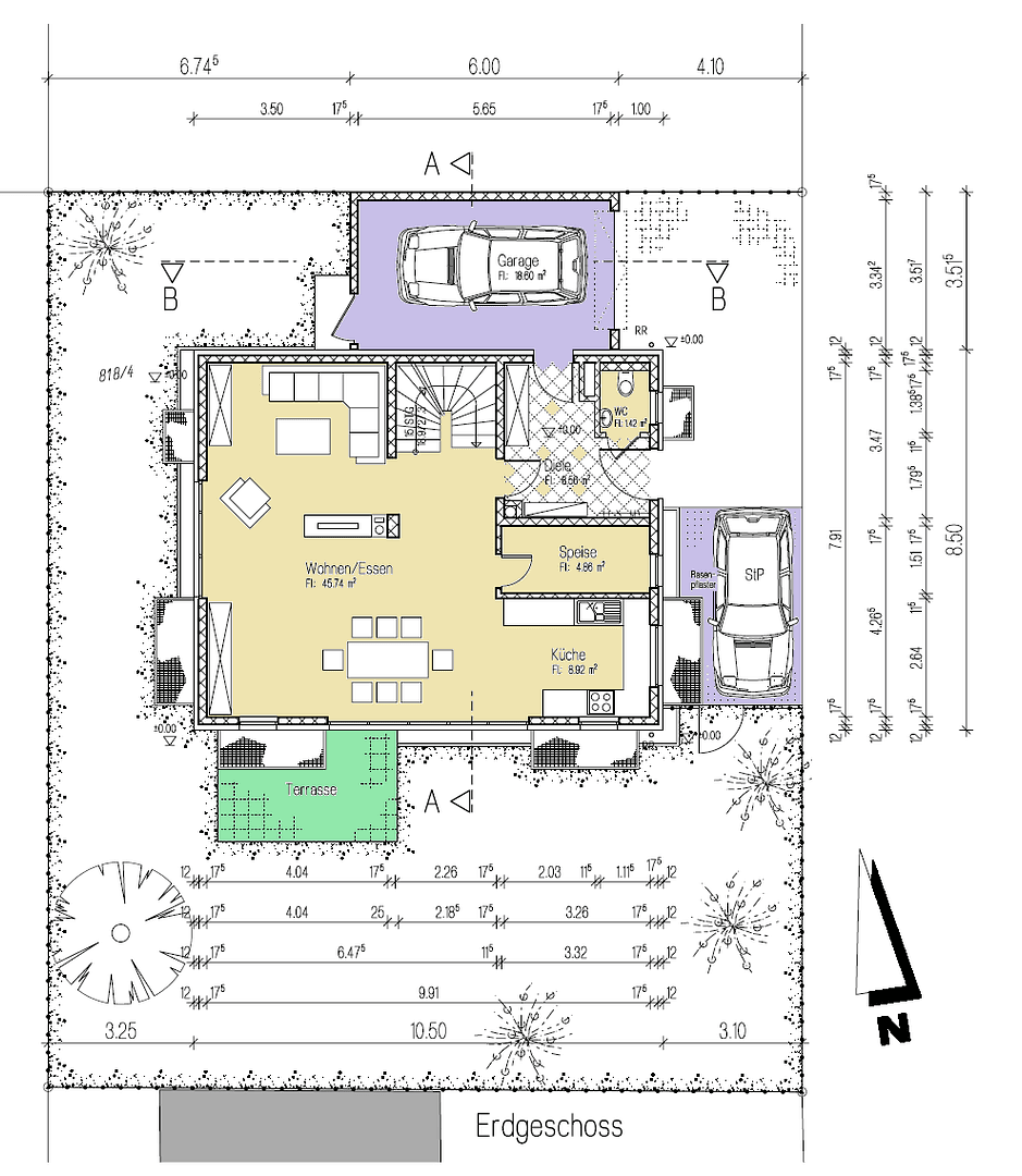
V prízemí sa nachádza priestranná obývacia a jedálenská časť s priamym vstupom na južnú terasu a do záhrady. Osobitým lákadlom je romantický panoramatický krb, ktorý je ideálny pre útulné chvíle. Otvorená vstavaná kuchyňa môže byť prebratá od bývalého nájomcu po dohode. Spíž skracuje vzdialenosti. V priestrannom predhospode sa nachádza aj hosťovské WC a prístup do pripojenej garáže. Garáž má šírku 3,50 m a je vhodná aj pre dnešné vozidlá.
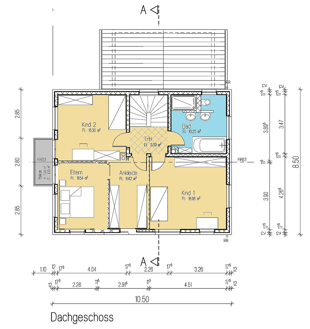
Horné poschodie ponúka peknú priestrannú kúpeľňu so sprchou aj vaňou a tri svetlé spálne, pričom jedna z nich disponuje predpripraveným šatníkom.
Podzemie ponúka hojný priestor pre všetky potreby. V kotolni sa nachádza vodovodné tepelné čerpadlo voda-voda, na ktoré je pripojený aj samostatný odberný elektrický merač. Tu je taktiež miesto pre práčku a sušičku. K dispozícii sú ešte tri ďalšie miestnosti na individuálne využitie – od úložného priestoru až po hobby miestnosť, je tu množstvo možností.
Priestranná južná záhrada ponúka mnoho možností pre jej úpravu. Je oplotená dreveným plotom. Pred domom sa nachádza aj dodatočné parkovacie miesto pre Váš automobil.
Ascholding je dedinka s vidieckym charakterom a časť obce Dietramszell. Miesto sa nachádza približne osem kilometrov od Dietramszell a šesť kilometrov od Wolfratshausen. Veľká rieka Ascholdinger Au a susedná Pupplinger Au spoločne tvoria časť chráneného územia Isarauen medzi Schäftlarn a Bad Tölz, čo výrazne prispieva k jeho rekreačnej hodnote. Ascholding sa nachádza vo výške približne 600 m n. m. a rozprestiera sa na ploche 1052 km². Podľa cenzu v roku 2022 malo miesto 970 obyvateľov – pričom počet obyvateľov rastie. V obci je k dispozícii materská škola, pričom základná a stredná škola sa nachádzajú v Dietramszell. Tiež v blízkosti nájdete Montessori školu a Waldorfskú školu. Existujú autobusové spoje do Bad Tölz, Wolfratshausen a do Höllriegelkreuth (linka S7 – S-Bahn).
Najskoršia možná dostupnosť je k 01.05.2026. Inak podľa dohody.
Parametre nehnuteľnosti
| Vek | Nad 50 rokov |
|---|---|
| Dispozícia | 4+1 |
| PENB | A - Mimoriadne úsporné |
| Plocha pozemku | 338 m² |
| Cena za jednotku | 18 € / m2 |
| Stav | Dobrý |
|---|---|
| Číslo inzerátu | 1006252 |
| Úžitková plocha | 148 m² |
| Celkové poschodia | 2 |
Čo táto nehnuteľnosť ponúka?
| Balkón | |
| Garáž | |
| MHD 2 minúty autom |
| Pivnica | |
| Parkovanie | |
| Terasa |
V okolí nehnuteľnosti nájdete
Stále hľadáte to pravé?
Nastavte si strážneho psa. Ponuky vybrané na mieru dostanete súhrnne 1× denne e-mailom. S Premium profilom máte po ruke rovno 5 strážcov a keď sa niečo objaví, informujú vás obratom.





























