
Predaj domu 7+1 • 190 m² bez realitkyDarmstadt Arheilgen Hessen 64291
Darmstadt Arheilgen Hessen 64291MHD 1 minúta pešo • GarážTento dvojrodinný dom s plochou strechou pozostáva z dvoch takmer rovnako veľkých bytov. Už v schodisku je zrejmé, že tento dom je dobre osvetlený, pevne postavený a udržiavaný.
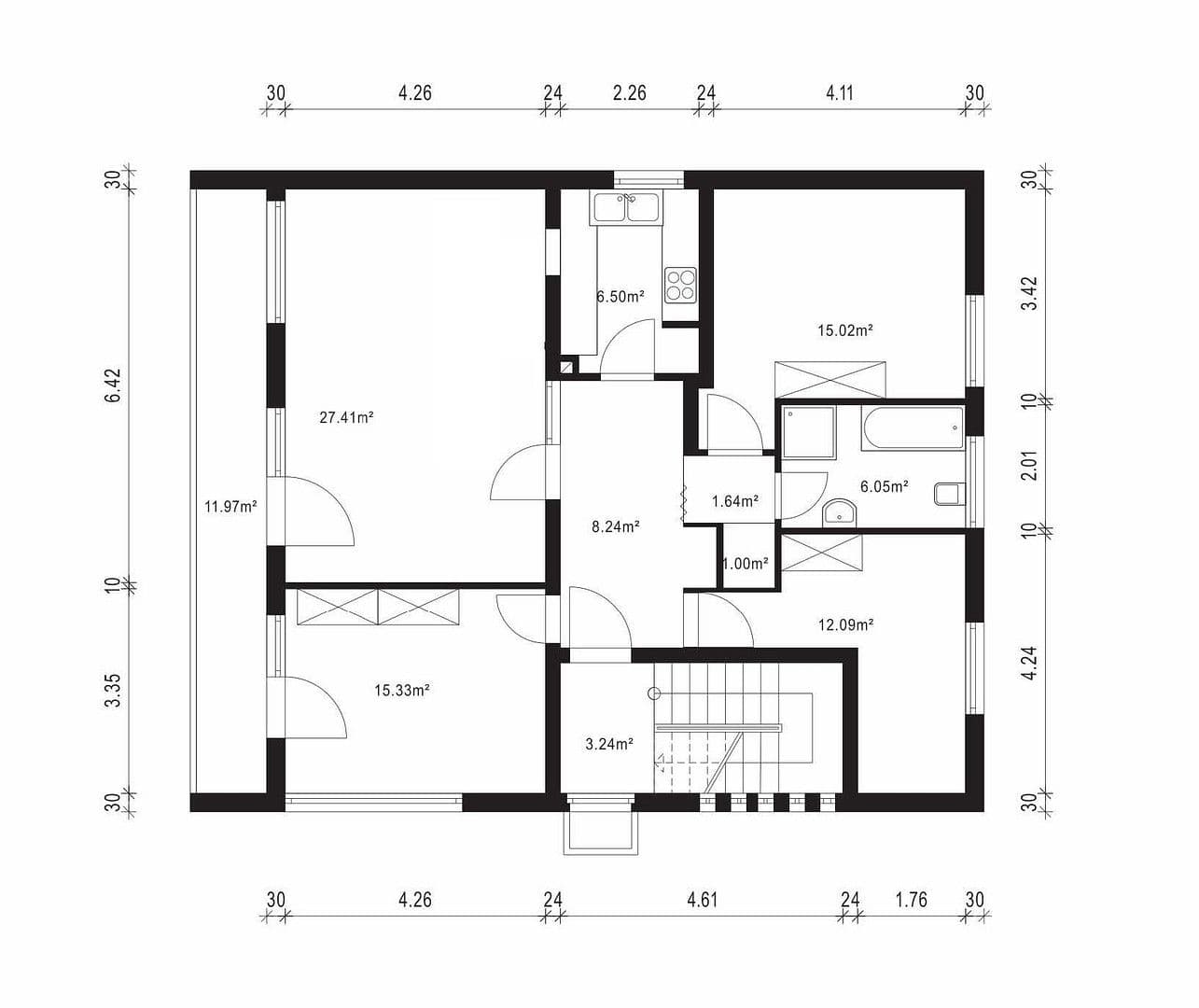
V prízemí sa nachádza veľký obývací a jedálny salón s prístupom na terasu a s krbovou pecou, ktorá zabezpečuje útulné chvíle a slúži ako dodatočný zdroj tepla. Obývacia a jedálenská časť v nadzemnom podlaží je menšia, čím vznikla dodatočná veľká izba; obe miestnosti majú priamy prístup k zasklenému a prikrytému balkónu. Kuchyne majú dostatočnú veľkosť a vždy je k dispozícii prepojenie s jedálňou. Sú vybavené vstavanými kuchynskými linkami, ktoré v prípade potreby zostanú v dome. Okrem toho sa v oboch podlažiach nachádza jedna väčšia a jedna menšia izba. Kúpeľňa v prízemí disponuje prístupnou (bezbariérovou) sprchou, kým kúpeľňa v nadzemnom podlaží je vybavená vaňou aj sprchou.
Klepa je suchá, vo veľkej miere dláždená a čiastočne vykurovaná. Okrem väčšej miestnosti, ktorá sa časťou využívala ako obývacia izba, sa tu nachádza aj ďalšia dobre osvetlená miestnosť, malá kúpeľňa, ktorá potrebuje rekonštrukciu, pivničný bar a dve skladovacie miestnosti. Pripojovacia miestnosť pre diaľkové kúrenie sa využíva ako práčovňa, kde sa nachádza aj sauna. Pivnica je navyše prístupná z vonkajších schodov.
Krásna, upravená záhrada s malým záhradným rybníkom je orientovaná na juh. Pozemok má rozlohu 547 m² a susedí s pozemkom určeným na výstavbu, ktorý je taktiež na predaj. Na susednom pozemku sa nachádzajú dve garáže, ktoré patria k domu. Pozemkový podiel pre garáže je 62 m², podiel na spoločnej prístupovej ceste je približne 20 m².
Dom je v dobrom, prispôsobenom stave pre vek.
V roku 1995 bola strecha domu novozateplená. Hlavné rekonštrukcie prebehli v roku 2000: rekonštruovaná kúpeľňa v prízemí a nadzemnom podlaží, renovované schodisko, inštalácia krbovej pece v prízemí, výmena vstupných dverí. Jednotka diaľkového kúrenia a ohrev vody boli vymenené v roku 2001. V roku 2024 boli zrekonštruované strechy garáží. V roku 2025 bola kúpeľňa v prízemí prebudovaná na bezbariérovú, pričom bola inštalovaná prístupná sprcha.
Tento dom sa nachádza na juhu mestskej časti Darmstadt-Arheilgen. Zastávka električky, školy, materská škôlka, lekári, nákupné možnosti, centrum Arheilgen, reštaurácie, športoviská a spoločnosť Merck sú všetko dostupné pešo. Severné nádražie, okresná správa Darmstadt-Dieburg, jazdecký klub, prírodné kúpalisko, Mestský park Nord a stavebný obchod sú taktiež v blízkom okolí. Do centra Darmstadtu sa pohodlne dostanete električkou alebo na bicykli. Autom máte dobré spojenie na diaľnicu A5 a A661.
+ samostatný dvojrodinný dom
+ masívna stavba
+ dve plne bývateľné podlažia, pivnica, plochá strecha
+ 3-izbový byt v prízemí, terasa, bezbariérová kúpeľňa
+ 4-izbový byt v nadzemnom podlaží, zasklený balkón, kúpeľňa s vaňou
+ dodatočná krbová pec v prízemí
+ pripojovacia pivničná miestnosť využiteľná ako práčovňa
+ dve vykurované, dobre osvetlené pivničné miestnosti + pivničný bar + 2 skladovacie miestnosti
+ navyše v pivnici: sauna + kúpeľňa, ktorá potrebuje rekonštrukciu
+ diaľkové kúrenie
+ dodatočné vonkajšie schody do pivnice
+ neprenajaté
+ dve garáže na susednom pozemku
+ veľká záhrada orientovaná na juh
+ predaj bez provízie pre kupujúceho
+ susedný pozemok určený na výstavbu je možné zakúpiť samostatne
Predaj je pre kupujúceho bez provízie. Dom je aktuálne využívaný iba v nadzemnom podlaží a môže byť po dohode čoskoro odovzdaný.
Všetky údaje sú poskytované bez záruky a vychádzajú výlučne zo informácií poskytnutých objednávateľmi. Nezaručujem úplnosť, správnosť ani aktuálnosť týchto údajov. Medzispredaj zostáva vyhradený.
Cornelia Krüger
Stavebné financovanie a nehnuteľnosti
Schöneweibergasse 89
64347 Griesheim
Nemecko
Zodpovedná podľa § 18 ods. 2 MStV:
Cornelia Krüger, Schöneweibergasse 89, 64347 Griesheim
Povolenie podľa §34c a §34i obchodného zákona bolo udelené Výborom okresu Darmstadt-Dieburg
Jägertorstr. 287
64289 Darmstadt
Povolenie podľa § 34d bolo udelené príslušnou IHK
Industrie- und Handelskammer Wiesbaden
Wilhelmstr. 24-26
65183 Wiesbaden
Zoznam sprostredkovateľov
Registračné číslo podľa §34C znie: S/4 130-04
Registračné číslo podľa §34d znie: D-UZJT-6OCHI-70
Registračné číslo podľa §34i znie: D-W-115-PZZH-66
Parametre nehnuteľnosti
| Vek | Nad 50 rokov |
|---|---|
| Dispozícia | 7+1 |
| PENB | G - Mimoriadne nehospodárne |
| Plocha pozemku | 629 m² |
| Cena za jednotku | 3 816 € / m2 |
| Stav | Pred rekonštrukciou |
|---|---|
| Číslo inzerátu | 1005593 |
| Úžitková plocha | 190 m² |
| Celkové poschodia | 2 |
Čo táto nehnuteľnosť ponúka?
| Balkón | |
| Garáž | |
| Terasa |
| Pivnica | |
| MHD 1 minúta pešo |
V okolí nehnuteľnosti nájdete
Stále hľadáte to pravé?
Nastavte si strážneho psa. Ponuky vybrané na mieru dostanete súhrnne 1× denne e-mailom. S Premium profilom máte po ruke rovno 5 strážcov a keď sa niečo objaví, informujú vás obratom.



































