
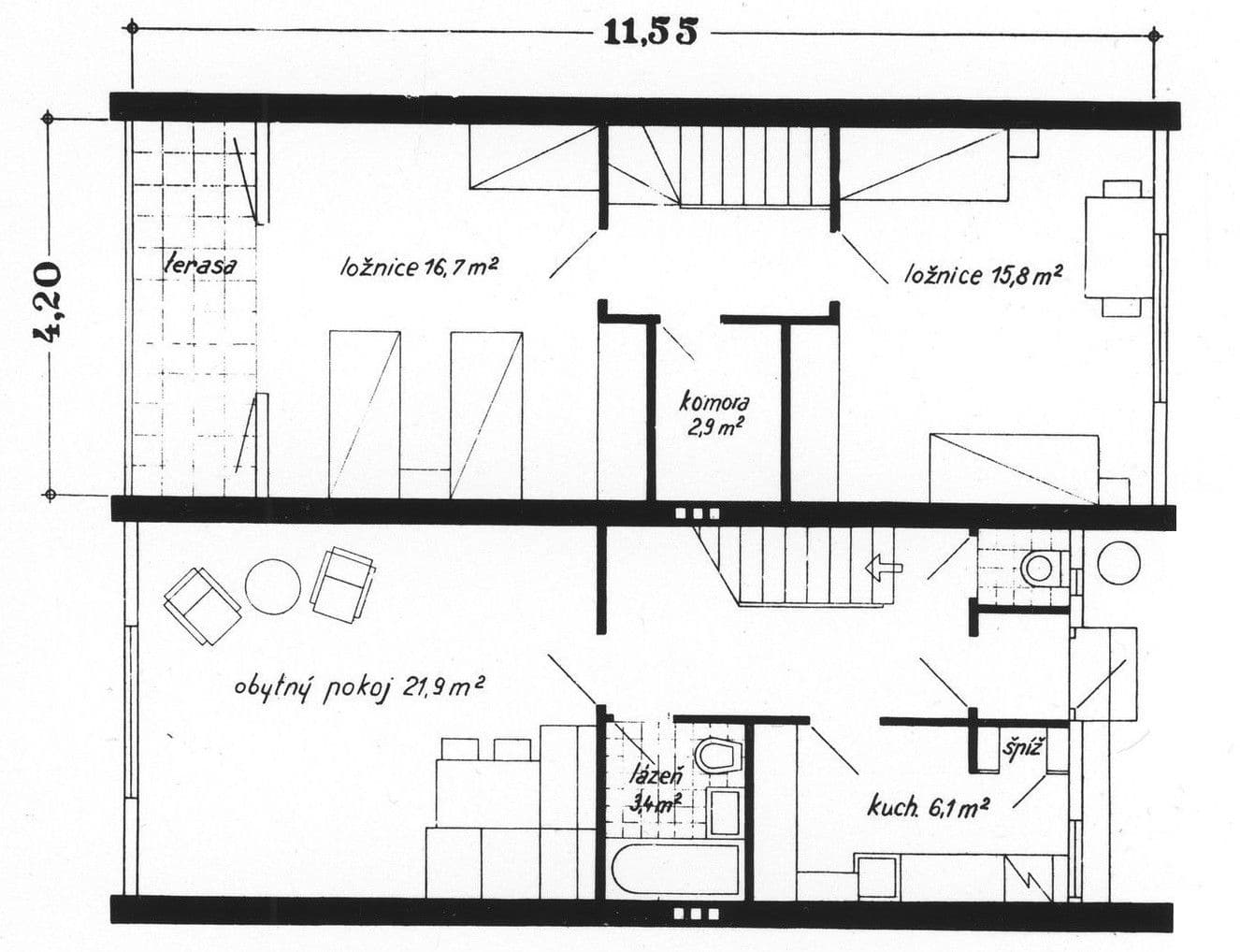
Prenájom domu 3+1 • 100 m² bez realitkySolidarity, Praha - Strašnice
Řadový rodinný domek v zeleni u metra
- park a zeleň přímo před domem
- dvě zahrádky – před domem i za domem
- velmi klidné prostředí vhodné pro pohodové bydlení a nerušený spánek
- příjemná sousedská atmosféra a komunitní život v lokalitě
- možnost parkování přímo před domem (na Solidaritě výjimečné)
- energeticky úsporný řadový dům (dvě hlavní stěny sdílené se sousedními domy)
Vybavení a stav:
- nový plynový kondenzační kotel Protherm s možností dálkového ovládání přes aplikaci (2025)
- parkety, nové malby a lakování (2025)
- vysokorychlostní internet 1000 Mbit/sec (optický kabel)
Občanská vybavenost
- obchody v docházkové vzdálenosti (Albert, Billa)
- v okolí škola, školka, divadlo, restaurace
- tramvajová zastávka Zborov 3 min pěšky
- stanice metra Strašnická 15 minut pěšky
Ordinary family terraced house surrounded by greenery near the metro
- Park and green areas right in front of the house
- Two gardens – one in front of and one behind the house
- A very quiet environment ideal for relaxing living and undisturbed sleep
- Pleasant neighborhood atmosphere and community spirit in the area
- Possibility of parking directly in front of the house (a rarity in Solidarity)
- Energy-efficient terraced house (two main walls shared with adjoining houses)
Features and condition:
- New Protherm gas condensing boiler with remote control via an app (2025)
- Hardwood floors, new paintings, and lacquer finishes (2025)
- High-speed internet at 1000 Mbit/sec (fiber optic cable)
Amenities:
- Shops within walking distance (Albert, Billa)
- Nearby school, kindergarten, theatre, and restaurants
- Tram stop Zborov a 3-minute walk away
- Strašnická metro station a 15-minute walk away
Parametre nehnuteľnosti
| Dostupné od | 24. 3. 2026 |
|---|---|
| Konštrukcia budovy | Tehla |
| Vybavené | Vybavené |
| Poloha domu | Radovka |
| Plocha pozemku | 200 m² |
| Stav | Veľmi dobrý |
|---|---|
| Dispozícia | 3+1 |
| Číslo inzerátu | 1004964 |
| Úžitková plocha | 100 m² |
| Cena za jednotku | 380 CZK / m2 |
V okolí nehnuteľnosti nájdete

Prenájom domuKojetická, Líbeznice - Líbeznice, Středočeský kraj- 4+kk
- 120 m²
- 249 m²
35 000 CZK + 3 000 CZK
Stále hľadáte to pravé?
Nastavte si strážneho psa. Ponuky vybrané na mieru dostanete súhrnne 1× denne e-mailom. S Premium profilom máte po ruke rovno 5 strážcov a keď sa niečo objaví, informujú vás obratom.












