
Prenájom bytu 3+1 • 80 m² bez realitkySchützenstraße 41 Berlin Mitte Mitte Berlin 10117
Exkluzívny 3-izbový byt
Schützenstraße 41, 10117 Berlin-Mitte
Poschodie: 1. nadzemné poschodie vľavo
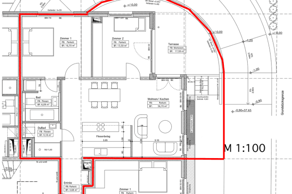
Typ bytu: 3-izbový byt s 2 kúpeľňami, kuchyňou, balkónom a pivničnou miestnosťou
Obytná plocha: cca 78,3 m² (kúrená plocha 70,0 m²)
Domový servis: Concierge v budove
Vybavenie
3 svetlé izby
Balkón
Kuchynská linka (prevzatie od predchádzajúceho nájomníka, 2016)
2 moderné kúpeľne
Pivničná miestnosť
Parkovacie miesto v podzemnej garáži č. 2 voliteľne (150 €/mesiac)
Concierge servis v budove
Bicyklový sklep
Spoločná posilňovňa s vybavením
Strešná terasa s panoramatickým výhľadom (na spoločné užívanie)
Záhradná plocha (na spoločné užívanie)
Nekončiaca nájomná zmluva s obvyklou výpovednou lehotou 3 mesiace
Bez stupňovitého nájomného
Bez provízie sprostredkovateľa (priamo od majiteľa)
Skvelá poloha v centre Berlína (Schützenstraße, v blízkosti Gendarmenmarkt & Checkpoint Charlie)
Concierge servis v budove
Spoločná posilňovňa, strešná terasa a záhradná plocha
Výborné spojenie s MHD (metro Stadtmitte, autobusy pešo)
Moderné vybavenie s 2 kúpeľňami a balkónom
Parkovacie miesto v podzemnej garáži k dispozícii
Moderná kuchynská linka (zahrnutá v nájme, dodávateľom poskytnutá)
2 kúpeľne
Balkón
Concierge servis v budove
Parkovacie miesto v podzemnej garáži voliteľné
Pivničná miestnosť
Bicyklový sklep
Posilňovňa na spoločné používanie
Strešná terasa na spoločné používanie
Záhradná plocha na spoločné používanie
Nekončiaca nájomná zmluva s obvyklou výpovednou lehotou 3 mesiace
Bez stupňovitého nájomného
Bez provízie sprostredkovateľa (priamo od majiteľa)
„Prémiový byt v centre – 3 izby, Concierge & Fitnesszóna & Strešná terasa, Záhrada & Podzemná garáž“
Nekončiaca nájomná zmluva s obvyklou výpovednou lehotou 3 mesiace
Bez stupňovitého nájomného
Bez provízie sprostredkovateľa (priamo od majiteľa)
Parametre nehnuteľnosti
| Vek | Nad 50 rokov |
|---|---|
| Dispozícia | 3+1 |
| Číslo inzerátu | 1004824 |
| Cena za jednotku | 22 € / m2 |
| Stav | Veľmi dobrý |
|---|---|
| Poschodie | 1. poschodie z 6 |
| Úžitková plocha | 80 m² |
Čo táto nehnuteľnosť ponúka?
| Balkón | |
| Pivnica | |
| Výťah | |
| Terasa |
| Bezbariérový prístup | |
| Garáž | |
| MHD 4 minúty pešo |
V okolí nehnuteľnosti nájdete
Stále hľadáte to pravé?
Nastavte si strážneho psa. Ponuky vybrané na mieru dostanete súhrnne 1× denne e-mailom. S Premium profilom máte po ruke rovno 5 strážcov a keď sa niečo objaví, informujú vás obratom.






















































