
Prenájom bytu 3+1 • 97 m² bez realitkyTrojanstraße 16, , Dolné Sasko
Slnkom zalievaný 3-izbový byt s vysokými historickými stropmi sa nachádza v obytnom a obchodnom dome v pokojnej, no zároveň centrálnom lokalite. Do bytu je možné nasťahovať od 01.05.2026.
Objekt zaujme svojou upratanou fasádou a harmonickým začlenením do existujúcej obytné zástavby.
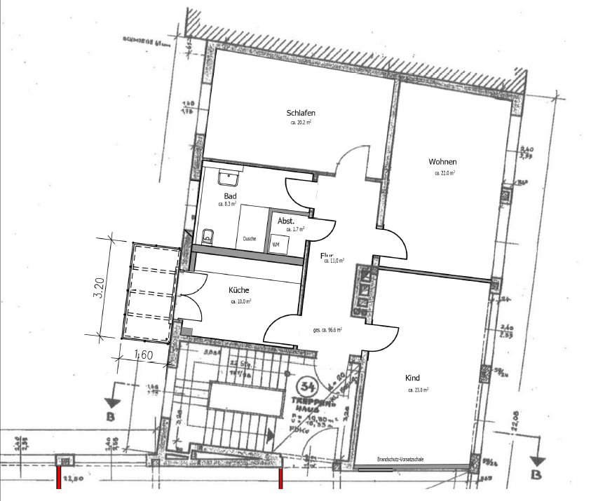
Byt, ktorý sa nachádza v 1. poschodí, disponuje premysleným rozložením miestností a moderným vybavením.
V rámci nedávnej rekonštrukcie boli všetky inštalácie a vybavenie uvedené do súčasného technického stavu, takže byt je v bezchybnom stave.
Nová, takmer ako nová, kuchynská linka sa dá prebrať za primeraný poplatok, takže vlastná inštalácia kuchyne nie je potrebná. Balkon sa nachádza na južnej strane.
Obývacie miestnosti sú všetky čerstvo natreté a vybavené zleštenou a impregnovanou parketovou podlahou.
Kúpeľňa je vybavená sprchou bez prahu a novými sanitárnymi zariadeniami.
Prakticky je k dispozícii aj malá šatníková miestnosť, ktorá nezaberá veľa miesta, ale je v každodennom živote mimoriadne užitočná.
Byt sa nachádza v tichej bočnej ulici, nedaleko od ulice Podbilskistrasse, v mestskej časti List.
Autobusová zastávka (tramvajová, linky 3, 7, 9) je dobre dostupná pešo a v bezprostrednej blízkosti sa nachádza niekoľko obchodov.
3 izby
Balkón
Skladacia miestnosť
Kuchyňu je možné prebrať
Nová kúpeľňa
Parketová podlaha
Vysoké stropy
Parametre nehnuteľnosti
| Vek | Nad 50 rokov |
|---|---|
| Dispozícia | 3+1 |
| Číslo inzerátu | 1004727 |
| Cena za jednotku | 14 € / m2 |
| Dostupné od | 1. 5. 2026 |
|---|---|
| Poschodie | 1. poschodie |
| Úžitková plocha | 97 m² |
Čo táto nehnuteľnosť ponúka?
| Balkón | |
| MHD 3 minúty pešo |
| Pivnica |
V okolí nehnuteľnosti nájdete
Stále hľadáte to pravé?
Nastavte si strážneho psa. Ponuky vybrané na mieru dostanete súhrnne 1× denne e-mailom. S Premium profilom máte po ruke rovno 5 strážcov a keď sa niečo objaví, informujú vás obratom.

















