
Predaj domu 4+1 • 120 m² bez realitkyHintergasse 21, , Hesensko
Hintergasse 21, , HesenskoMHD 3 minúty pešo • ParkovanieTento s láskou zmodernizovaný rodinný dom v pokojnej a centrálnej lokalite Riedstadt-Goddelau ponúka ideálne miesto pre život pre každého, kto si cení komfort a harmonický domov.
Dom postavený v roku 1922 bol v roku 2018 kompletne zrekonštruovaný a energeticky modernizovaný. Tak dnes nehnuteľnosť spája osobitý šarm starého domu s požiadavkami moderného bývania – bez nutnosti väčších rekonštrukcií.
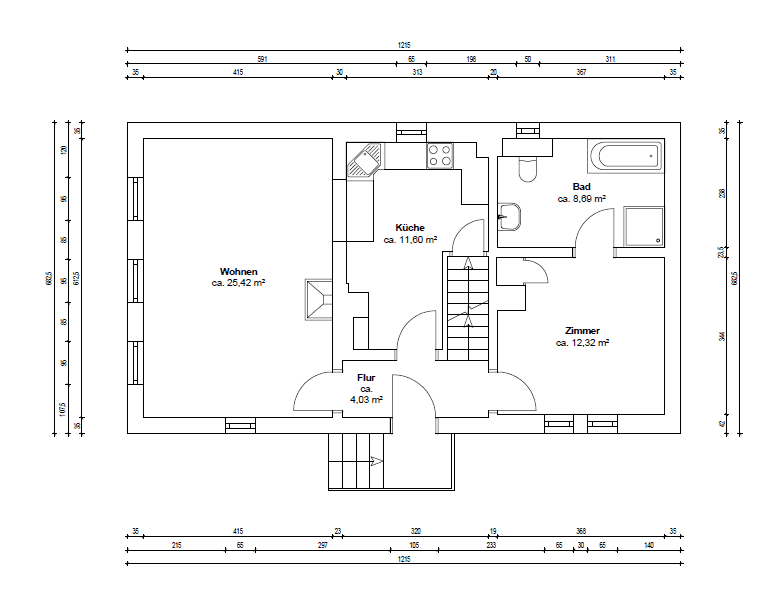
Na približne 120 m² obytného priestoru sa rozprestierajú štyri dobre usporiadané izby, ktoré ponúkajú rôzne možnosti využitia – či už ako detská izba alebo domáca kancelária. Svetlé a premyslené rozloženie priestoru vytvára príjemnú atmosféru, v ktorej sa celá rodina môže rozvíjať.
Srdcom domu je útulná obývačka s vlastným krbom. Okrem toho priestranná pivnica ponúka veľa miesta pre zásoby alebo koníčky. Navyše bolo podkrovie zrekonštruované, čím vznikli ďalšie dve izby, vhodné ako útočiská pre deti alebo pracovný priestor.
Nehnuteľnosť sa nachádza v pokojnej obytnéj oblasti Riedstadt-Goddelau. Obchody s dennými potrebami, školy, materské školy aj lekári sú dostupní behom niekoľkých minút. Dobrá dostupnosť verejnej dopravy, ako aj blízkosť vlakovej stanice (cca 10 minút pešo) a diaľnic zaisťujú rýchly prístup do okolitých miest ako Darmstadt, Mainz a Frankfurt. Prírodné prostredie navodzuje aj príležitosti na prechádzky a rekreačné aktivity.
Rodinný dom zaujme premysleným rozložením priestorov s vysokými stropmi. Obzvlášť stojí za zmienku veľká pivnica, ktorá ponúka dostatok úložného priestoru pre domáce potreby, zásoby alebo potreby pre hobby. Okrem toho dom disponuje zrekonštruovaným podkroviom, v ktorom sa nachádzajú ďalšie dve izby, ktoré je možné flexibilne využívať ako spálňu, pracovňu alebo hobby miestnosť. Moderný celkový stav a krb v obývačke dopĺňajú atraktívny koncept vybavenia.
Presvedčte sa sami pri osobnej prehliadke – tešíme sa na Vašu žiadosť!
Parametre nehnuteľnosti
| Vek | Nad 50 rokov |
|---|---|
| Stav | Po rekonštrukcii |
| Číslo inzerátu | 1004702 |
| Úžitková plocha | 120 m² |
| Celkové poschodia | 2 |
| Dostupné od | 4. 4. 2026 |
|---|---|
| Dispozícia | 4+1 |
| PENB | G - Mimoriadne nehospodárne |
| Plocha pozemku | 161 m² |
| Cena za jednotku | 2 575 € / m2 |
Čo táto nehnuteľnosť ponúka?
| Pivnica | |
| MHD 3 minúty pešo |
| Parkovanie |
V okolí nehnuteľnosti nájdete
Stále hľadáte to pravé?
Nastavte si strážneho psa. Ponuky vybrané na mieru dostanete súhrnne 1× denne e-mailom. S Premium profilom máte po ruke rovno 5 strážcov a keď sa niečo objaví, informujú vás obratom.








