Prenájom domu • 220 m² bez realitkyAm Giesenbach 14, , Bádensko-Wurttembersko
Am Giesenbach 14, , Bádensko-WurttemberskoMHD 3 minúty pešo • Parkovanie**** POZOR, PROSÍM ČÍTAJTE !!! ****
AK MAJTE ZÁUJEM O DOM:
Napíšte mi cez kontaktný formulár nasledovné:
- S koľkými osobami chcete dom obývať?
- Čím a kde pracujete?
- Máte negatívne záznamy v bonite?
- Aké domáce zvieratá máte?
- Kedy sa chcete nasťahovať?
Prosím, uveďte svoje mobilné číslo!
************************
Tento robustne postavený dom (cca 1973) bol priebežne modernizovaný a dnes sa prezentuje v veľmi udržiavanom stave (fikčný rok výstavby cca 1999). Pokojná lokalita v Lahr-Reichenbach ponúka ideálne podmienky pre pokojné bývanie s veľkým súkromím.
Dom zaujme svojou flexibilnou využiteľnosťou: ideálne ako priestranný rodinný dom alebo dom pre viac generácií.
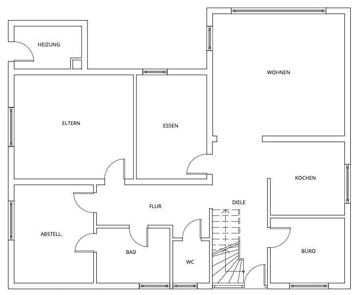
PRÍZEMIE:
Svetlý, priestranný obývací priestor s prístupom do záhrady, kuchyňa, dve spálne, moderná kúpeľňa a hostinská toaleta.
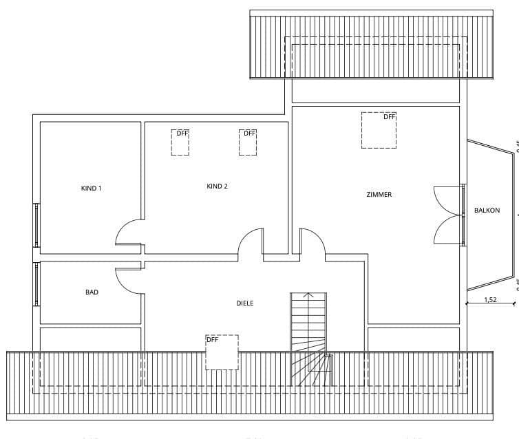
PRÍKROVIE:
Tri ďalšie spálne, kúpeľňa a navyše ďalší veľký obývací priestor s kuchyňou – ideálne pre rodinu, hostí alebo prácu.
ĎALŠIE VÝHODY:
- Udržiavaný stav
- Veľa priestoru a flexibilná využiteľnosť
- Pokojná lokalita
- Plynové centrálne kúrenie
- Veľká záhrada
Energetický preukaz je momentálne vo výrobe.
Dopyty od realitných maklérov nie sú vítané.
Parametre nehnuteľnosti
| Vek | Nad 50 rokov |
|---|---|
| Číslo inzerátu | 1004649 |
| Plocha pozemku | 857 m² |
| Cena za jednotku | 9 € / m2 |
| Dostupné od | 30. 3. 2026 |
|---|---|
| Úžitková plocha | 220 m² |
| Celkové poschodia | 2 |
Čo táto nehnuteľnosť ponúka?
| Balkón | |
| Parkovanie | |
| Terasa |
| Pivnica | |
| MHD 3 minúty pešo |
V okolí nehnuteľnosti nájdete
Stále hľadáte to pravé?
Nastavte si strážneho psa. Ponuky vybrané na mieru dostanete súhrnne 1× denne e-mailom. S Premium profilom máte po ruke rovno 5 strážcov a keď sa niečo objaví, informujú vás obratom.






















