
Prenájom bytu 2+1 • 60 m² bez realitkyDělnická, Kolín - Kolín, Středočeský kraj
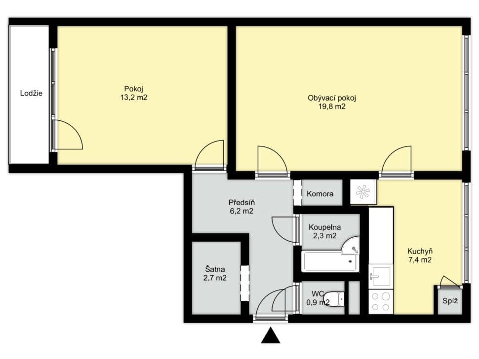
Nabízím k pronájmu byt 2+1 nacházející se v panelovém domě. Byt o rozloze 60 m² se nachází v 6. patře ze 7 a je ve velmi dobrém stavu, momentálně je před dokončením rekonstrukce celého bytu, což zaručuje kvalitní komfort bydlení. Nemovitost je částečně vybavená - nová koupelna a kuchyň na míru včetně spotřebičů.
K bytu náleží balkon o ploše 2,5 m², ideální místo pro ranní kávu či odpolední relaxaci, a také sklep o ploše 2 m², který poskytuje praktický úložný prostor. Budova disponuje výtahem a je přizpůsobena pro bezbariérový přístup, což ocení zejména lidé s omezenou pohyblivostí. Kolárna pro kočárky nebo vaše kola. Výborná dostupnost, 3min chůzí do školky nebo školy, 3min do restaurace u Barborky, 6min do Billy nebo k plaveckému bazénu. Dětský doktor je do 5min. Náměstí v Kolíně 15min chůze, atd...
Pro více informací či sjednání prohlídky mě neváhejte kontaktovat prostřednictvím zpráv na této komunikační platformě. Budu se těšit na budoucí nájemce :)
Parametre nehnuteľnosti
| Dostupné od | 1. 5. 2026 |
|---|---|
| Konštrukcia budovy | Panel |
| Vybavené | Čiastočne |
| Číslo inzerátu | 1004557 |
| Úžitková plocha | 60 m² |
| Stav | Veľmi dobrý |
|---|---|
| Dispozícia | 2+1 |
| Poschodie | 6. poschodie z 7 |
| Umiestnenie | Sídlisko |
| Cena za jednotku | 292 CZK / m2 |
Čo táto nehnuteľnosť ponúka?
| Balkón 2,5 m² | |
| Pivnica 2 m² | |
| MHD 3 minúty pešo |
| Bezbariérový prístup | |
| Výťah |
V okolí nehnuteľnosti nájdete



Prenájom bytuChelčického, Kolín - Kolín, Středočeský kraj- 3+kk
- 75 m²
19 500 CZK + 4 500 CZK20 500 CZK
Ušetríte 1 000 CZK

Stále hľadáte to pravé?
Nastavte si strážneho psa. Ponuky vybrané na mieru dostanete súhrnne 1× denne e-mailom. S Premium profilom máte po ruke rovno 5 strážcov a keď sa niečo objaví, informujú vás obratom.



