
Predaj domu 7+1 • 211 m² bez realitkyRauenberger Straße, , Bádensko-Wurttembersko
Táto nehnuteľnosť zaujme inteligentným rozdelením priestorov na troch úrovniach a prvotriednym energetickým stavom. S približne 211 m² obytného priestoru a premysleným pôdorysom ponúka dom vzácnu kombináciu otvoreného rodinného života a priestoru na únik.
Koncept rozloženia priestorov v detailoch:
Prízemie (Príchod a flexibilita): Široká chodba vás privíta a poskytuje dostatok miesta na šatníkovú skriňu a príjemný vstup. Tu sa nachádza byt pre hosťa, zrekonštruovaný v roku 2023 (na bývanie/spánok, kuchyňa, kúpeľňa), ktorý sa momentálne využíva ako kvalitná kancelária. Okrem toho sa na tejto úrovni nachádza garáž s priamym vstupom do domu, dielňa a skladovacie priestory.
Poschodie (Srdce domu): Tu prebieha rodinný život. Otvorená, moderná kuchyňa plynule prechádza do jedálne a obývacej izby. Rohový krb je strategicky umiestnený tak, aby bol viditeľný zo všetkých priestorov. Veľkorysá terasa, rodičovská spálňa s pripojenou kúpeľňou a samostatné WC pre hostí dopĺňajú toto poschodie.
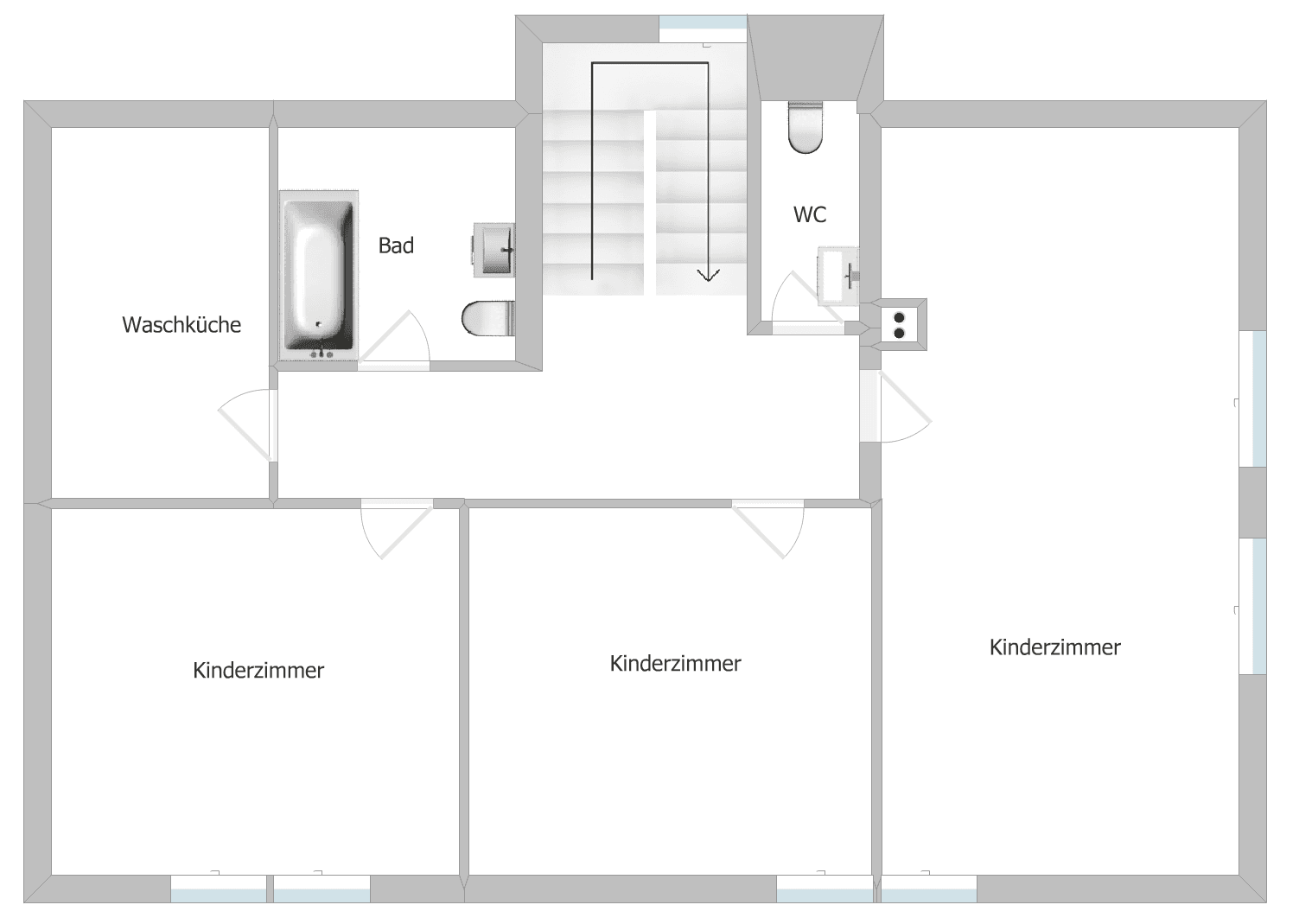
Podkrovie (Detský raj): Tri svetlé detské izby ponúkajú každému členu rodiny vlastný priestor. Na tejto úrovni sa nachádza aj druhá plnohodnotná kúpeľňa a samostatná práčovňa, čo činí každodenný život mimoriadne praktickým – práčka zostáva tam, kde vznikajú špinavé prádla.
Vybavenie a modernizácia:
Dom bol priebežne uvedený na najnovšie štandardy:
• napr. plynová kondenzáčná kotolňa, základný pec s reguláciou spaľovania (2017);
• kuchyňa (2019);
• fotovoltaický systém (10 kWp) vrátane úložiska a wallboxu (2020);
• nové trojsklo, strešné okná, čiastočná rekonštrukcia strechy (2022);
• modernizované vnútorné dvere a kúpeľne.
Pripojiteľnosť: 1000 Mbit káblový internet zabezpečuje bezproblémové domáce kancelárie.
Exteriér:
Pozemok o rozlohe 322 m² je optimálne využitý: Záhrada s ďalšou terasou láka na oddych, zatiaľ čo deti môžu využiť vlastný ihrací vežičku. Okrem garáže sú k dispozícii ešte tri vonkajšie parkovacie miesta.
Lokalita: Pokojné bývanie v „druhom rade“ s prvotriednym spojení
Nehnuteľnosť sa nachádza v jednej z najžiadanejších lokalít v Dielheime. Napriek adrese na ulici Rauenberger si tu užijete absolútny pokoj: Budova je situovaná mimo frekventovaných ciest, v druhom rade, chránená pred prvou zástavbou. To robí pozemok bezpečným útočiskom pre rodiny a tých, ktorí hľadajú pokoj.
Hlavné výhody lokality:
Maximálna flexibilita pre dochádzačov:
• Diaľnica A6: Zjazd Wiesloch/Rauenberg dosiahnete približne do 3–4 minút (cca 3 km). Odtiaľ ste rýchlo v centrách metropolitnej oblasti.
• Dôležití zamestnávatelia: Sídla firiem SAP (Walldorf), Heidelberger Druckmaschinen a MLP (Wiesloch) sú vzdialené len približne 10–15 minút jazdy.
• Heidelberg a Mannheim: Cez diaľnice A6/A5 sú Heidelberg dostupný približne za 20 a Mannheim za 30 minút.
Infraštruktúra priamo na mieste:
• Nákupy: Supermarkety (Edeka, Penny), pekárne a lekáreň sú pohodlne dostupné v obci.
• Vzdelávanie a starostlivosť: Materské škôlky, základná škola a viacstupňová škola (až do 10. triedy) sú dostupné pešo za menej ako 5 minút. Stredné školy v susednom Wieslochu sú vynikajúco spojené školskými autobusmi.
• Verejná doprava: Autobusová zastávka sa nachádza v bezprostrednej blízkosti. Linka 702 poskytuje rýchle spojenie s vlakovou stanicou Wiesloch-Walldorf.
Voľný čas a kvalita života:
• Poloha na okraji Kraichgausu láka na prechádzky a cyklotúry do okolitých viníc.
• Vysoký voľnočasový potenciál vďaka blízkym športovým klubom a prvotriednym golfovým ihriskám v regióne (St. Leon-Rot, Baiertal).
Digitálna práca:
Vďaka 1000 Mbit káblovému internetu a možnosti optického pripojenia poskytuje táto lokalita dokonalý technický základ pre nekompromisnú prácu z domu.
Škola: 1 min
Materská škôlka: 4 min
Supermarket a lekáreň: menej ako 8 minút
Autobusová zastávka: 4 min
Vlaková stanica Wiesloch-Walldorf: cca 20 minút na bicykli
Parametre nehnuteľnosti
| Vek | Nad 50 rokov |
|---|---|
| Dispozícia | 7+1 |
| PENB | C - Hospodárne |
| Plocha pozemku | 322 m² |
| Stav | Po rekonštrukcii |
|---|---|
| Číslo inzerátu | 1004378 |
| Úžitková plocha | 211 m² |
| Cena za jednotku | 3 270 € / m2 |
Čo táto nehnuteľnosť ponúka?
| Pivnica | |
| Parkovanie | |
| Terasa |
| Garáž | |
| MHD 3 minúty pešo |
V okolí nehnuteľnosti nájdete
Stále hľadáte to pravé?
Nastavte si strážneho psa. Ponuky vybrané na mieru dostanete súhrnne 1× denne e-mailom. S Premium profilom máte po ruke rovno 5 strážcov a keď sa niečo objaví, informujú vás obratom.

















