
Prenájom bytu 3+1 • 83 m² bez realitkyDachtmisser Weg 6, , Dolné Sasko
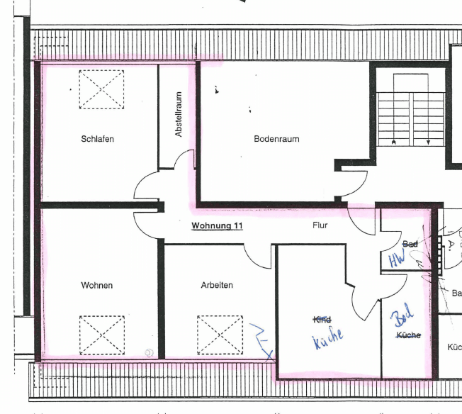
Dachtmisser Weg 6, , Dolné SaskoMHD 5minút pešoTáto svetlá a šarmantná 3-izbová podkrovná bytosť s približne 85 m² obytného priestoru sa nachádza na druhom poschodí udržiavaného viacrodinného domu v Burgdorfe a ponúka príjemné bývanie s modernizovaným vybavením.
Obzvlášť je pozoruhodné novo upravené kúpeľňa a novo položené dlaždice v kuchyni a predsieni, ktoré bytu dodávajú udržiavaný a súčasný vzhľad. Každá obytná miestnosť je navyše vybavená sieťovou zásuvkou, čo robí byt atraktívnym najmä pre moderný životný štýl a prácu z domu.
K bytu patrí aj pivničná miestnosť, ktorá poskytuje dodatočný úložný priestor. Okrem toho máte k dispozícii aj spoločnú záhradu na spoločné využitie. Byt bude k dispozícii od 01.05.2026. Domáce zvieratá sú po dohode možné.
Dachtmisser Weg 6 sa nachádza v príjemne pokojnej a zároveň dobre prepojenej obytné zóne v Burgdorfe. Obchody, lekári, lekárne, školy a materské školy sú ľahko dostupné, čo robí lokalitu mimoriadne praktickou pre každodenný život. Blízke autobusové spoje a dobre dostupná stanica Burgdorf zabezpečujú výborné spojenie do centra mesta, do Hannoveru a do okolitých regiónov. Atraktívnosť lokality dopĺňajú zelené plochy, ihriská a rôzne možnosti voľnočasových aktivít, čo Burgdorf robí obľúbeným miestom pre bývanie párov, rodín aj dojíždzajúcich pracovníkov.
Byt bol v zásadných ohľadoch modernizovaný a ponúka príťažlivé, súčasné vybavenie. Obzvlášť pozoruhodné je novo upravené kúpeľne a novo položené dlaždice v kuchyni a predsieni, ktoré zabezpečujú moderný a udržiavaný celkový dojem. V každej obytné miestnosti sa nachádza sieťová zásuvka, čo robí byt ideálnym aj pre home office, streaming a moderný životný štýl. Celkovú ponuku dopĺňa aj samostatná pivnica a možnosť využitia spoločnej záhrady.
O niečo prémiovejšie formulované:
Byt zaujme modernizovaným a premysleným vybavením. Novo upravená kúpeľňa a novo položené dlaždice v kuchyni a predsieni zdôrazňujú udržiavaný a súčasný charakter bytu. Pre vysoký komfort bývania v digitálnom veku sú v každej obytné miestnosti inštalované sieťové zásuvky. Vlastná pivnica poskytuje dodatočný úložný priestor, pričom spoločná záhrada významne dopĺňa celkové vybavenie.
Parametre nehnuteľnosti
| Vek | Nad 50 rokov |
|---|---|
| Stav | Po rekonštrukcii |
| Číslo inzerátu | 1004333 |
| Úžitková plocha | 83 m² |
| Dostupné od | 24. 3. 2026 |
|---|---|
| Dispozícia | 3+1 |
| PENB | C - Hospodárne |
| Cena za jednotku | 10 € / m2 |
Čo táto nehnuteľnosť ponúka?
| Pivnica |
| MHD 5 minút pešo |
V okolí nehnuteľnosti nájdete
Stále hľadáte to pravé?
Nastavte si strážneho psa. Ponuky vybrané na mieru dostanete súhrnne 1× denne e-mailom. S Premium profilom máte po ruke rovno 5 strážcov a keď sa niečo objaví, informujú vás obratom.


















