
Prenájom domu 5+1 • 170 m² bez realitky, Porýnie-Falcko
, Porýnie-FalckoMHD 2 minúty pešo • ParkovanieOd 01.04.2026 je táto príťažlivá a veľmi udržiavaná duplexová rodinná polovica v obľúbenom grethenskom sídle Bad Dürkheim k prenájmu. Nehnuteľnosť sa rozprestiera na dvoch podlažiach a ponúka ideálnu kombináciu útulného vidieckeho štýlu a modernej priestrannosti.
Dom je ideálny pre rodinu alebo pár s väčším priestorom a je určený pre maximálne päť osôb. Vzhľadom na výšku nájomného zvyčajne nie je možné, aby bola prevzatá nákladmi zo strany úrad práce.
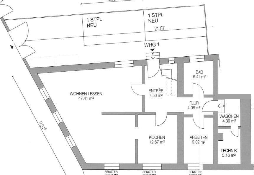
Obzvlášť je potrebné vyzdvihnúť približne 47 m² veľkú obývaciu a jedálenskú miestnosť v prízemí, ktorá zaujme tradičným murivým krbom a priamym výhľadom do prírody.
Celkom päť izieb ponúka veľa priestoru pre rodiny alebo páry s potrebou domácej kancelárie:
Prízemie:
• Rozľahlá obývačka/sál, samostatná kuchyňa, pracovňa a kúpeľňa.
Poschodie:
• Priestranná hlavná spálňa s pripojenou šatňou, dve svetlé (detské) izby a ďalšia kúpeľňa.
Kúpeľne:
• Celkovo dve upravené kúpeľne s denným svetlom, vybavené sprchovým kútom, vaňou a WC.
Kuchyňa:
• K dispozícii je kvalitná vstavaná kuchyňa, ktorá ponúka veľa pracovnej plochy a moderné spotrebiče.
Parkovanie:
• Hneď pri dome sa nachádzajú parkovacie miesta, ktoré výrazne uľahčujú vykládku vašich nákupov.
K dispozícii od: 01.04.2026
Základný nájom: 1.500 €
Prevádzkové náklady: 499 € mesačne (záloha)
Elektrina: cca 150 € (vyúčtovanie prebieha priamo so dodávateľom)
Celkový nájom: 1.999 € (plus elektrina)
Duplexová polovica bola pôvodne súčasťou väčšieho rodinného domu a bola rozdelená na dve časti. My, ako vlastníci, bývame hneď vedľa, a preto si veľmi zakladáme na príjemných, rešpektujúcom a dlhodobom susedskom vzťahu.
Hľadáme spoľahlivých nájomníkov, ktorí si tento dom budú rovnako vážiť a starostlivo ho udržiavať, ako sme to robili my počas mnohých rokov.
V prípade záujmu nás, prosím, kontaktujte s krátkou správou obsahujúcou niekoľko informácií o vás:
• Koľko osôb by sa sťahovalo?
• Čomu sa venujete?
• Požadovaný termín sťahovania
Zaujal vás náš inzerát? Kontaktujte nás pre dohodnutie termínu prehliadky, aby ste si osobne mohli overiť krásu tohto domova v Bad Dürkheim.
Nehnuteľnosť zaujme svojou centrálnou, no zároveň príjemnou lokalitou. Len niekoľkými minútami pešej chôdze sa dostanete do centrálneho mesta s jeho pestrou ponukou:
Občianske vybavenie: Supermarkety, pekárne a miestne špecializované obchody sa nachádzajú v bezprostrednej blízkosti.
Gastronómia: Zažite pfälzsky životný štýl v mnohých vínnych hostincoch, kaviarňach a špičkových reštauráciách, ktoré sú dostupné pešo.
Zdravotná starostlivosť: Ako kúpeľné mesto ponúka Bad Dürkheim excelentnú zdravotnú starostlivosť s odbornými lekármi a blízkou klinikou.
Voľný čas a oddych priamo za dverami:
Hlavným lákadlom lokality je vysoká hodnota voľnočasových aktivít. Známý kúpeľný park a solíny sú len na krátku prechádzku a vyzývajú k dennému oddychu na čerstvom vzduchu. Pešia trasa cez okolitú vinicu alebo Pfälzer Wald začína prakticky hneď za dverami domu.
Vynikajúce spojenie:
Pre dochádzajúcich a cestujúcich je poloha ideálne spätá s metropolitnou oblasťou Rhein-Neckar:
MHD: Nádestie Bad Dürkheim je rýchlo dostupné a ponúka pravidelné spojenia do Mannheimu, Ludwigshafenu a Neustadt an der Weinstraße.
Cesta: Cestou cez B37 a B9 je možné dosiahnuť okolitá mestá Ludwigshafen a Mannheim autom za približne 20 minút.
Vstavaná kuchyňa je vybavená modernými elektrickými spotrebičmi (varič, rúra, chladnička) a ponúka dostatok úložného priestoru.
Parametre nehnuteľnosti
| Vek | Nad 50 rokov |
|---|---|
| Stav | Dobrý |
| Číslo inzerátu | 1004332 |
| Úžitková plocha | 170 m² |
| Celkové poschodia | 2 |
| Dostupné od | 1. 4. 2026 |
|---|---|
| Dispozícia | 5+1 |
| PENB | F - veľmi nehospodárne |
| Plocha pozemku | 190 m² |
| Cena za jednotku | 9 € / m2 |
Čo táto nehnuteľnosť ponúka?
| Parkovanie |
| MHD 2 minúty pešo |
V okolí nehnuteľnosti nájdete

Prenájom domuAm Weißen Haus 45 Neustadt Mußbach Mußbach Rheinland-Pfalz 67435- 5+1
- 155 m²
- 180 m²
1 750 € + 330 €
Stále hľadáte to pravé?
Nastavte si strážneho psa. Ponuky vybrané na mieru dostanete súhrnne 1× denne e-mailom. S Premium profilom máte po ruke rovno 5 strážcov a keď sa niečo objaví, informujú vás obratom.









