
Prenájom domu 5+1 • 127 m² bez realitkyRennweg 54, , Porýnie-Falcko
Tento stavebný projekt zahŕňa 4 identické mestské domy | radové domy s moderným vybavením a energeticky úspornou konštrukciou.
V malom priestore ponúka dobre premyslený koncept 5-izbový byt s približne 127 m² obytného priestoru, čím poskytuje rôzne možnosti využitia – vhodný pre singlov, páry aj rodiny.
Tento ponúkaný dom sa nachádza v Andernachu nad Rinom, jednom z najstarších miest Nemecka. Budova má výhodné dopravné spojenie a v bezprostrednom okolí ponúka:
- školy (5 minút pešo)
- mestské centrum (10 minút pešo)
- lekárov (5-10 minút pešo)
- obchody a pekáreň (10 minút pešo)
- prístup k ceste B9 (1 minúta autom)
Do domu vstupujete vlastným vstupom, okolo pridruženého parkovacieho miesta. Hala ponúka priestor na úložné priestory a hosťovské WC. Sklenená predsieň oddeľuje vstupnú časť od obytného, jedálenského a kuchynského priestoru.
Otvorený obytný priestor sa rozprestiera na takmer 31 m² s integrovanou zabudovanou kuchyňou, kde prebieha spoločný život. Terasu je možné dosiahnuť z kuchyne – vďaka juhozápadnej orientácii ponúka príležitosť na mnoho slnečných hodín. Na zadnej strane domu sa z obytného priestoru dostanete do malej záhrady s ďalším východom.
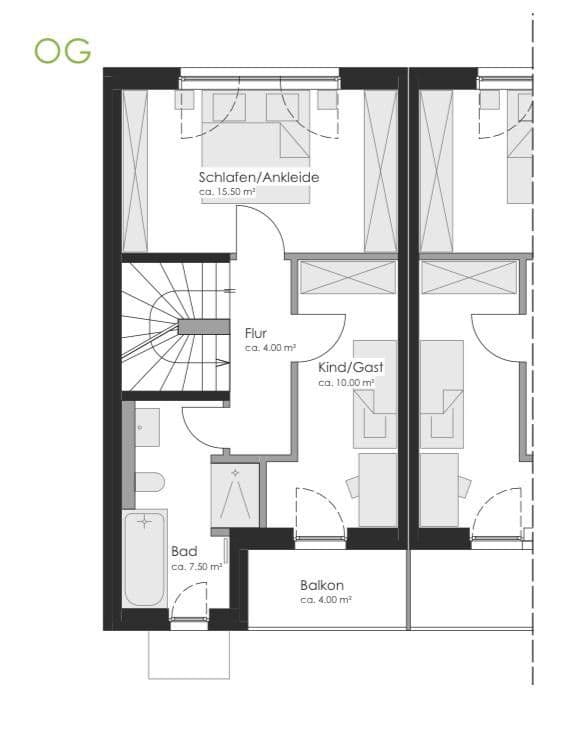
Na prvom poschodí sa na ľavej strane nachádza hlavná spálňa. Ďalšia menšia izba je vhodná ako detská izba, pracovňa alebo hosťovská izba a je doplnená balkónom, taktiež orientovaným na juhozápad. Zrenovovaný podkrovný priestor o rozlohe 20 m² ponúka ďalšie možnosti individuálneho usporiadania – ako spálňa, štúdio alebo hobby izbu.
V kompletne upravenom suteréne sa nachádza technická/ohrevná miestnosť a ďalšia izba, ktorá môže slúžiť ako hobby izba, kancelária alebo hosťovská izba. Výklenok poskytuje navyše priestor na umiestnenie políc alebo skriniek. V práčovni je možné pohodlne umiestniť práčku a sušičku.
Špeciálne vlastnosti:
- Energeticky úsporná konštrukcia
- Tepelné čerpadlo
- Fotovoltaický systém (pripojený do interného elektrického obvodu domu, pri priamej spotrebe – bez akumulačného zásobníka)
- Podlahové kúrenie
- Riadené vetranie obytných priestorov
- Moderná zabudovaná kuchyňa s indukčnou varnou doskou, digestorom, umývačkou riadu, chladničkou a sporákom
- Kúpeľňa s denným svetlom, vybavená priestrannou, bezbariérovou sprchou, vaňou a kvalitným sanitárnym vybavením
- Okná od podlahy k stropu vrátane elektrických žalúzií
- Parkovacie miesto
Parametre nehnuteľnosti
| Vek | Nad 50 rokov |
|---|---|
| Stav | Veľmi dobrý |
| Číslo inzerátu | 1003913 |
| Plocha pozemku | 160 m² |
| Cena za jednotku | 13 € / m2 |
| Dostupné od | 1. 7. 2026 |
|---|---|
| Dispozícia | 5+1 |
| Úžitková plocha | 127 m² |
| Celkové poschodia | 4 |
Čo táto nehnuteľnosť ponúka?
| Balkón | |
| Parkovanie | |
| Terasa |
| Pivnica | |
| MHD 1 minúta pešo |
V okolí nehnuteľnosti nájdete
Stále hľadáte to pravé?
Nastavte si strážneho psa. Ponuky vybrané na mieru dostanete súhrnne 1× denne e-mailom. S Premium profilom máte po ruke rovno 5 strážcov a keď sa niečo objaví, informujú vás obratom.











