
Prenájom bytu 3+1 • 67 m² bez realitkyBürgelstraße 2 Magdeburg Altstadt Sachsen-Anhalt 39104
Bürgelstraße 2 Magdeburg Altstadt Sachsen-Anhalt 39104MHD 5minút pešoTáto svetlá 3-izbová bytosť s približne 70 m² obytnou plochou sa nachádza v 1. poschodí udržiavaného viacfamilijného domu v Magdeburg-Altstadt, oproti štátnej kancelárii a v bezprostrednej blízkosti magdeburgského dómu.
Dom z éry zakladateľstva bol naposledy zmodernizovaný v roku 2006 a disponuje moderným interiérovým vybavením. Energetická náročnosť objektu je taktiež v rámci existujúceho stavu veľmi priaznivá.
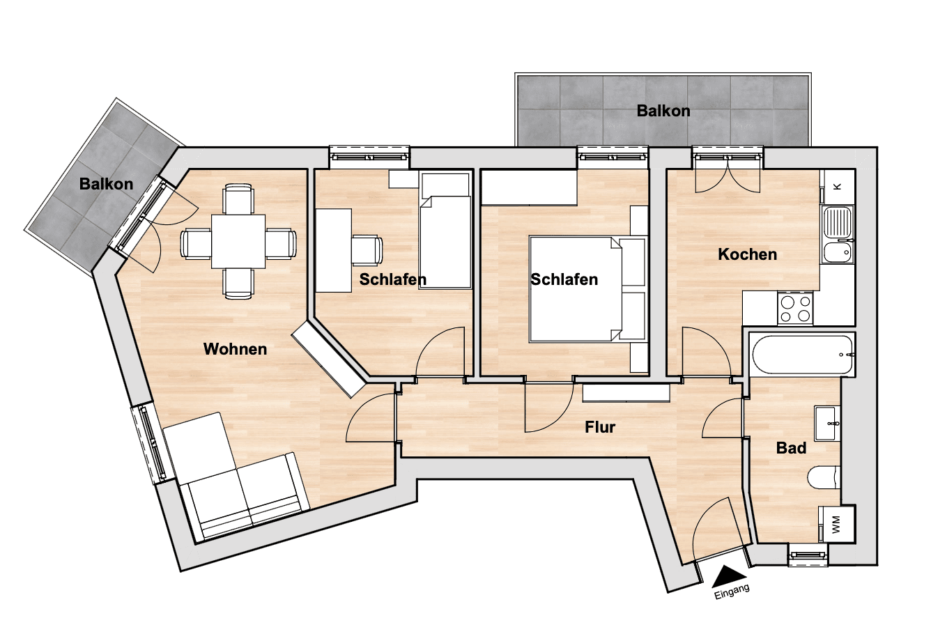
K bytu patria aj dve veľké balkóny a priestranné pivničné priestory.
POZOR! Fotografie interiéru boli upravené (momentálne prebieha rekonštrukcia) a poskytujú možný vizuálny dojem priestoru PO rekonštrukcii. Neznamenajú žiadnu dohodu o stave.
Dispozičné riešenia navyše poskytujú dobrý prehľad o rozložení. Byt bude, po čerstvej rekonštrukcii, pravdepodobne dostupný od 01.06.2026 a vďaka svojej dispozícii je vhodný pre rôzne potreby: spolubývanie, malé rodiny, páry alebo jednotlivcov s nárokom na priestor. Domáce zvieratá sú povolené po dohode.
V historickej časti Magdeburgu bývate priamo uprostred mestského života: krátke vzdialenosti, živé prostredie a vynikajúca dostupnosť autobusom a električkou. Kaviarne, reštaurácie, obchody a kultúrne ponuky sú prakticky na dosah – ideálne pre tých, ktorí chcú bývať centrálne a zároveň mať všetko rýchlo dostupné.
Univerzita Otto-von-Guericke je dostupná autobusom či električkou za 15-20 minút.
Novo položená vinylová podlaha, obklady v kuchyni a kúpeľni, vysoké stropy a pekné, veľké okná, po dohode s novým prenajatým kuchynským vybavením.
Parametre nehnuteľnosti
| Vek | Nad 50 rokov |
|---|---|
| Stav | Po rekonštrukcii |
| Poschodie | 1. poschodie z 5 |
| Úžitková plocha | 67 m² |
| Dostupné od | 1. 6. 2026 |
|---|---|
| Dispozícia | 3+1 |
| Číslo inzerátu | 1003350 |
| Cena za jednotku | 9 € / m2 |
Čo táto nehnuteľnosť ponúka?
| Balkón | |
| MHD 5 minút pešo |
| Pivnica |
V okolí nehnuteľnosti nájdete
Stále hľadáte to pravé?
Nastavte si strážneho psa. Ponuky vybrané na mieru dostanete súhrnne 1× denne e-mailom. S Premium profilom máte po ruke rovno 5 strážcov a keď sa niečo objaví, informujú vás obratom.










