
Prenájom bytu 3+kk • 85 m² bez realitkyLidická, Praha - Smíchov
Lidická, Praha - SmíchovVýťah • Parkovanie • Pivnica 5 m²Pronajmu hezký byt 3+kk ve 3. patře udržovaného domu s výtahem v Lidické ul. na Smíchově, kousek od Anděla (2 min. chůze - výborná dopravní dostupnost - tramvaje, metro, autobusy; výborná občanská vybavenost - obchody a služby, nákupní centrum, vše v nejbližším okolí). Byt má okna do dvora. K bytu patří příslušenství - parkovací stání na dvoře a sklepní kóje.
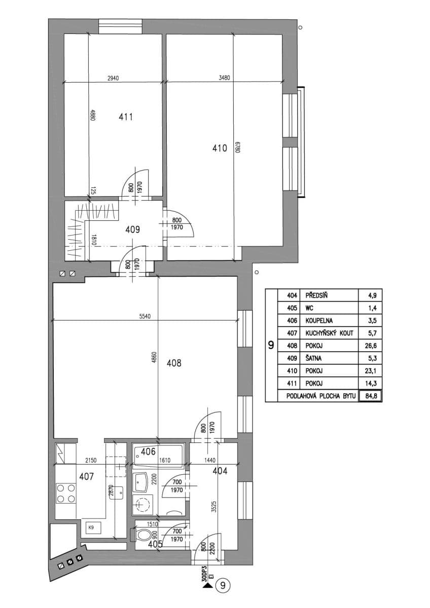
V bytě je předsíň, obývací pokoj, dveřmi oddělený kuchyňský kout, dvě neprůchozí ložnice, koupelna, samostatné WC, malá šatna. Kuchyň je vybavená myčkou, el. troubou a elektrickou varnou deskou. K dispozici není lednice a pračka. Topení a ohřev vody je zajištěn vlastním plynovým kotlem (nízké náklady). V domě je UPC, O2, satelit.
Celkové náklady na bydlení tvoří nájemné (za byt a parkování) + paušálně hrazené služby (úklid a osvětlení spol. částí, provoz výtahu, antény, komínů atd.) v ceně 500,- Kč/osoba + záloha na vodné a stočné (vlastní vodoměr pro každý byt) + spotřeba plynu a elektřiny (vlastní měřiče - nájemce uzavře samostatně smlouvu s dodavateli). ODHAD ceny všech nákladů pro dvě osoby je 5.000,- Kč/měs (za plyn + elektro + vodu + služby v domě). Nájemní smlouva na dobu určitou nejméně dva roky s automatickým prodlužováním. K dispozici ihned.
Parametre nehnuteľnosti
| Dostupné od | 1. 4. 2026 |
|---|---|
| Konštrukcia budovy | Tehla |
| Vybavené | Nevybavené |
| Číslo inzerátu | 1002787 |
| Úžitková plocha | 85 m² |
| Stav | Veľmi dobrý |
|---|---|
| Dispozícia | 3+kk |
| Poschodie | 4. poschodie z 5 |
| Umiestnenie | Rušná oblasť |
| Cena za jednotku | 352 CZK / m2 |
Čo táto nehnuteľnosť ponúka?
| Pivnica 5 m² | |
| Parkovanie |
| Výťah |
V okolí nehnuteľnosti nájdete
Stále hľadáte to pravé?
Nastavte si strážneho psa. Ponuky vybrané na mieru dostanete súhrnne 1× denne e-mailom. S Premium profilom máte po ruke rovno 5 strážcov a keď sa niečo objaví, informujú vás obratom.




















