
Prenájom bytu 3+1 • 70 m² bez realitkyLevinstr. 52 Essen Borbeck-Mitte Nordrhein-Westfalen 45356
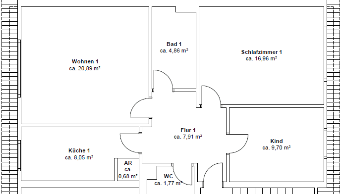
Na prenájom je ponúkaný udržiavaný 3,5-izbový byt s približne 70 m² obytnou plochou v Essene (Levinstr. 52, 45356 Essen) v rodinnom dome (postavenom v roku 1980). Byt zaujme praktickým dispozíciou a je ideálny pre jednotlivcov, páry alebo malú rodinu.
Detaily bytu:
3,5 izieb (obývačka, spálňa, ďalšia izba napr. detská izba/kancelária)
približne 70 m² obytná plocha
samostatná kuchyňa
kúpeľňa
rok výstavby: 1980
energetický certifikát: Trieda D
K dispozícii okamžite!
Lokalita:
Byt sa nachádza v Essene (Levinstr. 52, 45356). Zastávka autobusu je priamo pred dverami, okrem toho sú k dispozícii výborné spoje do obchodných centier, verejnej dopravy a k dôležitým dopravným uzlom. Zariadenia pre každodenné potreby sú ľahko dostupné.
Ďalšie informácie:
Prehliadky sú možné po dohodnutí. V prípade záujmu nám prosím pošlite krátku správu s počtom osôb, povolaním/pracovným pomerom a požadovaným dátumom nasťahovania.
Parametre nehnuteľnosti
| Vek | Nad 50 rokov |
|---|---|
| Stav | Dobrý |
| Poschodie | 2. poschodie z 3 |
| PENB | D - Menej hospodárne |
| Cena za jednotku | 9 € / m2 |
| Dostupné od | 17. 3. 2026 |
|---|---|
| Dispozícia | 3+1 |
| Číslo inzerátu | 1002155 |
| Úžitková plocha | 70 m² |
Čo táto nehnuteľnosť ponúka?
| Garáž |
| MHD 0 minút pešo |
V okolí nehnuteľnosti nájdete
Stále hľadáte to pravé?
Nastavte si strážneho psa. Ponuky vybrané na mieru dostanete súhrnne 1× denne e-mailom. S Premium profilom máte po ruke rovno 5 strážcov a keď sa niečo objaví, informujú vás obratom.














