Predaj domu • 144 m² bez realitkyBremerhaven Klushof Bremen 27576
Bremerhaven Klushof Bremen 27576MHD 4 minúty pešoToto radový dom s 8 izbami ponúka na približne 144 m² bývacej plochy mnoho možností pre individuálne prispôsobenie. Vhodný je najmä pre:
• Rodiny, ktoré chcú flexibilne využívať svoje priestory podľa vlastných predstáv
• Viacgeneračné domácnosti s oddelenými obytnými a pracovnými zónami
• Kombinované bývanie a prácu pod jednou strechou, napr. s kanceláriou alebo štúdiom
• Hobby alebo remeselníkov, ktorí potrebujú miesto pre dielňu a sklad
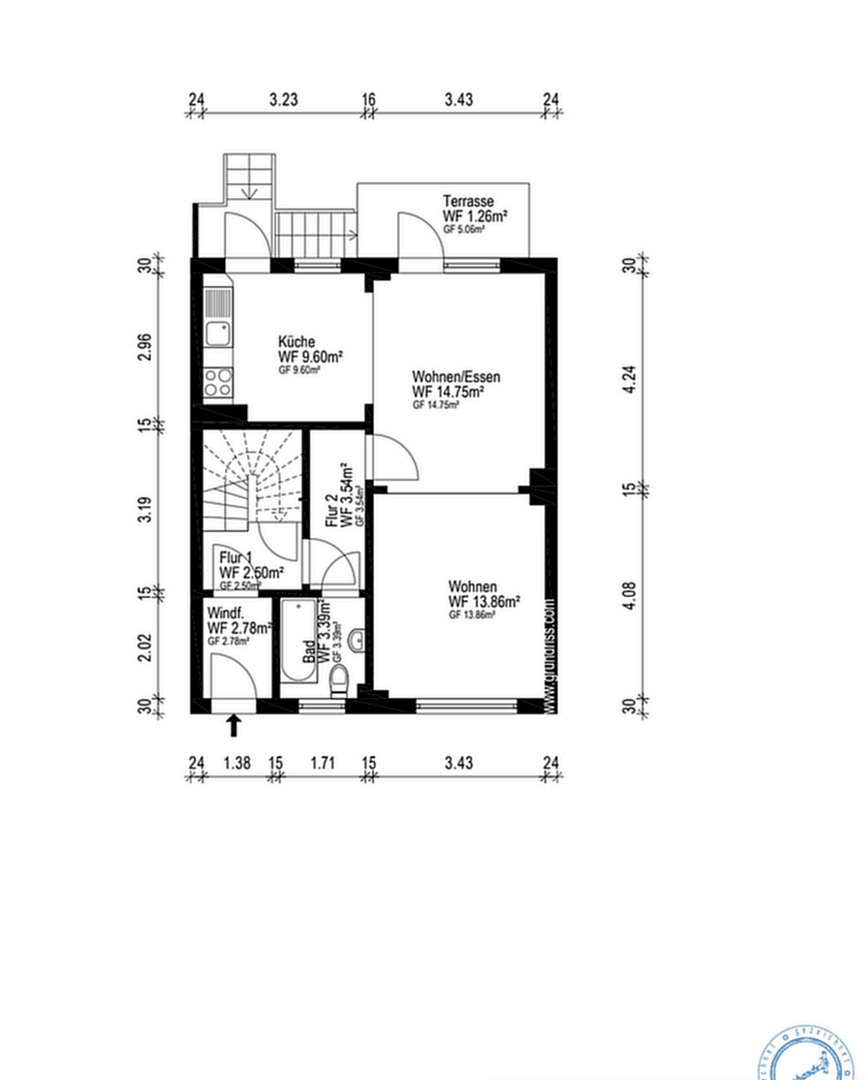
V prízemí sa nachádza kuchyňa, obývacia a jedálenská časť na priestranných 55,38 m². Otvorený koncept vytvára moderný pocit bývania. Odtiaľto máte priamy vstup do záhrady s terasou.
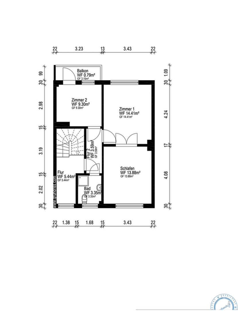
Poschodie ponúka na 51,60 m² pokojné útočiská pre celú rodinu.
V zrekonštruovanom podkroví je k dispozícii ďalších 41,55 m² s vlastným WC – ideálne ako detská izba, pracovňa alebo štúdio.
Kellér dopĺňa priestorové možnosti s 49,70 m² a ponúka veľa úložného priestoru, ako aj miesto pre práčku a sušičku.
Radový dom sa nachádza na pokojnej vedľajšej ulici v obľúbenom bývania v bremerhavenskom meste Lehe. Okolie charakterizujú zelené záhrady a príjemné susedstvo.
Obchodné možnosti pre každodenné potreby, ako aj školy a materské školy sú ľahko dostupné. Veľmi dobré napojenie na verejnú dopravu, ako aj blízkosť k cestám B 212 a A 27 zabezpečujú krátke cesty do všetkých smerov.
Rekreačné a oddychové možnosti pozdĺž rieky Weser, kultúrne ponuky a centrum mesta sú taktiež rýchlo dosiahnuteľné.
Využite príležitosť urobiť z tohto domu v Bremerhaven-Lehe Váš osobný domov. Potreba rekonštrukcie nie je obmedzením, ale ponúka veľa priestoru pre vlastné nápady a kreatívne riešenia.
Prosím, žiadne maklérske dopyty!
Parametre nehnuteľnosti
| Vek | Nad 50 rokov |
|---|---|
| Stav | Pred rekonštrukciou |
| PENB | F - veľmi nehospodárne |
| Plocha pozemku | 319 m² |
| Cena za jednotku | 1 388 € / m2 |
| Dostupné od | 19. 3. 2026 |
|---|---|
| Číslo inzerátu | 1002096 |
| Úžitková plocha | 144 m² |
| Celkové poschodia | 3 |
Čo táto nehnuteľnosť ponúka?
| Balkón | |
| MHD 4 minúty pešo |
| Pivnica | |
| Terasa |
V okolí nehnuteľnosti nájdete
Stále hľadáte to pravé?
Nastavte si strážneho psa. Ponuky vybrané na mieru dostanete súhrnne 1× denne e-mailom. S Premium profilom máte po ruke rovno 5 strážcov a keď sa niečo objaví, informujú vás obratom.


















