
Prenájom kancelárie • 128 m² bez realitkyKarlovo náměstí, Praha - Nové Město
Karlovo náměstí, Praha - Nové MěstoVybavené • Výťah • ParkovanieVyžaduje sa overenie bezdlžnostiKanceláře Karlovo náměstí | all-inclusive servis, recepce, 1 Gb/s, prohlídky po domluvě
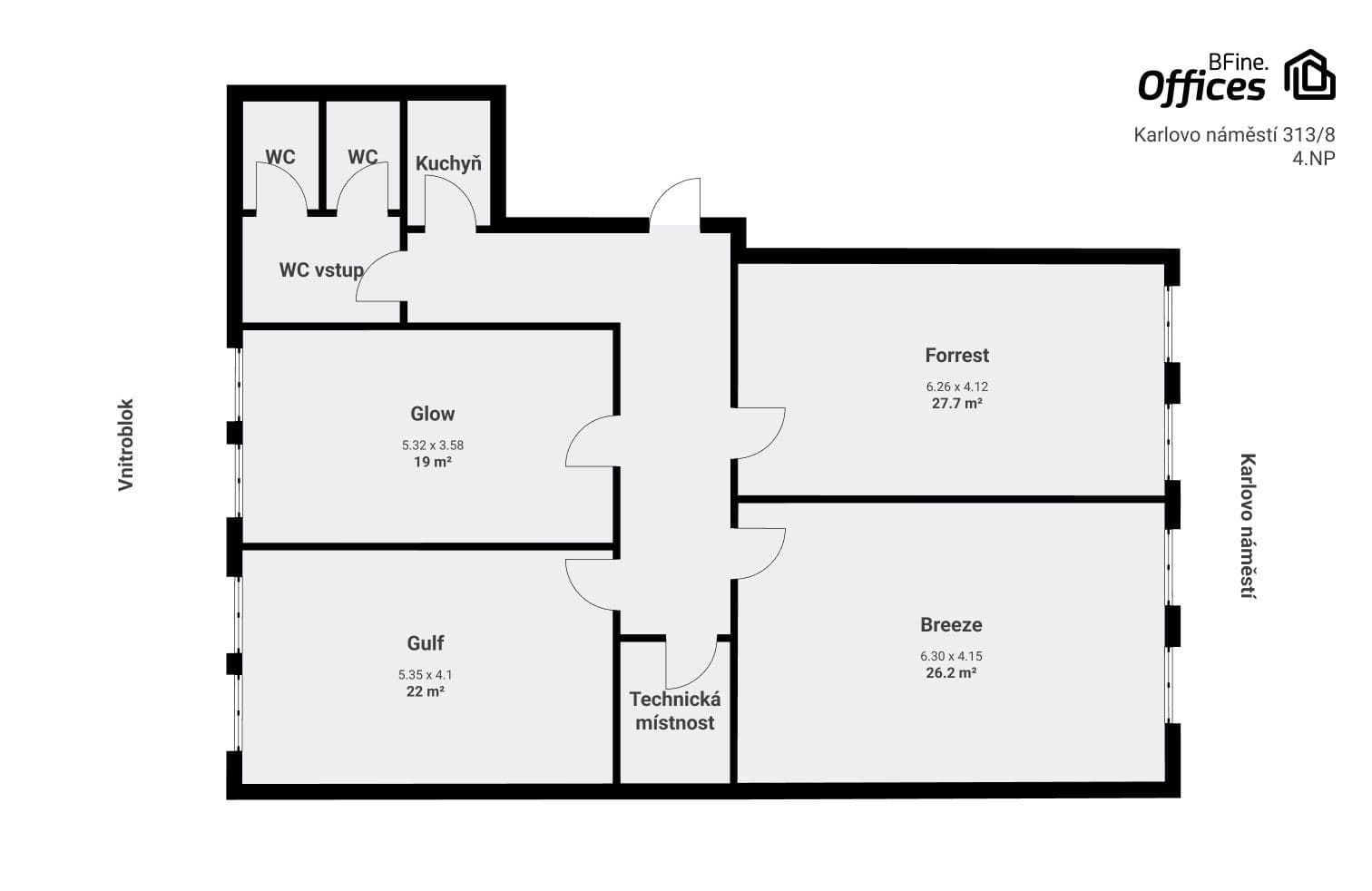
Nabízíme kancelářské prostory v atraktivní lokalitě Karlovo náměstí, Praha 2 v budově BFine.Offices.
Pro firmy, které hledají větší celek v centru Prahy, nabízíme možnost pronájmu části patra v budově BFine.Offices na Karlově náměstí.
Pro koho je to vhodné:
- firma s vícečlenným týmem
- společnost, která chce mít tým pohromadě
- provoz, kde je důležité reprezentativní umístění a dostupnost
Co je velká výhoda této lokality:
- výborná dostupnost MHD (tramvaj, metro, autobus)
- recepce v budově
- internet 1 Gb/s
- nová klimatizace
- kavárna v budově
- EMS fitness studio v budově
- velký park přímo před budovou
- možnost využití vybavení zdarma (dle zásob)
Prohlídky jsou možné od 8:00 do 18:00 každý den.
Klidně ještě dneska.
V nabídce bývají různé velikosti kanceláří – od menších kabinetů (18-25 m²) po větší celky (30-60 m²) / části patra (120-153 m²).
K dispozici jsou varianty s výhledem na Karlovo náměstí i klidnější kanceláře do vnitrobloku (dle konkrétní jednotky).
Parametre nehnuteľnosti
| Dostupné od | 1. 4. 2026 |
|---|---|
| Konštrukcia budovy | Tehla |
| Poschodie | 4. poschodie z 6 |
| Umiestnenie | Centrum mesta |
| Cena za jednotku | 420 CZK / m2 |
| Stav | Veľmi dobrý |
|---|---|
| Vybavené | Vybavené |
| Číslo inzerátu | 1001984 |
| Plocha kancelárie | 128 m² |
Čo táto nehnuteľnosť ponúka?
| Výťah |
| Parkovanie |
V okolí nehnuteľnosti nájdete

Prenájom kancelárieŽitná, Praha - Nové Město- 237 m²
49 870 CZK + 33 247 CZK66 495 CZK
Ušetríte 16 625 CZK
Prenájom kancelárieZáhřebská, Praha - Vinohrady- 160 m²
64 000 CZK + 15 000 CZK69 000 CZK
Ušetríte 5 000 CZK

Stále hľadáte to pravé?
Nastavte si strážneho psa. Ponuky vybrané na mieru dostanete súhrnne 1× denne e-mailom. S Premium profilom máte po ruke rovno 5 strážcov a keď sa niečo objaví, informujú vás obratom.










