
Prenájom kancelárie • 45 m² bez realitkyKarlovo náměstí, Praha - Nové Město
Karlovo náměstí, Praha - Nové MěstoMHD do minúty pešo • Vybavené • Výťah • ParkovanieVyžaduje sa overenie bezdlžnostiKanceláře Karlovo náměstí | all-inclusive servis, recepce, 1 Gb/s, prohlídky po domluvě
Nabízíme kancelářské prostory v atraktivní lokalitě Karlovo náměstí, Praha 2 v budově BFine.Offices.
Prostory jsou vhodné pro jednotlivce, menší týmy i firmy, které hledají reprezentativní adresu v centru a praktické zázemí bez zbytečných starostí.
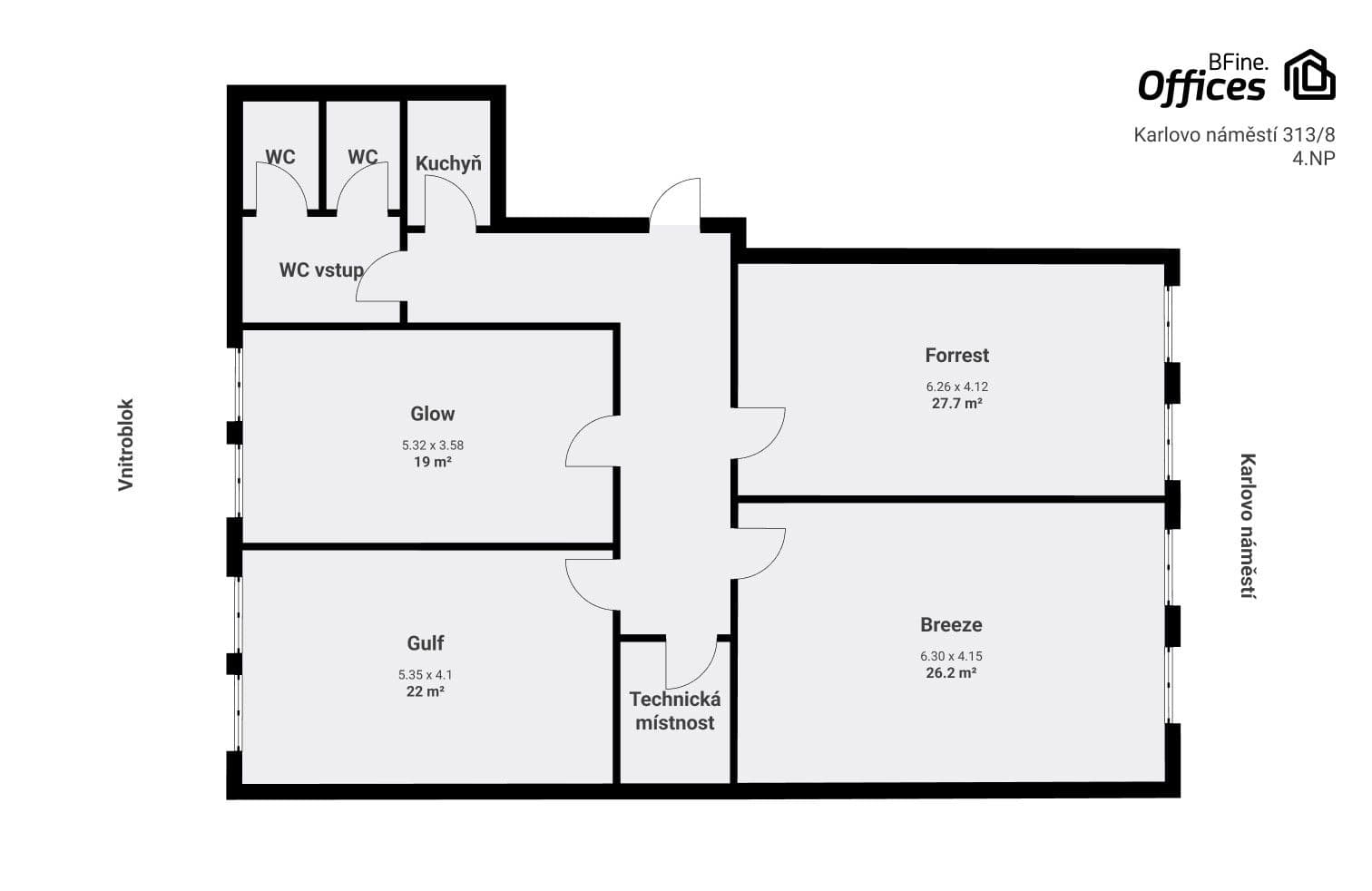
Je možnost vybrat vhodné kanceláře dle potřebné velikosti, viz. plánek.
Co je velká výhoda této lokality:
- výborná dostupnost MHD (tramvaj, metro, autobus)
- recepce v budově
- internet 1 Gb/s
- nová klimatizace
- kavárna v budově
- EMS fitness studio v budově (BFine.Fitness), zvýhodněná cena pro nájemniky)
- velký park přímo před budovou
- možnost využití vybavení zdarma (dle zásob)
Prohlídky jsou možné od 8:00 do 17:00 každý den.
Pošlete nám poptávku a rádi vám pošleme aktuální dostupnost kanceláří a doporučíme vhodnou variantu podle velikosti týmu.
V nabídce bývají různé velikosti kanceláří – od menších kabinetů (18-25 m²) po větší celky (30-60 m²) / části patra (120-153 m²).
K dispozici jsou varianty s výhledem na Karlovo náměstí i klidnější kanceláře do vnitrobloku (dle konkrétní jednotky)
Parametre nehnuteľnosti
| Dostupné od | 1. 4. 2026 |
|---|---|
| Konštrukcia budovy | Tehla |
| Poschodie | Prízemie |
| Umiestnenie | Centrum mesta |
| Cena za jednotku | 590 CZK / m2 |
| Stav | Veľmi dobrý |
|---|---|
| Vybavené | Vybavené |
| Číslo inzerátu | 1001979 |
| Plocha kancelárie | 45 m² |
Čo táto nehnuteľnosť ponúka?
| Výťah | |
| MHD 0 minút pešo |
| Parkovanie |
V okolí nehnuteľnosti nájdete
Stále hľadáte to pravé?
Nastavte si strážneho psa. Ponuky vybrané na mieru dostanete súhrnne 1× denne e-mailom. S Premium profilom máte po ruke rovno 5 strážcov a keď sa niečo objaví, informujú vás obratom.








